Prix Maison + Terrain
- À partir de 240 000 €
Référence
- CC2290959_1
Maison personnalisable
- Chambres : 3
- Nombre de pièces : 4
- Surface maison : 70 m²
- Surface terrain : 346 m²
- Garage/Carport
Performances énergétiques
- Classe énergétique : A
Description
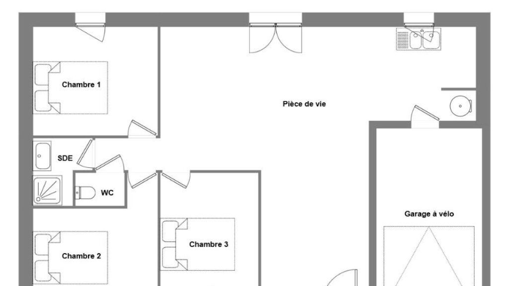
VENTE : maison T4 (70 m²) à Merlevenez
EMPLACEMENT PRIVILÉGIÉ - MAISON 4 PIÈCES NEUVE
En vente : localisée sur le littoral atlantique et à deux pas de Lorient, laissez vous charmer par cette maison de 4 pièces de plain-pied de 70 m² bénéficiant d'un emplacement privilégié dans Merlevenez (56700).
Son intérieur est composé de trois chambres, d'une cuisine et d'une salle de bains. Cette maison est neuve.
Le terrain de la propriété est de 346 m².
Cette maison se situe dans un quartier attractif. On trouve l'École Primaire Privée Notre-Dame de Joie, l'École Maternelle Publique de Merlevenez et l'École Élémentaire Publique les Mésanges Bleues à moins de 10 minutes à pied et une crèche. Niveau transports en commun, il y a trois gares (Brandérion, Hennebont et Landévant) à moins de 10 minutes en voiture. Les nationales N165 et N24 sont accessibles à moins de 7 km. On trouve une bibliothèque, un tennis, une boulangerie, trois commerces, un supermarché, deux boucheries-charcuteries et un bureau de poste à proximité du bien.
Elle est proposée à l'achat pour 240 000 €.
Contactez Christophe COLLOCH (02-97-21-63-96) pour plus d'informations sur la maison, sur les modalités de vente ou sur les démarches à suivre. Maisons de l'Avenir Lorient est là pour vous accompagner à toutes les étapes de votre projet.
EMPLACEMENT PRIVILÉGIÉ - MAISON 4 PIÈCES NEUVE
En vente : localisée sur le littoral atlantique et à deux pas de Lorient, laissez vous charmer par cette maison de 4 pièces de plain-pied de 70 m² bénéficiant d'un emplacement privilégié dans Merlevenez (56700).
Son intérieur est composé de trois chambres, d'une cuisine et d'une salle de bains. Cette maison est neuve.
Le terrain de la propriété est de 346 m².
Cette maison se situe dans un quartier attractif. On trouve l'École Primaire Privée Notre-Dame de Joie, l'École Maternelle Publique de Merlevenez et l'École Élémentaire Publique les Mésanges Bleues à moins… Lire la suite
VENTE : maison T4 (70 m²) à Merlevenez
EMPLACEMENT PRIVILÉGIÉ - MAISON 4 PIÈCES NEUVE
En vente : localisée sur le littoral atlantique et à deux pas de Lorient, laissez vous charmer par cette maison de 4 pièces de plain-pied de 70 m² bénéficiant d'un emplacement privilégié dans Merlevenez (56700).
Son intérieur est composé de trois chambres, d'une cuisine et d'une salle de bains. Cette maison est neuve.
Le terrain de la propriété est de 346 m².
Cette maison se situe dans un quartier attractif. On trouve l'École Primaire Privée Notre-Dame de Joie, l'École Maternelle Publique de Merlevenez et l'École Élémentaire Publique les Mésanges Bleues à moins de 10 minutes à pied et une crèche. Niveau transports en commun, il y a trois gares (Brandérion, Hennebont et Landévant) à moins de 10 minutes en voiture. Les nationales N165 et N24 sont accessibles à moins de 7 km. On trouve une bibliothèque, un tennis, une boulangerie, trois commerces, un supermarché, deux boucheries-charcuteries et un bureau de poste à proximité du bien.
Elle est proposée à l'achat pour 240 000 €.
Contactez Christophe COLLOCH (02-97-21-63-96) pour plus d'informations sur la maison, sur les modalités de vente ou sur les démarches à suivre. Maisons de l'Avenir Lorient est là pour vous accompagner à toutes les étapes de votre projet.
Maisons de l’Avenir, constructeur de maisons individuelles, propose en collaboration avec ses partenaires fonciers, une sélection de terrains constructibles, selon disponibilité, pour la construction de maisons neuves définies par le constructeur, avec un contrat de construction de maison individuelle, dans le cadre de la loi du 19/12/1990. Prix net, hors frais notariés, d'enregistrement et de publicité foncière
Terrain proposé au prix de : 75 000 €
Maison proposée au prix de : 165 000 €
Etiquette énergie : A. Assurances et garanties du constructeur (RC professionnelle, décennale, dommage ouvrage, Garantie de livraison à prix et délai convenu). https://www.maisonsdelavenir.com/mentions-legales/
Localisation
Une maison 100% personnalisable
-
Garage
-
Agencement
-
Revêtements extérieurs
-
Toiture
-
Ouvertures
Nos garanties constructeur
UNE MAISON 100% PERSONNALISÉE
Définir un style architectural (contemporain, moderne, traditionnel) et un plan adapté à votre mode de vie pour mettre en lumière votre projet de construction, tel est notre quotidien !
SERVICE 3 EN 1
Nos conseillers habitat vous accompagnent tout au long de votre projet : Terrain – Maison - Financement, afin de garantir sa réussite et de satisfaire vos exigences !
DES ANNÉES D'EXPÉRIENCES
Depuis 1962, la marque Maisons de l’Avenir inspire confiance et sérénité, une si longue expérience dans la construction de maisons individuelles, c’est un vrai gage de qualité !

















