Maison à construire de 83m² (3 chambres) sur un terrain de 625m² à Lesneven (29260)

2361363-4586modele620250326dbyx4.jpeg
Nous contacter
  • Prix Maison + Terrain

    • À partir de 278 943 €
  • Référence

    • SA2361354_3
  • Maison personnalisable

    • Chambres : 3
    • Nombre de pièces : 4
    • Surface maison : 83 m²
    • Surface terrain : 625 m²
    • Garage/Carport
  • Performances énergétiques

    • Classe énergétique : A

Description

VENTE : maison de 4 pièces (83 m²) à Lesneven
PROCHE CENTRE-VILLE - MAISON 4 PIÈCES NEUVE
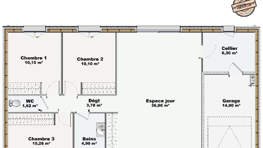
En vente : à quelques kilomètres de la mer et à 24 km de Brest, nous vous proposons cette maison de 4 pièces de plain-pied de 83 m² proche du centre-ville de Lesneven (29260). Conçue de plain-pied, elle inclut trois chambres, une cuisine et une salle de bains.
Le terrain du bien est de 625 m².
Cette maison est neuve.
Il y a des écoles de tous types à moins de 10 minutes à pied, tout comme une structure d'accueil pour les enfants en bas âge. La nationale N12 est accessible à 10 km. On trouve des commerces, quatre boulangeries, un supermarché, un bureau de poste et une poissonnerie dans les environs. Le marché Centre-Ville a lieu tous les lundis.
Elle est proposée à l'achat pour 278 943 €.
Contactez notre agence (Sami ALKIS) pour obtenir de plus amples informations sur la maison ou sur les modalités de vente. Maisons de l'Avenir Guipavas vous accompagne dans toutes vos démarches et à toutes les étapes de votre projet.

Masquer
VENTE : maison de 4 pièces (83 m²) à Lesneven
PROCHE CENTRE-VILLE - MAISON 4 PIÈCES NEUVE
En vente : à quelques kilomètres de la mer et à 24 km de Brest, nous vous proposons cette maison de 4 pièces de plain-pied de 83 m² proche du centre-ville de Lesneven (29260). Conçue de plain-pied, elle inclut trois chambres, une cuisine et une salle de bains.
Le terrain du bien est de 625 m².
Cette maison est neuve.
Il y a des écoles de tous types à moins de 10 minutes à pied, tout comme une structure d'accueil pour les enfants en bas âge. La nationale N12 est… Lire la suite

VENTE : maison de 4 pièces (83 m²) à Lesneven
PROCHE CENTRE-VILLE - MAISON 4 PIÈCES NEUVE
En vente : à quelques kilomètres de la mer et à 24 km de Brest, nous vous proposons cette maison de 4 pièces de plain-pied de 83 m² proche du centre-ville de Lesneven (29260). Conçue de plain-pied, elle inclut trois chambres, une cuisine et une salle de bains.
Le terrain du bien est de 625 m².
Cette maison est neuve.
Il y a des écoles de tous types à moins de 10 minutes à pied, tout comme une structure d'accueil pour les enfants en bas âge. La nationale N12 est accessible à 10 km. On trouve des commerces, quatre boulangeries, un supermarché, un bureau de poste et une poissonnerie dans les environs. Le marché Centre-Ville a lieu tous les lundis.
Elle est proposée à l'achat pour 278 943 €.
Contactez notre agence (Sami ALKIS) pour obtenir de plus amples informations sur la maison ou sur les modalités de vente. Maisons de l'Avenir Guipavas vous accompagne dans toutes vos démarches et à toutes les étapes de votre projet.

Localisation

Une maison 100% personnalisable

  • Garage

  • Agencement

  • Revêtements extérieurs

  • Toiture

  • Ouvertures

Nos garanties constructeur

UNE MAISON 100% PERSONNALISÉE

Définir un style architectural (contemporain, moderne, traditionnel) et un plan adapté à votre mode de vie pour mettre en lumière votre projet de construction, tel est notre quotidien !

SERVICE 3 EN 1

Nos conseillers habitat vous accompagnent tout au long de votre projet : Terrain – Maison - Financement, afin de garantir sa réussite et de satisfaire vos exigences !

DES ANNÉES D'EXPÉRIENCES

Depuis 1962, la marque Maisons de l’Avenir inspire confiance et sérénité, une si longue expérience dans la construction de maisons individuelles, c’est un vrai gage de qualité !