Prix Maison + Terrain
- À partir de 285 000 €
Référence
- ET2330367_3
Maison personnalisable
- Chambres : 4
- Nombre de pièces : 5
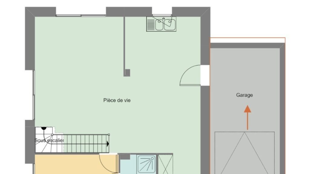
- Surface maison : 105 m²
- Surface terrain : 395 m²
- Garage/Carport
Performances énergétiques
- Classe énergétique : A
Description
📍 À VENDRE - Terrain constructible de 395 m² à Lesneven
Situé à Lesneven, ce terrain constructible de 395 m² représente une opportunité rare pour concrétiser votre projet immobilier dans un environnement calme et résidentiel, à seulement 10 minutes à pied du centre-ville.
🔹 Caractéristiques principales :
Superficie : 395 m²
Forme : Rectangulaire
Bornage : Effectué
Viabilisation : Non viabilisé, mais réseaux (eau, électricité, télécommunications, tout-à-l'égout) en bordure de parcelle
Constructibilité : Terrain libre de constructeur, non soumis à l'avis des Architectes des Bâtiments de France (ABF)
Emprise au sol maximale : 40 %, soit environ 158 m² constructibles
🌿 Environnement :
Issu d'une division de parcelles, le terrain se situe dans un quartier paisible et bénéficie d'une proximité immédiate avec toutes les commodités : commerces, écoles, services de santé...
💰 Prix de vente : 54 900 €
💡 Nous vous proposons sur ce terrain un projet de maison de 105 m² en plein pied, au style traditionnel et contemporain comprenant :
4 chambres
1 salles de bains avec douche et baignoire 🚿
Un vaste espace de vie de plus de 40 m² lumineux ☀️
Un grand garage 🚗
Une conception intégrée dans notre concept Maisons Bâti Activ, favorisant l'ensoleillement naturel et réduisant vos coûts énergétiques 🌿⚡
💰 Prix de l'opération Terrain + Maison : 285 000 €
Ce terrain et ce projet de maison n'attendent plus que vous pour devenir réalité 🏡.
📞 Pour plus d'informations ou organiser une visite, contactez Erwan TILLY - Maisons de l'Avenir.
Situé à Lesneven, ce terrain constructible de 395 m² représente une opportunité rare pour concrétiser votre projet immobilier dans un environnement calme et résidentiel, à seulement 10 minutes à pied du centre-ville.
🔹 Caractéristiques principales :
Superficie : 395 m²
Forme : Rectangulaire
Bornage : Effectué
Viabilisation : Non viabilisé, mais réseaux (eau, électricité, télécommunications, tout-à-l'égout) en bordure de parcelle
Constructibilité : Terrain libre de constructeur, non soumis à l'avis des Architectes des Bâtiments de France (ABF)
Emprise au sol maximale : 40 %, soit environ 158 m² constructibles
🌿 Environnement :
Issu d'une division de parcelles, le terrain… Lire la suite
📍 À VENDRE - Terrain constructible de 395 m² à Lesneven
Situé à Lesneven, ce terrain constructible de 395 m² représente une opportunité rare pour concrétiser votre projet immobilier dans un environnement calme et résidentiel, à seulement 10 minutes à pied du centre-ville.
🔹 Caractéristiques principales :
Superficie : 395 m²
Forme : Rectangulaire
Bornage : Effectué
Viabilisation : Non viabilisé, mais réseaux (eau, électricité, télécommunications, tout-à-l'égout) en bordure de parcelle
Constructibilité : Terrain libre de constructeur, non soumis à l'avis des Architectes des Bâtiments de France (ABF)
Emprise au sol maximale : 40 %, soit environ 158 m² constructibles
🌿 Environnement :
Issu d'une division de parcelles, le terrain se situe dans un quartier paisible et bénéficie d'une proximité immédiate avec toutes les commodités : commerces, écoles, services de santé...
💰 Prix de vente : 54 900 €
💡 Nous vous proposons sur ce terrain un projet de maison de 105 m² en plein pied, au style traditionnel et contemporain comprenant :
4 chambres
1 salles de bains avec douche et baignoire 🚿
Un vaste espace de vie de plus de 40 m² lumineux ☀️
Un grand garage 🚗
Une conception intégrée dans notre concept Maisons Bâti Activ, favorisant l'ensoleillement naturel et réduisant vos coûts énergétiques 🌿⚡
💰 Prix de l'opération Terrain + Maison : 285 000 €
Ce terrain et ce projet de maison n'attendent plus que vous pour devenir réalité 🏡.
📞 Pour plus d'informations ou organiser une visite, contactez Erwan TILLY - Maisons de l'Avenir.
Maisons de l’Avenir, constructeur de maisons individuelles, propose en collaboration avec ses partenaires fonciers, une sélection de terrains constructibles, selon disponibilité, pour la construction de maisons neuves définies par le constructeur, avec un contrat de construction de maison individuelle, dans le cadre de la loi du 19/12/1990. Prix net, hors frais notariés, d'enregistrement et de publicité foncière
Terrain proposé au prix de : 54 900 €
Maison proposée au prix de : 230 100 €
Etiquette énergie : A. Assurances et garanties du constructeur (RC professionnelle, décennale, dommage ouvrage, Garantie de livraison à prix et délai convenu). https://www.maisonsdelavenir.com/mentions-legales/
Localisation
Une maison 100% personnalisable
-
Garage
-
Agencement
-
Revêtements extérieurs
-
Toiture
-
Ouvertures
Nos garanties constructeur
UNE MAISON 100% PERSONNALISÉE
Définir un style architectural (contemporain, moderne, traditionnel) et un plan adapté à votre mode de vie pour mettre en lumière votre projet de construction, tel est notre quotidien !
SERVICE 3 EN 1
Nos conseillers habitat vous accompagnent tout au long de votre projet : Terrain – Maison - Financement, afin de garantir sa réussite et de satisfaire vos exigences !
DES ANNÉES D'EXPÉRIENCES
Depuis 1962, la marque Maisons de l’Avenir inspire confiance et sérénité, une si longue expérience dans la construction de maisons individuelles, c’est un vrai gage de qualité !















