Prix Maison + Terrain
- À partir de 295 000 €
Référence
- PAB2338476_4
Maison personnalisable
- Chambres : 4
- Nombre de pièces : 5
- Surface maison : 90 m²
- Surface terrain : 202 m²
- Garage/Carport
Performances énergétiques
- Classe énergétique : A
Description
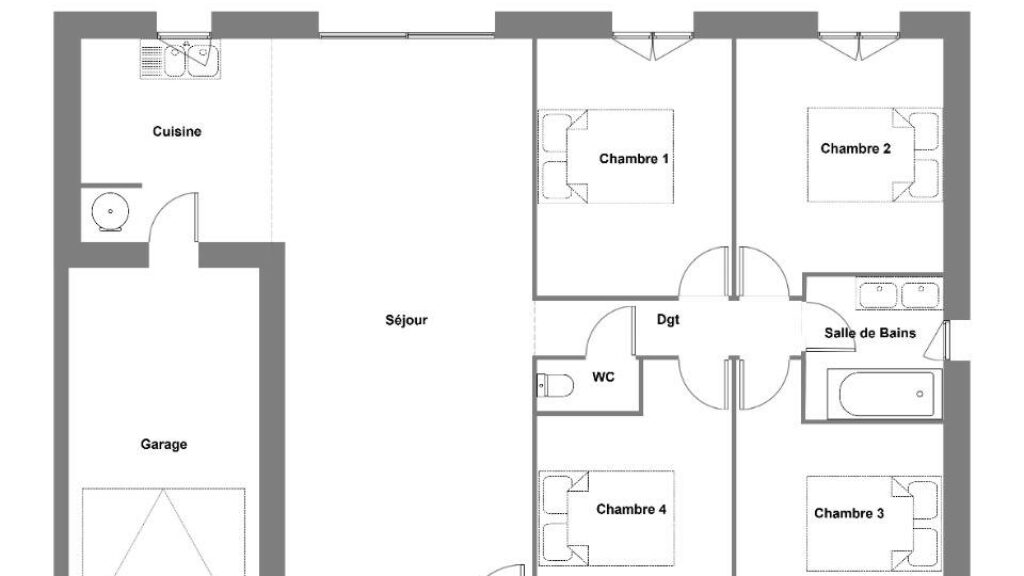
Maison F5 (90 m²) en vente aux Sorinières
EMPLACEMENT PRIVILÉGIÉ - MAISON 5 PIÈCES NEUVE
À vendre : localisée à 25 km de la côte atlantique et à deux pas de Nantes, nous vous proposons cette maison de 5 pièces de plain-pied de 90 m² et de 202 m² de terrain, bénéficiant d'un emplacement d'exception dans Les Sorinières (44840). Conçue de plain-pied, elle inclut quatre chambres, une cuisine et une salle de bains.
La maison est neuve.
Cette maison se trouve dans un quartier recherché. L'École Primaire Privée Graine d'Explorateur est implantée à moins de 10 minutes à pied. Côté transports en commun, il y a six gares à moins de 10 minutes en voiture. L'autoroute A83 et les nationales N844 et N249 sont accessibles à moins de 10 km. On trouve une bibliothèque et deux commerces dans les environs.
Elle est à vendre pour la somme de 295 000 €.
N'hésitez pas à prendre contact avec notre agence (Pierre Antoine BURILLE : 02-40-26-28-28) pour toute question sur la propriété, sur les démarches à suivre ou sur les modalités de vente. Donnez vie à vos projets immobiliers avec Maisons de l'Avenir Rezé.
EMPLACEMENT PRIVILÉGIÉ - MAISON 5 PIÈCES NEUVE
À vendre : localisée à 25 km de la côte atlantique et à deux pas de Nantes, nous vous proposons cette maison de 5 pièces de plain-pied de 90 m² et de 202 m² de terrain, bénéficiant d'un emplacement d'exception dans Les Sorinières (44840). Conçue de plain-pied, elle inclut quatre chambres, une cuisine et une salle de bains.
La maison est neuve.
Cette maison se trouve dans un quartier recherché. L'École Primaire Privée Graine d'Explorateur est implantée à moins de 10 minutes à pied. Côté transports en commun, il y a… Lire la suite
Maison F5 (90 m²) en vente aux Sorinières
EMPLACEMENT PRIVILÉGIÉ - MAISON 5 PIÈCES NEUVE
À vendre : localisée à 25 km de la côte atlantique et à deux pas de Nantes, nous vous proposons cette maison de 5 pièces de plain-pied de 90 m² et de 202 m² de terrain, bénéficiant d'un emplacement d'exception dans Les Sorinières (44840). Conçue de plain-pied, elle inclut quatre chambres, une cuisine et une salle de bains.
La maison est neuve.
Cette maison se trouve dans un quartier recherché. L'École Primaire Privée Graine d'Explorateur est implantée à moins de 10 minutes à pied. Côté transports en commun, il y a six gares à moins de 10 minutes en voiture. L'autoroute A83 et les nationales N844 et N249 sont accessibles à moins de 10 km. On trouve une bibliothèque et deux commerces dans les environs.
Elle est à vendre pour la somme de 295 000 €.
N'hésitez pas à prendre contact avec notre agence (Pierre Antoine BURILLE : 02-40-26-28-28) pour toute question sur la propriété, sur les démarches à suivre ou sur les modalités de vente. Donnez vie à vos projets immobiliers avec Maisons de l'Avenir Rezé.
Maisons de l’Avenir, constructeur de maisons individuelles, propose en collaboration avec ses partenaires fonciers, une sélection de terrains constructibles, selon disponibilité, pour la construction de maisons neuves définies par le constructeur, avec un contrat de construction de maison individuelle, dans le cadre de la loi du 19/12/1990. Prix net, hors frais notariés, d'enregistrement et de publicité foncière
Terrain proposé au prix de : 99 000 €
Maison proposée au prix de : 196 000 €
Etiquette énergie : A. Assurances et garanties du constructeur (RC professionnelle, décennale, dommage ouvrage, Garantie de livraison à prix et délai convenu). https://www.maisonsdelavenir.com/mentions-legales/
Localisation
Une maison 100% personnalisable
-
Garage
-
Agencement
-
Revêtements extérieurs
-
Toiture
-
Ouvertures
Nos garanties constructeur
UNE MAISON 100% PERSONNALISÉE
Définir un style architectural (contemporain, moderne, traditionnel) et un plan adapté à votre mode de vie pour mettre en lumière votre projet de construction, tel est notre quotidien !
SERVICE 3 EN 1
Nos conseillers habitat vous accompagnent tout au long de votre projet : Terrain – Maison - Financement, afin de garantir sa réussite et de satisfaire vos exigences !
DES ANNÉES D'EXPÉRIENCES
Depuis 1962, la marque Maisons de l’Avenir inspire confiance et sérénité, une si longue expérience dans la construction de maisons individuelles, c’est un vrai gage de qualité !















