Prix Maison + Terrain
- À partir de 244 000 €
Référence
- SR2380537_2
Maison personnalisable
- Chambres : 4
- Nombre de pièces : 5
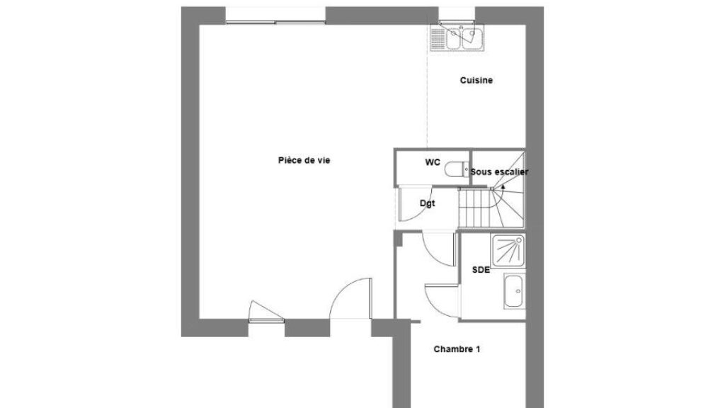
- Surface maison : 92 m²
- Surface terrain : 1000 m²
- Garage/Carport
Performances énergétiques
- Classe énergétique : A
Description
VENTE : maison de 5 pièces (92 m²) au Merzer
MAISON 5 PIÈCES NEUVE - PROCHE DE SAINT-BRIEUC
En vente : située à 24 km de la Manche et à deux pas de Saint-Brieuc, au Merzer (22200), notre agence Maisons de l'Avenir Saint-Brieuc est ravie de vous présenter cette maison de 5 pièces de 92 m².
C'est une maison de 2 niveaux. Elle est composée de quatre chambres, d'une cuisine et de deux salles de bains. La maison est neuve.
Le terrain du bien est de 1 000 m².
Il y a l'École Primaire Publique du Merzer à moins de 10 minutes à pied. Niveau transports en commun, on trouve quatre gares à moins de 10 minutes en voiture. La nationale N12 est accessible à 4 km. Il y a une bibliothèque et deux boulangeries à proximité du logement.
Son prix de vente est de 244 000 €.
Contactez Samuel ROGER (tél : 02-96-78-52-58) pour plus d'informations sur cette maison ou sur les démarches à suivre.
MAISON 5 PIÈCES NEUVE - PROCHE DE SAINT-BRIEUC
En vente : située à 24 km de la Manche et à deux pas de Saint-Brieuc, au Merzer (22200), notre agence Maisons de l'Avenir Saint-Brieuc est ravie de vous présenter cette maison de 5 pièces de 92 m².
C'est une maison de 2 niveaux. Elle est composée de quatre chambres, d'une cuisine et de deux salles de bains. La maison est neuve.
Le terrain du bien est de 1 000 m².
Il y a l'École Primaire Publique du Merzer à moins de 10 minutes à pied. Niveau transports en… Lire la suite
VENTE : maison de 5 pièces (92 m²) au Merzer
MAISON 5 PIÈCES NEUVE - PROCHE DE SAINT-BRIEUC
En vente : située à 24 km de la Manche et à deux pas de Saint-Brieuc, au Merzer (22200), notre agence Maisons de l'Avenir Saint-Brieuc est ravie de vous présenter cette maison de 5 pièces de 92 m².
C'est une maison de 2 niveaux. Elle est composée de quatre chambres, d'une cuisine et de deux salles de bains. La maison est neuve.
Le terrain du bien est de 1 000 m².
Il y a l'École Primaire Publique du Merzer à moins de 10 minutes à pied. Niveau transports en commun, on trouve quatre gares à moins de 10 minutes en voiture. La nationale N12 est accessible à 4 km. Il y a une bibliothèque et deux boulangeries à proximité du logement.
Son prix de vente est de 244 000 €.
Contactez Samuel ROGER (tél : 02-96-78-52-58) pour plus d'informations sur cette maison ou sur les démarches à suivre.
Terrain proposé par un partenaire foncier selon disponibilités et autorisation de publicité au prix de 60 000 €. Hors droit d'enregistrement et frais de notaire. Terrain + Maison proposés au prix de 184 000 € (Hors branchements et raccordements, papiers peints, peintures, revêtement de sol dans les chambres. Tarif modifiable sans préavis). Etiquette énergie : A. Différents modèles disponibles pour ce terrain. Assurances et garanties du constructeur (RC professionnelle, décennale, dommage ouvrage, garantie de remboursement de l'acompte, livraison à prix et délai convenu) : https://www.maisonsdelavenir.com/mentions-legales/.
Localisation
Une maison 100% personnalisable
-
Garage
-
Agencement
-
Revêtements extérieurs
-
Toiture
-
Ouvertures
Nos garanties constructeur
UNE MAISON 100% PERSONNALISÉE
Définir un style architectural (contemporain, moderne, traditionnel) et un plan adapté à votre mode de vie pour mettre en lumière votre projet de construction, tel est notre quotidien !
SERVICE 3 EN 1
Nos conseillers habitat vous accompagnent tout au long de votre projet : Terrain – Maison - Financement, afin de garantir sa réussite et de satisfaire vos exigences !
DES ANNÉES D'EXPÉRIENCES
Depuis 1962, la marque Maisons de l’Avenir inspire confiance et sérénité, une si longue expérience dans la construction de maisons individuelles, c’est un vrai gage de qualité !























