Prix Maison + Terrain
- À partir de 388 000 €
Référence
- ET2323305_2
Maison personnalisable
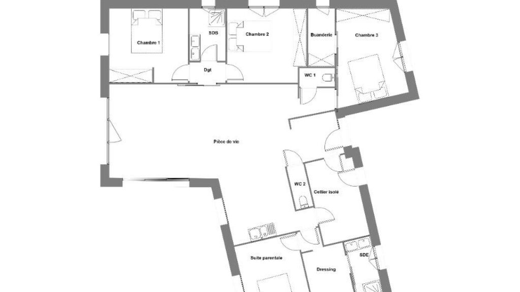
- Chambres : 4
- Nombre de pièces : 5
- Surface maison : 110 m²
- Surface terrain : 696 m²
- Garage/Carport
Performances énergétiques
- Classe énergétique : A
Description
🏡 À Vendre : Terrain de 696m² au coeur du Conquet - 111 360€ 🌳
Découvrez ce terrain idéalement situé sur la commune du Conquet, issu d'un petit lotissement. Ce terrain de 696m² offre une proximité exceptionnelle avec les commerces locaux, et Brest parfait pour une vie pratique et agréable. 🛒🏫
Nous vous proposons des plans sur mesure pour construire votre futur nid dans cette commune très recherchée. 🏠✨
Maisons de l'Avenir vous propose un modèle sur plan de 110m², comprenant 3 chambres dont une suite parentale, un vaste espace de vie de 45m², deux salles de bains, et un grand garage. 🛏️🍽️🚿
Les plans sont entièrement modifiables, permettant ainsi une maison sur mesure dans tous les aspects, conçue dans le cadre de notre gamme de maisons passives Bâti Activ. 🏠🌿 Cette maison a été pensée pour maximiser les apports de lumière naturelle, favorisant ainsi les gains énergétiques. 🌞⚡
L'opération globale terrain + maison est de 388 000€. 💰
Si ce terrain vous intéresse, n'hésitez pas à contacter Erwan TILLY des Maisons de l'Avenir pour plus d'informations et organiser une visite. 📞
Découvrez ce terrain idéalement situé sur la commune du Conquet, issu d'un petit lotissement. Ce terrain de 696m² offre une proximité exceptionnelle avec les commerces locaux, et Brest parfait pour une vie pratique et agréable. 🛒🏫
Nous vous proposons des plans sur mesure pour construire votre futur nid dans cette commune très recherchée. 🏠✨
Maisons de l'Avenir vous propose un modèle sur plan de 110m², comprenant 3 chambres dont une suite parentale, un vaste espace de vie de 45m², deux salles de bains, et un grand garage. 🛏️🍽️🚿
Les… Lire la suite
🏡 À Vendre : Terrain de 696m² au coeur du Conquet - 111 360€ 🌳
Découvrez ce terrain idéalement situé sur la commune du Conquet, issu d'un petit lotissement. Ce terrain de 696m² offre une proximité exceptionnelle avec les commerces locaux, et Brest parfait pour une vie pratique et agréable. 🛒🏫
Nous vous proposons des plans sur mesure pour construire votre futur nid dans cette commune très recherchée. 🏠✨
Maisons de l'Avenir vous propose un modèle sur plan de 110m², comprenant 3 chambres dont une suite parentale, un vaste espace de vie de 45m², deux salles de bains, et un grand garage. 🛏️🍽️🚿
Les plans sont entièrement modifiables, permettant ainsi une maison sur mesure dans tous les aspects, conçue dans le cadre de notre gamme de maisons passives Bâti Activ. 🏠🌿 Cette maison a été pensée pour maximiser les apports de lumière naturelle, favorisant ainsi les gains énergétiques. 🌞⚡
L'opération globale terrain + maison est de 388 000€. 💰
Si ce terrain vous intéresse, n'hésitez pas à contacter Erwan TILLY des Maisons de l'Avenir pour plus d'informations et organiser une visite. 📞
Maisons de l’Avenir, constructeur de maisons individuelles, propose en collaboration avec ses partenaires fonciers, une sélection de terrains constructibles, selon disponibilité, pour la construction de maisons neuves définies par le constructeur, avec un contrat de construction de maison individuelle, dans le cadre de la loi du 19/12/1990. Prix net, hors frais notariés, d'enregistrement et de publicité foncière
Terrain proposé au prix de : 110 000 €
Maison proposée au prix de : 278 000 €
Etiquette énergie : A. Assurances et garanties du constructeur (RC professionnelle, décennale, dommage ouvrage, Garantie de livraison à prix et délai convenu). https://www.maisonsdelavenir.com/mentions-legales/
Localisation
Une maison 100% personnalisable
-
Garage
-
Agencement
-
Revêtements extérieurs
-
Toiture
-
Ouvertures
Nos garanties constructeur
UNE MAISON 100% PERSONNALISÉE
Définir un style architectural (contemporain, moderne, traditionnel) et un plan adapté à votre mode de vie pour mettre en lumière votre projet de construction, tel est notre quotidien !
SERVICE 3 EN 1
Nos conseillers habitat vous accompagnent tout au long de votre projet : Terrain – Maison - Financement, afin de garantir sa réussite et de satisfaire vos exigences !
DES ANNÉES D'EXPÉRIENCES
Depuis 1962, la marque Maisons de l’Avenir inspire confiance et sérénité, une si longue expérience dans la construction de maisons individuelles, c’est un vrai gage de qualité !

















