Maison à construire de 67m² (3 chambres) sur un terrain de 400m² à Lanvaudan (56240)

2364594-6245modele620240822K24h8.jpeg
Nous contacter
  • Prix Maison + Terrain

    • À partir de 176 500 €
  • Référence

    • CC2364592_1
  • Maison personnalisable

    • Chambres : 3
    • Nombre de pièces : 4
    • Surface maison : 67 m²
    • Surface terrain : 400 m²
    • Garage/Carport
  • Performances énergétiques

    • Classe énergétique : A

Description

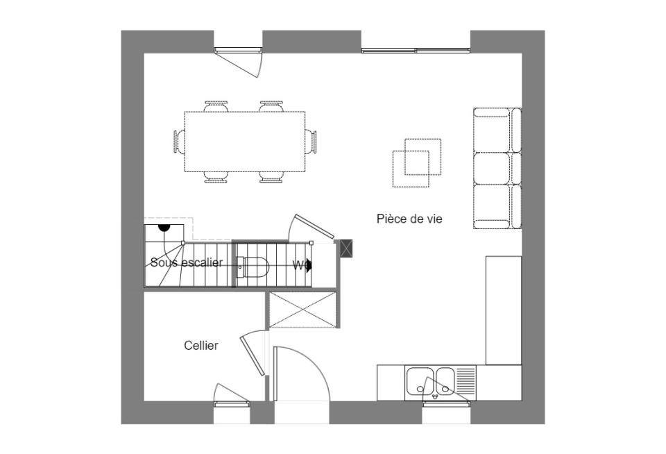
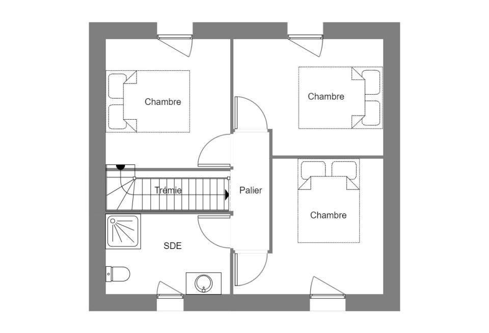
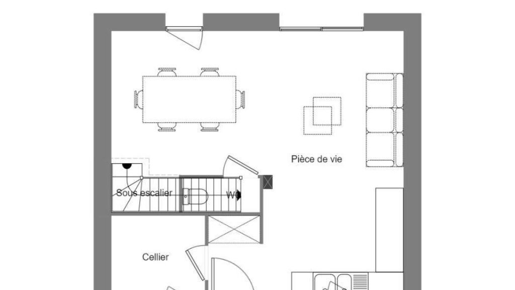
VENTE : maison T4 (67 m²) à Lanvaudan
EMPLACEMENT PRIVILÉGIÉ - MAISON 4 PIÈCES NEUVE
En vente : située à 28 km de l'océan Atlantique et à quelques kilomètres de Lorient, notre agence Maisons de l'Avenir Lorient est ravie de vous proposer cette maison de 4 pièces de 67 m² bénéficiant d'un emplacement privilégié dans Lanvaudan (56240). Elle dispose de trois chambres, d'une cuisine et d'une salle de bains.
Le terrain de la propriété s'étend sur 400 m².
Cette maison comporte 2 niveaux. Elle est neuve.
La maison se situe dans un quartier convoité. On trouve l'École Primaire Publique les Chaumières à moins de 10 minutes à pied. Il y a un accès à la nationale N24 à 10 km. Il y a un tennis à proximité.
Elle est à vendre pour la somme de 176 500 €.
Prenez contact avec notre constructeur (Christophe COLLOCH : 02-97-21-63-96) pour obtenir de plus amples renseignements sur la maison, sur les modalités de vente ou sur les démarches à suivre. Maisons de l'Avenir Lorient vous accompagne à toutes les étapes de votre projet et dans tous vos projets immobiliers.

Masquer
VENTE : maison T4 (67 m²) à Lanvaudan
EMPLACEMENT PRIVILÉGIÉ - MAISON 4 PIÈCES NEUVE
En vente : située à 28 km de l'océan Atlantique et à quelques kilomètres de Lorient, notre agence Maisons de l'Avenir Lorient est ravie de vous proposer cette maison de 4 pièces de 67 m² bénéficiant d'un emplacement privilégié dans Lanvaudan (56240). Elle dispose de trois chambres, d'une cuisine et d'une salle de bains.
Le terrain de la propriété s'étend sur 400 m².
Cette maison comporte 2 niveaux. Elle est neuve.
La maison se situe dans un quartier convoité. On trouve l'École Primaire Publique les Chaumières à moins de 10 minutes à… Lire la suite

VENTE : maison T4 (67 m²) à Lanvaudan
EMPLACEMENT PRIVILÉGIÉ - MAISON 4 PIÈCES NEUVE
En vente : située à 28 km de l'océan Atlantique et à quelques kilomètres de Lorient, notre agence Maisons de l'Avenir Lorient est ravie de vous proposer cette maison de 4 pièces de 67 m² bénéficiant d'un emplacement privilégié dans Lanvaudan (56240). Elle dispose de trois chambres, d'une cuisine et d'une salle de bains.
Le terrain de la propriété s'étend sur 400 m².
Cette maison comporte 2 niveaux. Elle est neuve.
La maison se situe dans un quartier convoité. On trouve l'École Primaire Publique les Chaumières à moins de 10 minutes à pied. Il y a un accès à la nationale N24 à 10 km. Il y a un tennis à proximité.
Elle est à vendre pour la somme de 176 500 €.
Prenez contact avec notre constructeur (Christophe COLLOCH : 02-97-21-63-96) pour obtenir de plus amples renseignements sur la maison, sur les modalités de vente ou sur les démarches à suivre. Maisons de l'Avenir Lorient vous accompagne à toutes les étapes de votre projet et dans tous vos projets immobiliers.

Localisation

Une maison 100% personnalisable

  • Garage

  • Agencement

  • Revêtements extérieurs

  • Toiture

  • Ouvertures

Nos garanties constructeur

UNE MAISON 100% PERSONNALISÉE

Définir un style architectural (contemporain, moderne, traditionnel) et un plan adapté à votre mode de vie pour mettre en lumière votre projet de construction, tel est notre quotidien !

SERVICE 3 EN 1

Nos conseillers habitat vous accompagnent tout au long de votre projet : Terrain – Maison - Financement, afin de garantir sa réussite et de satisfaire vos exigences !

DES ANNÉES D'EXPÉRIENCES

Depuis 1962, la marque Maisons de l’Avenir inspire confiance et sérénité, une si longue expérience dans la construction de maisons individuelles, c’est un vrai gage de qualité !