Prix Maison + Terrain
- À partir de 248 000 €
Référence
- MD2369689_4
Maison personnalisable
- Chambres : 3
- Nombre de pièces : 4
- Surface maison : 85 m²
- Surface terrain : 390 m²
- Garage/Carport
Performances énergétiques
- Classe énergétique : A
Description
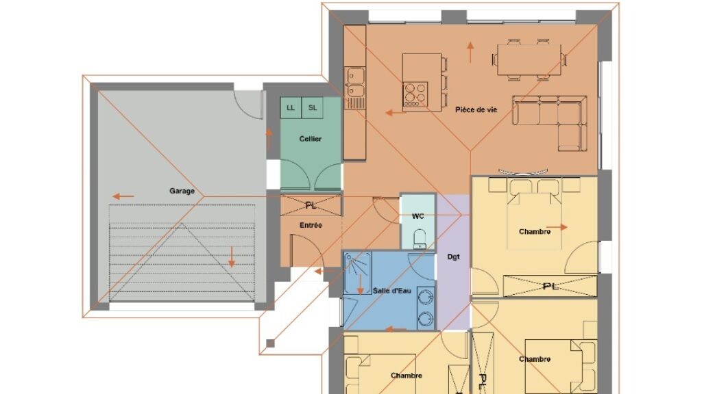
VENTE d'une maison T4 (85 m²) à Landudec
CENTRE-VILLE - MAISON 4 PIÈCES NEUVE
Sur le littoral atlantique et à deux pas de Quimper, à vendre à Landudec (29710), en centre-ville, nous vous présentons cette maison de 4 pièces de plain-pied de 85 m² et de 390 m² de terrain.
Son intérieur se divise en trois chambres, une cuisine et une salle de bains.
Son prix de vente est de 248 000 €.
Contactez notre agence (Mathieu DEROUET : 02-98-54-75-20) pour plus d'informations sur la maison. Maisons de l'Avenir Quimper est là pour vous accompagner dans tous vos projets immobiliers.
CENTRE-VILLE - MAISON 4 PIÈCES NEUVE
Sur le littoral atlantique et à deux pas de Quimper, à vendre à Landudec (29710), en centre-ville, nous vous présentons cette maison de 4 pièces de plain-pied de 85 m² et de 390 m² de terrain.
Son intérieur se divise en trois chambres, une cuisine et une salle de bains.
Son prix de vente est de 248 000 €.
Contactez notre agence (Mathieu DEROUET : 02-98-54-75-20) pour plus d'informations sur la maison. Maisons de l'Avenir Quimper est là pour vous accompagner dans tous vos projets immobiliers. Lire la suite
VENTE d'une maison T4 (85 m²) à Landudec
CENTRE-VILLE - MAISON 4 PIÈCES NEUVE
Sur le littoral atlantique et à deux pas de Quimper, à vendre à Landudec (29710), en centre-ville, nous vous présentons cette maison de 4 pièces de plain-pied de 85 m² et de 390 m² de terrain.
Son intérieur se divise en trois chambres, une cuisine et une salle de bains.
Son prix de vente est de 248 000 €.
Contactez notre agence (Mathieu DEROUET : 02-98-54-75-20) pour plus d'informations sur la maison. Maisons de l'Avenir Quimper est là pour vous accompagner dans tous vos projets immobiliers.
Maisons de l’Avenir, constructeur de maisons individuelles, propose en collaboration avec ses partenaires fonciers, une sélection de terrains constructibles, selon disponibilité, pour la construction de maisons neuves définies par le constructeur, avec un contrat de construction de maison individuelle, dans le cadre de la loi du 19/12/1990. Prix net, hors frais notariés, d'enregistrement et de publicité foncière
Terrain proposé au prix de : 31 000 €
Maison proposée au prix de : 217 000 €
Etiquette énergie : A. Assurances et garanties du constructeur (RC professionnelle, décennale, dommage ouvrage, Garantie de livraison à prix et délai convenu). https://www.maisonsdelavenir.com/mentions-legales/
Localisation
Une maison 100% personnalisable
-
Garage
-
Agencement
-
Revêtements extérieurs
-
Toiture
-
Ouvertures
Nos garanties constructeur
UNE MAISON 100% PERSONNALISÉE
Définir un style architectural (contemporain, moderne, traditionnel) et un plan adapté à votre mode de vie pour mettre en lumière votre projet de construction, tel est notre quotidien !
SERVICE 3 EN 1
Nos conseillers habitat vous accompagnent tout au long de votre projet : Terrain – Maison - Financement, afin de garantir sa réussite et de satisfaire vos exigences !
DES ANNÉES D'EXPÉRIENCES
Depuis 1962, la marque Maisons de l’Avenir inspire confiance et sérénité, une si longue expérience dans la construction de maisons individuelles, c’est un vrai gage de qualité !









