Prix Maison + Terrain
- À partir de 238 900 €
Référence
- AC2329965_1
Maison personnalisable
- Chambres : 3
- Nombre de pièces : 4
- Surface maison : 69 m²
- Surface terrain : 915 m²
- Garage/Carport
Performances énergétiques
- Classe énergétique : A
Description
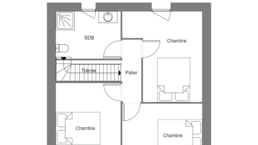
Maison de 4 pièces (69 m²) à vendre à Landivisiau
Cette belle maison traditionnelle aux lignes contemporaines offre 69m² habitable . Au rez-de-chaussée, elle dispose d'une belle pièce de vie offrant un maximum de lumière, d'un wc et d'un garage.
A l'étage on retrouve 3 chambres, une salle de bains, et un WC. L'orientation de cette maison vous permettra de bénéficier d'un maximum de lumière et de chaleur naturelle pour davantage d'économies et de douceur de vivre.
Son prix de vente est de 238 900 €.
Contactez notre agence (CAGNARD Aurélie : 02-98-03-90-90) pour toute information sur cette maison. Maisons de l'Avenir Guipavas est là pour vous accompagner dans tous vos projets immobiliers.
Cette belle maison traditionnelle aux lignes contemporaines offre 69m² habitable . Au rez-de-chaussée, elle dispose d'une belle pièce de vie offrant un maximum de lumière, d'un wc et d'un garage.
A l'étage on retrouve 3 chambres, une salle de bains, et un WC. L'orientation de cette maison vous permettra de bénéficier d'un maximum de lumière et de chaleur naturelle pour davantage d'économies et de douceur de vivre.
Son prix de vente est de 238 900 €.
Contactez notre agence (CAGNARD Aurélie : 02-98-03-90-90) pour toute information sur cette maison. Maisons de l'Avenir Guipavas… Lire la suite
Maison de 4 pièces (69 m²) à vendre à Landivisiau
Cette belle maison traditionnelle aux lignes contemporaines offre 69m² habitable . Au rez-de-chaussée, elle dispose d'une belle pièce de vie offrant un maximum de lumière, d'un wc et d'un garage.
A l'étage on retrouve 3 chambres, une salle de bains, et un WC. L'orientation de cette maison vous permettra de bénéficier d'un maximum de lumière et de chaleur naturelle pour davantage d'économies et de douceur de vivre.
Son prix de vente est de 238 900 €.
Contactez notre agence (CAGNARD Aurélie : 02-98-03-90-90) pour toute information sur cette maison. Maisons de l'Avenir Guipavas est là pour vous accompagner dans tous vos projets immobiliers.
Maisons de l’Avenir, constructeur de maisons individuelles, propose en collaboration avec ses partenaires fonciers, une sélection de terrains constructibles, selon disponibilité, pour la construction de maisons neuves définies par le constructeur, avec un contrat de construction de maison individuelle, dans le cadre de la loi du 19/12/1990. Prix net, hors frais notariés, d'enregistrement et de publicité foncière
Terrain proposé au prix de : 79 000 €
Maison proposée au prix de : 159 900 €
Etiquette énergie : A. Assurances et garanties du constructeur (RC professionnelle, décennale, dommage ouvrage, Garantie de livraison à prix et délai convenu). https://www.maisonsdelavenir.com/mentions-legales/
Localisation
Une maison 100% personnalisable
-
Garage
-
Agencement
-
Revêtements extérieurs
-
Toiture
-
Ouvertures
Nos garanties constructeur
UNE MAISON 100% PERSONNALISÉE
Définir un style architectural (contemporain, moderne, traditionnel) et un plan adapté à votre mode de vie pour mettre en lumière votre projet de construction, tel est notre quotidien !
SERVICE 3 EN 1
Nos conseillers habitat vous accompagnent tout au long de votre projet : Terrain – Maison - Financement, afin de garantir sa réussite et de satisfaire vos exigences !
DES ANNÉES D'EXPÉRIENCES
Depuis 1962, la marque Maisons de l’Avenir inspire confiance et sérénité, une si longue expérience dans la construction de maisons individuelles, c’est un vrai gage de qualité !

















