Prix Maison + Terrain
- À partir de 468 000 €
Référence
- ET2337534_1
Maison personnalisable
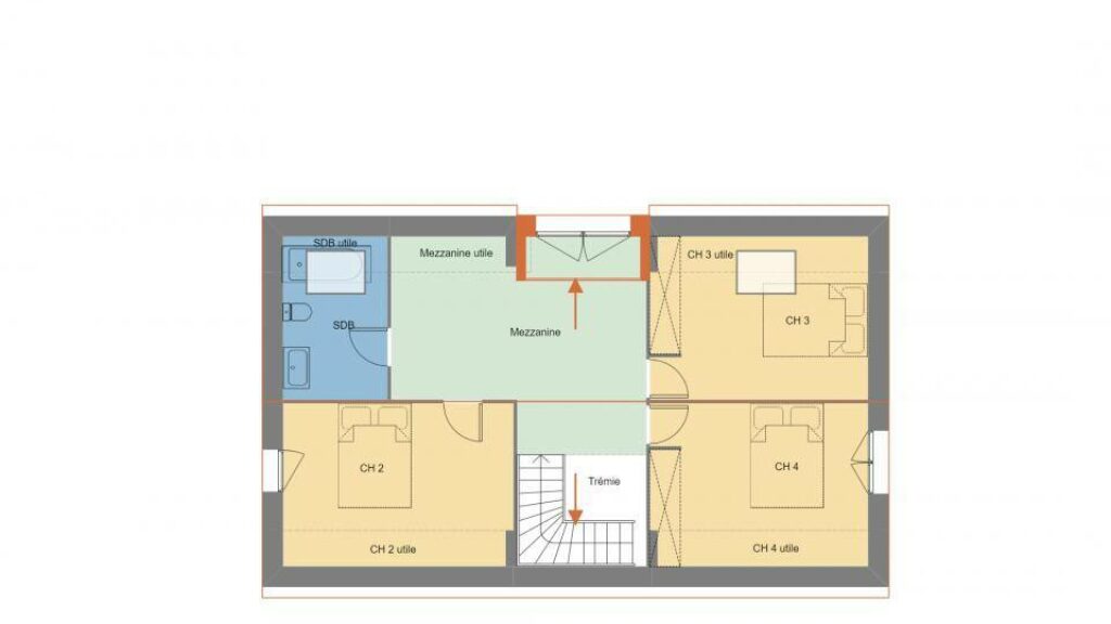
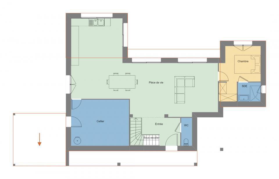
- Chambres : 4
- Nombre de pièces : 5
- Surface maison : 150 m²
- Surface terrain : 674 m²
- Garage/Carport
Performances énergétiques
- Classe énergétique : A
Description
📢 À vendre : terrain disponible à Landerneau ! 🌿🏡
Saisissez cette opportunité rare sur la commune de Landerneau ! Ce magnifique terrain de 674 m², situé dans un petit lotissement, bénéficie d'une belle exposition et d'un cadre idéal pour votre futur projet de construction.
Une occasion à ne pas manquer !
🏡 Projet clé en main : Nous vous proposons les plans d'une maison à étage de 150 m², pensée dans le cadre de notre concept Bâti Activ Passif, alliant performance énergétique et confort.
Cette maison comprend :
✔️ 5 chambres
✔️ Un vaste espace de vie lumineux
✔️ 2 salles de bains
✔️ Un garage
💰 Opération terrain + maison : 468 000 €
Contactez vite Erwan TILLY des Maisons de l'Avenir pour organiser une visite et commencer à concevoir les plans sur mesure de votre future maison.
📞 Erwan TILLY - Maisons de l'Avenir
⚠️ Faites vite, ce terrain partira très rapidement ! 🚀
Saisissez cette opportunité rare sur la commune de Landerneau ! Ce magnifique terrain de 674 m², situé dans un petit lotissement, bénéficie d'une belle exposition et d'un cadre idéal pour votre futur projet de construction.
Une occasion à ne pas manquer !
🏡 Projet clé en main : Nous vous proposons les plans d'une maison à étage de 150 m², pensée dans le cadre de notre concept Bâti Activ Passif, alliant performance énergétique et confort.
Cette maison comprend :
✔️ 5 chambres
✔️ Un vaste espace de vie lumineux
✔️ 2 salles de bains
✔️ Un garage
💰 Opération… Lire la suite
📢 À vendre : terrain disponible à Landerneau ! 🌿🏡
Saisissez cette opportunité rare sur la commune de Landerneau ! Ce magnifique terrain de 674 m², situé dans un petit lotissement, bénéficie d'une belle exposition et d'un cadre idéal pour votre futur projet de construction.
Une occasion à ne pas manquer !
🏡 Projet clé en main : Nous vous proposons les plans d'une maison à étage de 150 m², pensée dans le cadre de notre concept Bâti Activ Passif, alliant performance énergétique et confort.
Cette maison comprend :
✔️ 5 chambres
✔️ Un vaste espace de vie lumineux
✔️ 2 salles de bains
✔️ Un garage
💰 Opération terrain + maison : 468 000 €
Contactez vite Erwan TILLY des Maisons de l'Avenir pour organiser une visite et commencer à concevoir les plans sur mesure de votre future maison.
📞 Erwan TILLY - Maisons de l'Avenir
⚠️ Faites vite, ce terrain partira très rapidement ! 🚀
Maisons de l’Avenir, constructeur de maisons individuelles, propose en collaboration avec ses partenaires fonciers, une sélection de terrains constructibles, selon disponibilité, pour la construction de maisons neuves définies par le constructeur, avec un contrat de construction de maison individuelle, dans le cadre de la loi du 19/12/1990. Prix net, hors frais notariés, d'enregistrement et de publicité foncière
Terrain proposé au prix de : 108 000 €
Maison proposée au prix de : 360 000 €
Etiquette énergie : A. Assurances et garanties du constructeur (RC professionnelle, décennale, dommage ouvrage, Garantie de livraison à prix et délai convenu). https://www.maisonsdelavenir.com/mentions-legales/
Localisation
Une maison 100% personnalisable
-
Garage
-
Agencement
-
Revêtements extérieurs
-
Toiture
-
Ouvertures
Nos garanties constructeur
UNE MAISON 100% PERSONNALISÉE
Définir un style architectural (contemporain, moderne, traditionnel) et un plan adapté à votre mode de vie pour mettre en lumière votre projet de construction, tel est notre quotidien !
SERVICE 3 EN 1
Nos conseillers habitat vous accompagnent tout au long de votre projet : Terrain – Maison - Financement, afin de garantir sa réussite et de satisfaire vos exigences !
DES ANNÉES D'EXPÉRIENCES
Depuis 1962, la marque Maisons de l’Avenir inspire confiance et sérénité, une si longue expérience dans la construction de maisons individuelles, c’est un vrai gage de qualité !















