Prix Maison + Terrain
- À partir de 387 700 €
Référence
- AC2330018_2
Maison personnalisable
- Chambres : 5
- Nombre de pièces : 6
- Surface maison : 119 m²
- Surface terrain : 1008 m²
- Garage/Carport
Performances énergétiques
- Classe énergétique : A
Description
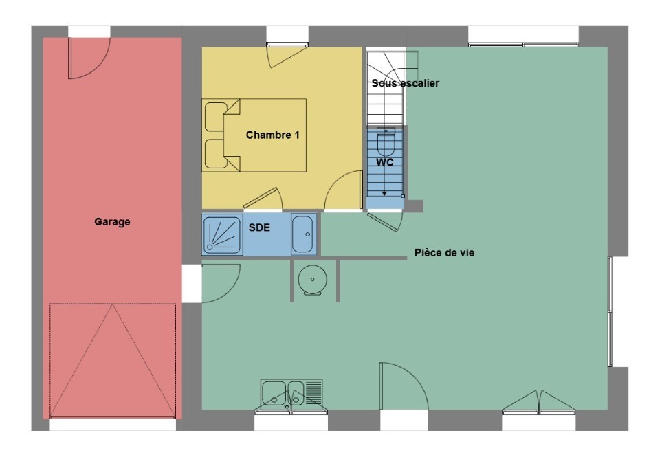
VENTE d'une maison de 6 pièces à Landerneau
Cette belle maison traditionnelle aux lignes contemporaines offre 119m² habitable .
Au rez-de-chaussée, elle dispose d'une belle pièce de vie offrant un maximum de lumière, d'une suite parentale avec sa salle d'eau, d'un wc et son garage.
A l'étage on retrouve 4 chambres, une salle de bains, et un WC. L'orientation de cette maison vous permettra de bénéficier d'un maximum de luminosité.
Elle est proposée à l'achat pour 387 700 €.
N'hésitez pas à prendre contact avec Aurélie CAGNARD (02-98-03-90-90) pour toute question sur cette propriété ou sur les modalités de vente.
Cette belle maison traditionnelle aux lignes contemporaines offre 119m² habitable .
Au rez-de-chaussée, elle dispose d'une belle pièce de vie offrant un maximum de lumière, d'une suite parentale avec sa salle d'eau, d'un wc et son garage.
A l'étage on retrouve 4 chambres, une salle de bains, et un WC. L'orientation de cette maison vous permettra de bénéficier d'un maximum de luminosité.
Elle est proposée à l'achat pour 387 700 €.
N'hésitez pas à prendre contact avec Aurélie CAGNARD (02-98-03-90-90) pour toute question sur cette propriété ou sur les modalités de vente. Lire la suite
VENTE d'une maison de 6 pièces à Landerneau
Cette belle maison traditionnelle aux lignes contemporaines offre 119m² habitable .
Au rez-de-chaussée, elle dispose d'une belle pièce de vie offrant un maximum de lumière, d'une suite parentale avec sa salle d'eau, d'un wc et son garage.
A l'étage on retrouve 4 chambres, une salle de bains, et un WC. L'orientation de cette maison vous permettra de bénéficier d'un maximum de luminosité.
Elle est proposée à l'achat pour 387 700 €.
N'hésitez pas à prendre contact avec Aurélie CAGNARD (02-98-03-90-90) pour toute question sur cette propriété ou sur les modalités de vente.
Maisons de l’Avenir, constructeur de maisons individuelles, propose en collaboration avec ses partenaires fonciers, une sélection de terrains constructibles, selon disponibilité, pour la construction de maisons neuves définies par le constructeur, avec un contrat de construction de maison individuelle, dans le cadre de la loi du 19/12/1990. Prix net, hors frais notariés, d'enregistrement et de publicité foncière
Terrain proposé au prix de : 99 000 €
Maison proposée au prix de : 288 700 €
Etiquette énergie : A. Assurances et garanties du constructeur (RC professionnelle, décennale, dommage ouvrage, Garantie de livraison à prix et délai convenu). https://www.maisonsdelavenir.com/mentions-legales/
Localisation
Une maison 100% personnalisable
-
Garage
-
Agencement
-
Revêtements extérieurs
-
Toiture
-
Ouvertures
Nos garanties constructeur
UNE MAISON 100% PERSONNALISÉE
Définir un style architectural (contemporain, moderne, traditionnel) et un plan adapté à votre mode de vie pour mettre en lumière votre projet de construction, tel est notre quotidien !
SERVICE 3 EN 1
Nos conseillers habitat vous accompagnent tout au long de votre projet : Terrain – Maison - Financement, afin de garantir sa réussite et de satisfaire vos exigences !
DES ANNÉES D'EXPÉRIENCES
Depuis 1962, la marque Maisons de l’Avenir inspire confiance et sérénité, une si longue expérience dans la construction de maisons individuelles, c’est un vrai gage de qualité !



















