Prix Maison + Terrain
- À partir de 274 933 €
Référence
- SA2369476_2
Maison personnalisable
- Chambres : 3
- Nombre de pièces : 4
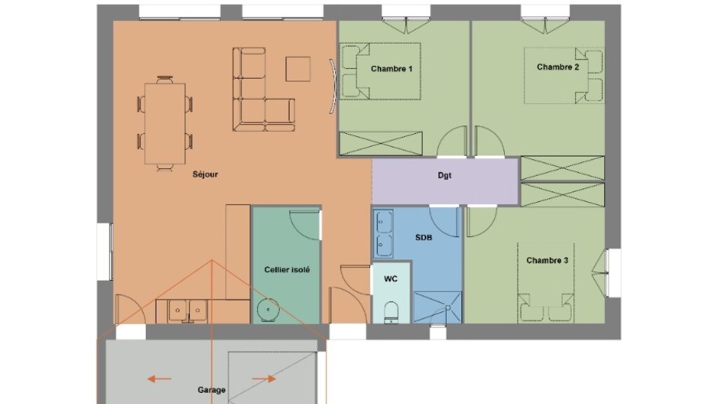
- Surface maison : 80 m²
- Surface terrain : 536 m²
- Garage/Carport
Performances énergétiques
- Classe énergétique : A
Description
Landéda : maison de 4 pièces (80 m²) à vendre
PROCHE CENTRE-VILLE - MAISON 4 PIÈCES NEUVE
Sur le littoral et à quelques kilomètres de Brest, votre agence Maisons de l'Avenir Guipavas est ravie de vous présenter cette maison de 4 pièces de plain-pied de 80 m² et de 536 m² de terrain à vendre, proche du centre-ville de Landéda (29870). Elle inclut trois chambres, une cuisine et une salle de bains.
La maison est neuve.
Il y a l'École Primaire Publique Joseph Signor et l'École Primaire Privée Notre-Dame des Anges à moins de 10 minutes à pied et une crèche. La nationale N12 est accessible à 20 km. On trouve une bibliothèque, deux boulangeries, un commerce, une boucherie-charcuterie et une épicerie à proximité.
Elle est à vendre pour la somme de 274 933 €.
N'hésitez pas à prendre contact avec Sami ALKIS pour tout renseignement sur le bien, sur les modalités de vente ou sur les démarches à suivre. Maisons de l'Avenir Guipavas vous accompagne à toutes les étapes de l'achat et dans tous vos projets immobiliers.
PROCHE CENTRE-VILLE - MAISON 4 PIÈCES NEUVE
Sur le littoral et à quelques kilomètres de Brest, votre agence Maisons de l'Avenir Guipavas est ravie de vous présenter cette maison de 4 pièces de plain-pied de 80 m² et de 536 m² de terrain à vendre, proche du centre-ville de Landéda (29870). Elle inclut trois chambres, une cuisine et une salle de bains.
La maison est neuve.
Il y a l'École Primaire Publique Joseph Signor et l'École Primaire Privée Notre-Dame des Anges à moins de 10 minutes à pied et une crèche. La nationale N12 est accessible… Lire la suite
Landéda : maison de 4 pièces (80 m²) à vendre
PROCHE CENTRE-VILLE - MAISON 4 PIÈCES NEUVE
Sur le littoral et à quelques kilomètres de Brest, votre agence Maisons de l'Avenir Guipavas est ravie de vous présenter cette maison de 4 pièces de plain-pied de 80 m² et de 536 m² de terrain à vendre, proche du centre-ville de Landéda (29870). Elle inclut trois chambres, une cuisine et une salle de bains.
La maison est neuve.
Il y a l'École Primaire Publique Joseph Signor et l'École Primaire Privée Notre-Dame des Anges à moins de 10 minutes à pied et une crèche. La nationale N12 est accessible à 20 km. On trouve une bibliothèque, deux boulangeries, un commerce, une boucherie-charcuterie et une épicerie à proximité.
Elle est à vendre pour la somme de 274 933 €.
N'hésitez pas à prendre contact avec Sami ALKIS pour tout renseignement sur le bien, sur les modalités de vente ou sur les démarches à suivre. Maisons de l'Avenir Guipavas vous accompagne à toutes les étapes de l'achat et dans tous vos projets immobiliers.
Maisons de l’Avenir, constructeur de maisons individuelles, propose en collaboration avec ses partenaires fonciers, une sélection de terrains constructibles, selon disponibilité, pour la construction de maisons neuves définies par le constructeur, avec un contrat de construction de maison individuelle, dans le cadre de la loi du 19/12/1990. Prix net, hors frais notariés, d'enregistrement et de publicité foncière
Terrain proposé au prix de : 67 000 €
Maison proposée au prix de : 207 933 €
Etiquette énergie : A. Assurances et garanties du constructeur (RC professionnelle, décennale, dommage ouvrage, Garantie de livraison à prix et délai convenu). https://www.maisonsdelavenir.com/mentions-legales/
Localisation
Une maison 100% personnalisable
-
Garage
-
Agencement
-
Revêtements extérieurs
-
Toiture
-
Ouvertures
Nos garanties constructeur
UNE MAISON 100% PERSONNALISÉE
Définir un style architectural (contemporain, moderne, traditionnel) et un plan adapté à votre mode de vie pour mettre en lumière votre projet de construction, tel est notre quotidien !
SERVICE 3 EN 1
Nos conseillers habitat vous accompagnent tout au long de votre projet : Terrain – Maison - Financement, afin de garantir sa réussite et de satisfaire vos exigences !
DES ANNÉES D'EXPÉRIENCES
Depuis 1962, la marque Maisons de l’Avenir inspire confiance et sérénité, une si longue expérience dans la construction de maisons individuelles, c’est un vrai gage de qualité !

















