Prix Maison + Terrain
- À partir de 235 000 €
Référence
- ET2323295_3
Maison personnalisable
- Chambres : 3
- Nombre de pièces : 4
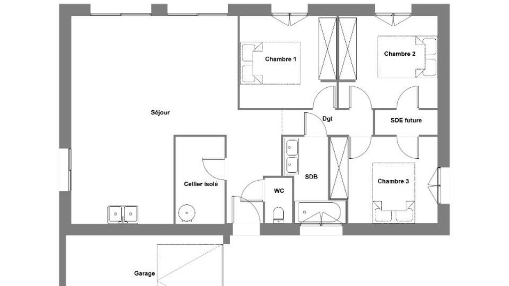
- Surface maison : 70 m²
- Surface terrain : 589 m²
- Garage/Carport
Performances énergétiques
- Classe énergétique : A
Description
🏡 À Vendre : Terrain de 589m² a Landéda - 66 000€ 🌊
Découvrez ce magnifique terrain de 589m², idéalement situé dans un petit lotissement paisible sur la commune de Landéda à deux pas de la mer. 🌅 Ce terrain offre un cadre exceptionnel pour construire la maison de vos rêves, alliant tranquillité et proximité avec les plages. 🏖️
Maisons de l'Avenir vous propose un modèle sur plan de 70m² plein pief, comprenant 3 chambres dont une suite parentale, un vaste espace de vie de 36m², deux salles de bains, et un grand garage. 🛏️🍽️🚿
Les plans sont entièrement modifiables, permettant ainsi une maison sur mesure dans tous les aspects, conçue dans le cadre de notre gamme de maisons passives Bâti Activ. 🏠🌿 Cette maison a été pensée pour maximiser les apports de lumière naturelle, favorisant ainsi les gains énergétiques. 🌞⚡
L'opération globale terrain + maison est de 235 000€. 💰
Ce bien rare et recherché est une opportunité à ne pas manquer. ⭐
Pour plus d'informations ou pour organiser une visite, contactez Erwan TILLY 📞. Ne tardez pas, ce terrain risque de partir rapidement ! ⏳
Découvrez ce magnifique terrain de 589m², idéalement situé dans un petit lotissement paisible sur la commune de Landéda à deux pas de la mer. 🌅 Ce terrain offre un cadre exceptionnel pour construire la maison de vos rêves, alliant tranquillité et proximité avec les plages. 🏖️
Maisons de l'Avenir vous propose un modèle sur plan de 70m² plein pief, comprenant 3 chambres dont une suite parentale, un vaste espace de vie de 36m², deux salles de bains, et un grand garage. 🛏️🍽️🚿
Les plans sont entièrement modifiables, permettant ainsi une… Lire la suite
🏡 À Vendre : Terrain de 589m² a Landéda - 66 000€ 🌊
Découvrez ce magnifique terrain de 589m², idéalement situé dans un petit lotissement paisible sur la commune de Landéda à deux pas de la mer. 🌅 Ce terrain offre un cadre exceptionnel pour construire la maison de vos rêves, alliant tranquillité et proximité avec les plages. 🏖️
Maisons de l'Avenir vous propose un modèle sur plan de 70m² plein pief, comprenant 3 chambres dont une suite parentale, un vaste espace de vie de 36m², deux salles de bains, et un grand garage. 🛏️🍽️🚿
Les plans sont entièrement modifiables, permettant ainsi une maison sur mesure dans tous les aspects, conçue dans le cadre de notre gamme de maisons passives Bâti Activ. 🏠🌿 Cette maison a été pensée pour maximiser les apports de lumière naturelle, favorisant ainsi les gains énergétiques. 🌞⚡
L'opération globale terrain + maison est de 235 000€. 💰
Ce bien rare et recherché est une opportunité à ne pas manquer. ⭐
Pour plus d'informations ou pour organiser une visite, contactez Erwan TILLY 📞. Ne tardez pas, ce terrain risque de partir rapidement ! ⏳
Maisons de l’Avenir, constructeur de maisons individuelles, propose en collaboration avec ses partenaires fonciers, une sélection de terrains constructibles, selon disponibilité, pour la construction de maisons neuves définies par le constructeur, avec un contrat de construction de maison individuelle, dans le cadre de la loi du 19/12/1990. Prix net, hors frais notariés, d'enregistrement et de publicité foncière
Terrain proposé au prix de : 66 000 €
Maison proposée au prix de : 169 000 €
Etiquette énergie : A. Assurances et garanties du constructeur (RC professionnelle, décennale, dommage ouvrage, Garantie de livraison à prix et délai convenu). https://www.maisonsdelavenir.com/mentions-legales/
Localisation
Une maison 100% personnalisable
-
Garage
-
Agencement
-
Revêtements extérieurs
-
Toiture
-
Ouvertures
Nos garanties constructeur
UNE MAISON 100% PERSONNALISÉE
Définir un style architectural (contemporain, moderne, traditionnel) et un plan adapté à votre mode de vie pour mettre en lumière votre projet de construction, tel est notre quotidien !
SERVICE 3 EN 1
Nos conseillers habitat vous accompagnent tout au long de votre projet : Terrain – Maison - Financement, afin de garantir sa réussite et de satisfaire vos exigences !
DES ANNÉES D'EXPÉRIENCES
Depuis 1962, la marque Maisons de l’Avenir inspire confiance et sérénité, une si longue expérience dans la construction de maisons individuelles, c’est un vrai gage de qualité !

















