Prix Maison + Terrain
- À partir de 360 000 €
Référence
- QL2320873_4
Maison personnalisable
- Chambres : 3
- Nombre de pièces : 4
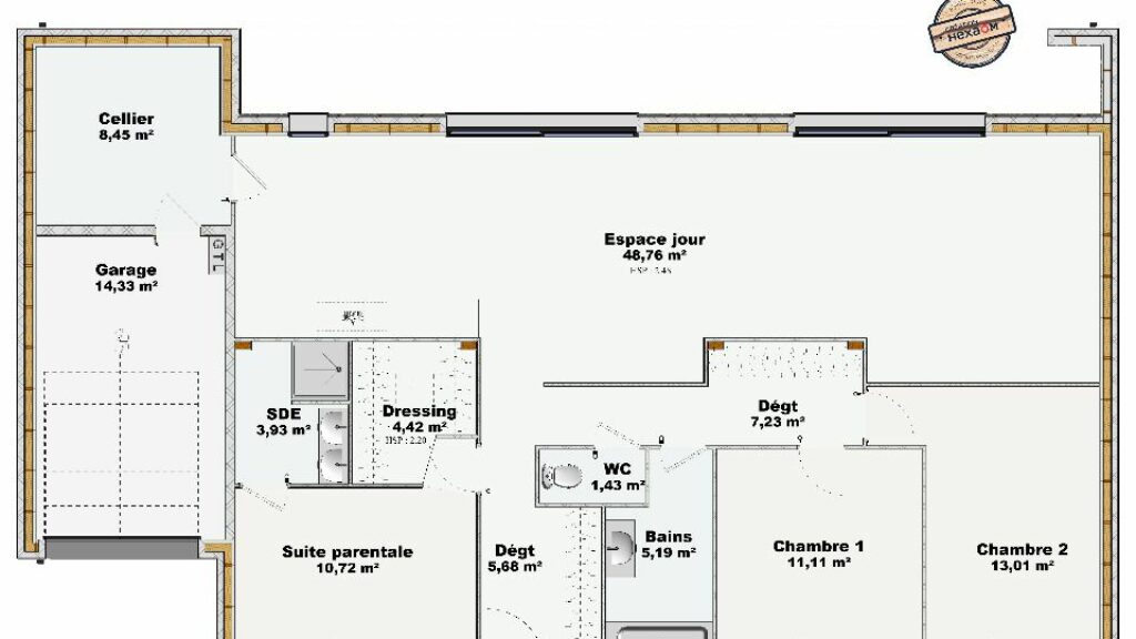
- Surface maison : 120 m²
- Surface terrain : 457 m²
- Garage/Carport
Performances énergétiques
- Classe énergétique : A
Description
VENTE d'une maison bois F4 (120 m²) à Lamballe-Armor
MAISON 4 PIÈCES NEUVE - PROCHE DE SAINT-BRIEUC
En vente : à 19 km de la Manche et à 21 km de Saint-Brieuc, à Lamballe-Armor (22400), nous sommes ravis de vous proposer cette maison de 4 pièces de plain-pied de 120 m².
Conçue de plain-pied, elle propose trois chambres, une cuisine et deux salles de bains. Cette maison est neuve.
Le terrain du bien est de 457 m².
Quatre établissements scolaires sont implantés à moins de 10 minutes à pied. Niveau transports, il y a la gare Lamballe juste à côté. On trouve un accès à la nationale N12 à 2 km. On trouve des commerces, des boulangeries, deux supermarchés, trois épiceries et un bureau de poste dans les environs.
Elle est à vendre pour la somme de 360 000 €.
Contactez Quentin LEZOUR (tél : 02-99-83-07-20) pour obtenir de plus amples renseignements sur la maison, sur les modalités de vente ou sur les démarches à suivre. Maisons de l'Avenir Saint-Carné vous accompagne dans tous vos projets immobiliers et dans toutes vos démarches.
MAISON 4 PIÈCES NEUVE - PROCHE DE SAINT-BRIEUC
En vente : à 19 km de la Manche et à 21 km de Saint-Brieuc, à Lamballe-Armor (22400), nous sommes ravis de vous proposer cette maison de 4 pièces de plain-pied de 120 m².
Conçue de plain-pied, elle propose trois chambres, une cuisine et deux salles de bains. Cette maison est neuve.
Le terrain du bien est de 457 m².
Quatre établissements scolaires sont implantés à moins de 10 minutes à pied. Niveau transports, il y a la gare Lamballe juste à côté. On trouve un accès à la nationale… Lire la suite
VENTE d'une maison bois F4 (120 m²) à Lamballe-Armor
MAISON 4 PIÈCES NEUVE - PROCHE DE SAINT-BRIEUC
En vente : à 19 km de la Manche et à 21 km de Saint-Brieuc, à Lamballe-Armor (22400), nous sommes ravis de vous proposer cette maison de 4 pièces de plain-pied de 120 m².
Conçue de plain-pied, elle propose trois chambres, une cuisine et deux salles de bains. Cette maison est neuve.
Le terrain du bien est de 457 m².
Quatre établissements scolaires sont implantés à moins de 10 minutes à pied. Niveau transports, il y a la gare Lamballe juste à côté. On trouve un accès à la nationale N12 à 2 km. On trouve des commerces, des boulangeries, deux supermarchés, trois épiceries et un bureau de poste dans les environs.
Elle est à vendre pour la somme de 360 000 €.
Contactez Quentin LEZOUR (tél : 02-99-83-07-20) pour obtenir de plus amples renseignements sur la maison, sur les modalités de vente ou sur les démarches à suivre. Maisons de l'Avenir Saint-Carné vous accompagne dans tous vos projets immobiliers et dans toutes vos démarches.
Maisons de l’Avenir, constructeur de maisons individuelles, propose en collaboration avec ses partenaires fonciers, une sélection de terrains constructibles, selon disponibilité, pour la construction de maisons neuves définies par le constructeur, avec un contrat de construction de maison individuelle, dans le cadre de la loi du 19/12/1990. Prix net, hors frais notariés, d'enregistrement et de publicité foncière
Terrain proposé au prix de : 60 000 €
Maison proposée au prix de : 300 000 €
Etiquette énergie : A. Assurances et garanties du constructeur (RC professionnelle, décennale, dommage ouvrage, Garantie de livraison à prix et délai convenu). https://www.maisonsdelavenir.com/mentions-legales/
Localisation
Une maison 100% personnalisable
-
Garage
-
Agencement
-
Revêtements extérieurs
-
Toiture
-
Ouvertures
Nos garanties constructeur
UNE MAISON 100% PERSONNALISÉE
Définir un style architectural (contemporain, moderne, traditionnel) et un plan adapté à votre mode de vie pour mettre en lumière votre projet de construction, tel est notre quotidien !
SERVICE 3 EN 1
Nos conseillers habitat vous accompagnent tout au long de votre projet : Terrain – Maison - Financement, afin de garantir sa réussite et de satisfaire vos exigences !
DES ANNÉES D'EXPÉRIENCES
Depuis 1962, la marque Maisons de l’Avenir inspire confiance et sérénité, une si longue expérience dans la construction de maisons individuelles, c’est un vrai gage de qualité !



































