Maison à construire de 89m² (4 chambres) sur un terrain de 306m² à La Vicomté-sur-Rance (22690)

2320722-3594modele6202006294ICaw.jpeg
Nous contacter
  • Prix Maison + Terrain

    • À partir de 237 950 €
  • Référence

    • LA2320708_3
  • Maison personnalisable

    • Chambres : 4
    • Nombre de pièces : 5
    • Surface maison : 89 m²
    • Surface terrain : 306 m²
    • Garage/Carport
  • Performances énergétiques

    • Classe énergétique : A

Description

VENTE d'une maison de 5 pièces (89 m²) à La Vicomté-sur-Rance
EMPLACEMENT PRIVILÉGIÉ -PROCHE DE DINAN 

MAISON 5 PIÈCES NEUVE
En vente : à 3 km de la Manche et à quelques kilomètres de Saint-Malo, venez découvrir cette maison de 5 pièces de 89 m² bénéficiant d'un emplacement d'exception dans La Vicomté-sur-Rance (22690).
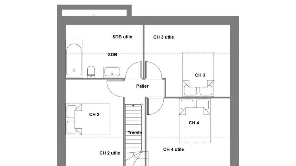
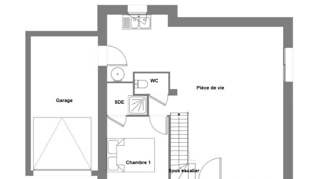
Cette maison comporte 2 niveaux. Elle dispose de quatre chambres, d'une cuisine et de deux salles de bains. La maison est neuve.
Le terrain de la propriété s'étend sur 306 m².
Cette maison se trouve dans un quartier recherché. Il y a l'École Primaire Publique Tiphaine Raguenel à moins de 10 minutes à pied. Niveau transports, on trouve quatre gares à moins de 10 minutes en voiture. La nationale N176 est accessible à 5 km. Il y a deux commerces et une boulangerie à quelques minutes du logement.
Elle est à vendre pour la somme de 237 950 €.
Contactez notre agence (Laetitia AMIRI : 02-99-83-07-20) pour obtenir de plus amples renseignements sur la maison, sur les démarches à suivre ou sur les modalités de vente. Concrétisez vos projets immobiliers avec Maisons de l'Avenir Saint-Carné.

Masquer
VENTE d'une maison de 5 pièces (89 m²) à La Vicomté-sur-Rance
EMPLACEMENT PRIVILÉGIÉ -PROCHE DE DINAN 

MAISON 5 PIÈCES NEUVE
En vente : à 3 km de la Manche et à quelques kilomètres de Saint-Malo, venez découvrir cette maison de 5 pièces de 89 m² bénéficiant d'un emplacement d'exception dans La Vicomté-sur-Rance (22690).
Cette maison comporte 2 niveaux. Elle dispose de quatre chambres, d'une cuisine et de deux salles de bains. La maison est neuve.
Le terrain de la propriété s'étend sur 306 m².
Cette maison se trouve dans un quartier recherché. Il y a l'École Primaire Publique Tiphaine Raguenel à moins de 10 minutes à pied.… Lire la suite

VENTE d'une maison de 5 pièces (89 m²) à La Vicomté-sur-Rance
EMPLACEMENT PRIVILÉGIÉ -PROCHE DE DINAN 

MAISON 5 PIÈCES NEUVE
En vente : à 3 km de la Manche et à quelques kilomètres de Saint-Malo, venez découvrir cette maison de 5 pièces de 89 m² bénéficiant d'un emplacement d'exception dans La Vicomté-sur-Rance (22690).
Cette maison comporte 2 niveaux. Elle dispose de quatre chambres, d'une cuisine et de deux salles de bains. La maison est neuve.
Le terrain de la propriété s'étend sur 306 m².
Cette maison se trouve dans un quartier recherché. Il y a l'École Primaire Publique Tiphaine Raguenel à moins de 10 minutes à pied. Niveau transports, on trouve quatre gares à moins de 10 minutes en voiture. La nationale N176 est accessible à 5 km. Il y a deux commerces et une boulangerie à quelques minutes du logement.
Elle est à vendre pour la somme de 237 950 €.
Contactez notre agence (Laetitia AMIRI : 02-99-83-07-20) pour obtenir de plus amples renseignements sur la maison, sur les démarches à suivre ou sur les modalités de vente. Concrétisez vos projets immobiliers avec Maisons de l'Avenir Saint-Carné.

Localisation

Une maison 100% personnalisable

  • Garage

  • Agencement

  • Revêtements extérieurs

  • Toiture

  • Ouvertures

Nos garanties constructeur

UNE MAISON 100% PERSONNALISÉE

Définir un style architectural (contemporain, moderne, traditionnel) et un plan adapté à votre mode de vie pour mettre en lumière votre projet de construction, tel est notre quotidien !

SERVICE 3 EN 1

Nos conseillers habitat vous accompagnent tout au long de votre projet : Terrain – Maison - Financement, afin de garantir sa réussite et de satisfaire vos exigences !

DES ANNÉES D'EXPÉRIENCES

Depuis 1962, la marque Maisons de l’Avenir inspire confiance et sérénité, une si longue expérience dans la construction de maisons individuelles, c’est un vrai gage de qualité !