Maison à construire de 87m² (4 chambres) sur un terrain de 772m² à La Haie-Fouassière (44690)

2386501-5377modele7202203293JKQC.jpeg
Nous contacter
  • Prix Maison + Terrain

    • À partir de 338 250 €
  • Référence

    • PAB2358004_11
  • Maison personnalisable

    • Chambres : 4
    • Nombre de pièces : 5
    • Surface maison : 87 m²
    • Surface terrain : 772 m²
    • Garage/Carport
  • Performances énergétiques

    • Classe énergétique : A

Description

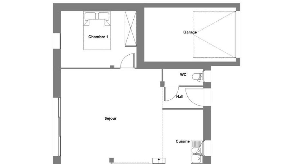
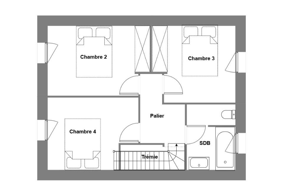
Maison F5 (87 m²) à vendre à La Haie-Fouassière
EMPLACEMENT PRIVILÉGIÉ - MAISON 5 PIÈCES NEUVE
En vente à 38 km de l'océan Atlantique et à deux pas de Nantes, Maisons de l'Avenir Rezé vous propose cette maison de 5 pièces de 87 m² bénéficiant d'un emplacement d'exception dans La Haie-Fouassière (44690). Son intérieur est composé de quatre chambres, d'une cuisine et d'une salle de bains.
Le terrain de cette maison est de 772 m².
Cette maison possède 2 niveaux. Elle est neuve.
Cette maison se trouve dans un secteur convoité. Il y a l'École Primaire Privée Saint Joseph, l'École Élémentaire Publique Charles Gifard et l'École Maternelle Publique le Petit Prince à moins de 10 minutes à pied. Côté transports, on trouve la gare La Haie-Fouassière à proximité. L'autoroute A83 et les nationales N249 et N844 sont accessibles à moins de 9 km. Il y a une bibliothèque, trois commerces, deux boulangeries, deux boucheries-charcuteries, un bureau de poste et une épicerie dans les environs.
Son prix de vente est de 338 250 €.
Prenez contact avec notre agence (BURILLE Pierre Antoine : 02-40-26-28-28) pour toute question sur le bien, sur les modalités de vente ou sur les démarches à suivre. Faites de vos projets immobiliers une réalité avec Maisons de l'Avenir Rezé.

Masquer
Maison F5 (87 m²) à vendre à La Haie-Fouassière
EMPLACEMENT PRIVILÉGIÉ - MAISON 5 PIÈCES NEUVE
En vente à 38 km de l'océan Atlantique et à deux pas de Nantes, Maisons de l'Avenir Rezé vous propose cette maison de 5 pièces de 87 m² bénéficiant d'un emplacement d'exception dans La Haie-Fouassière (44690). Son intérieur est composé de quatre chambres, d'une cuisine et d'une salle de bains.
Le terrain de cette maison est de 772 m².
Cette maison possède 2 niveaux. Elle est neuve.
Cette maison se trouve dans un secteur convoité. Il y a l'École Primaire Privée Saint Joseph, l'École Élémentaire Publique Charles Gifard et l'École Maternelle… Lire la suite

Maison F5 (87 m²) à vendre à La Haie-Fouassière
EMPLACEMENT PRIVILÉGIÉ - MAISON 5 PIÈCES NEUVE
En vente à 38 km de l'océan Atlantique et à deux pas de Nantes, Maisons de l'Avenir Rezé vous propose cette maison de 5 pièces de 87 m² bénéficiant d'un emplacement d'exception dans La Haie-Fouassière (44690). Son intérieur est composé de quatre chambres, d'une cuisine et d'une salle de bains.
Le terrain de cette maison est de 772 m².
Cette maison possède 2 niveaux. Elle est neuve.
Cette maison se trouve dans un secteur convoité. Il y a l'École Primaire Privée Saint Joseph, l'École Élémentaire Publique Charles Gifard et l'École Maternelle Publique le Petit Prince à moins de 10 minutes à pied. Côté transports, on trouve la gare La Haie-Fouassière à proximité. L'autoroute A83 et les nationales N249 et N844 sont accessibles à moins de 9 km. Il y a une bibliothèque, trois commerces, deux boulangeries, deux boucheries-charcuteries, un bureau de poste et une épicerie dans les environs.
Son prix de vente est de 338 250 €.
Prenez contact avec notre agence (BURILLE Pierre Antoine : 02-40-26-28-28) pour toute question sur le bien, sur les modalités de vente ou sur les démarches à suivre. Faites de vos projets immobiliers une réalité avec Maisons de l'Avenir Rezé.

Localisation

Une maison 100% personnalisable

  • Garage

  • Agencement

  • Revêtements extérieurs

  • Toiture

  • Ouvertures

Nos garanties constructeur

UNE MAISON 100% PERSONNALISÉE

Définir un style architectural (contemporain, moderne, traditionnel) et un plan adapté à votre mode de vie pour mettre en lumière votre projet de construction, tel est notre quotidien !

SERVICE 3 EN 1

Nos conseillers habitat vous accompagnent tout au long de votre projet : Terrain – Maison - Financement, afin de garantir sa réussite et de satisfaire vos exigences !

DES ANNÉES D'EXPÉRIENCES

Depuis 1962, la marque Maisons de l’Avenir inspire confiance et sérénité, une si longue expérience dans la construction de maisons individuelles, c’est un vrai gage de qualité !