 Nous contacter
 Nous contacter- Prix Maison + Terrain- À partir de 233 150 €
 
- Référence- LA2321130_3
 
- Maison personnalisable- Chambres : 4
- Nombre de pièces : 5
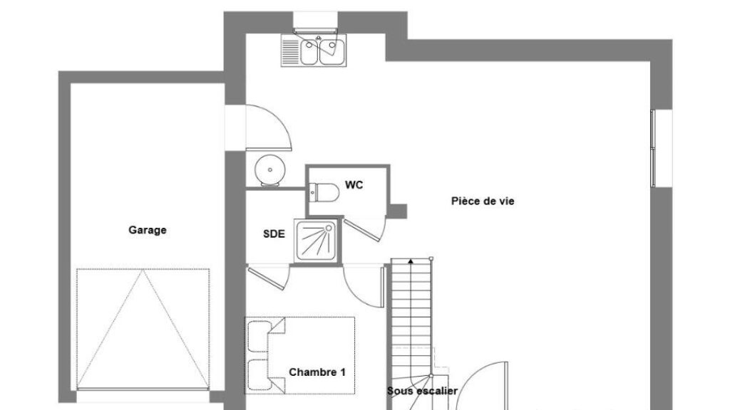
- Surface maison : 89 m²
- Surface terrain : 301 m²
- Garage/Carport
 
- Performances énergétiques- Classe énergétique : A
 
Description
VENTE : maison T5 (89 m²) à La Fresnais
IDÉALEMENT SITUÉE - MAISON 5 PIÈCES NEUVE
En vente : au pied de la gare, idéalement située dans La Fresnais (35111), notre agence Maisons de l'Avenir Saint-Carné est ravie de vous proposer cette maison de 5 pièces de 89 m² et de 301 m² de terrain.
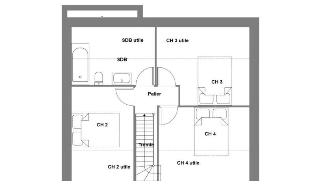
Cette maison compte 2 niveaux. Elle offre quatre chambres, une cuisine et deux salles de bains. Cette maison est neuve.
Cette maison se situe dans un secteur recherché. On trouve l'École Primaire Publique les Frênes et l'École Primaire Privée St Joseph à moins de 10 minutes à pied. Côté transports en commun, il y a la gare La Fresnais à quelques pas du bien. On trouve un accès à la nationale N176 à 6 km et Saint-Malo se trouve à 13 km. Il y a deux boulangeries, un commerce, un bureau de poste et une épicerie dans les environs.
Elle est proposée à l'achat pour 233 150 €.
N'hésitez pas à prendre contact avec notre constructeur (AMIRI Laetitia : 02-99-83-07-20) pour toute question sur la maison ou sur les démarches à suivre. Maisons de l'Avenir Saint-Carné est là pour vous accompagner dans tous vos projets immobiliers.
IDÉALEMENT SITUÉE - MAISON 5 PIÈCES NEUVE
En vente : au pied de la gare, idéalement située dans La Fresnais (35111), notre agence Maisons de l'Avenir Saint-Carné est ravie de vous proposer cette maison de 5 pièces de 89 m² et de 301 m² de terrain.
Cette maison compte 2 niveaux. Elle offre quatre chambres, une cuisine et deux salles de bains. Cette maison est neuve.
Cette maison se situe dans un secteur recherché. On trouve l'École Primaire Publique les Frênes et l'École Primaire Privée St Joseph à moins de 10 minutes à pied. Côté transports en… Lire la suite
VENTE : maison T5 (89 m²) à La Fresnais
IDÉALEMENT SITUÉE - MAISON 5 PIÈCES NEUVE
En vente : au pied de la gare, idéalement située dans La Fresnais (35111), notre agence Maisons de l'Avenir Saint-Carné est ravie de vous proposer cette maison de 5 pièces de 89 m² et de 301 m² de terrain.
Cette maison compte 2 niveaux. Elle offre quatre chambres, une cuisine et deux salles de bains. Cette maison est neuve.
Cette maison se situe dans un secteur recherché. On trouve l'École Primaire Publique les Frênes et l'École Primaire Privée St Joseph à moins de 10 minutes à pied. Côté transports en commun, il y a la gare La Fresnais à quelques pas du bien. On trouve un accès à la nationale N176 à 6 km et Saint-Malo se trouve à 13 km. Il y a deux boulangeries, un commerce, un bureau de poste et une épicerie dans les environs.
Elle est proposée à l'achat pour 233 150 €.
N'hésitez pas à prendre contact avec notre constructeur (AMIRI Laetitia : 02-99-83-07-20) pour toute question sur la maison ou sur les démarches à suivre. Maisons de l'Avenir Saint-Carné est là pour vous accompagner dans tous vos projets immobiliers.
Maisons de l’Avenir, constructeur de maisons individuelles, propose en collaboration avec ses partenaires fonciers, une sélection de terrains constructibles, selon disponibilité, pour la construction de maisons neuves définies par le constructeur, avec un contrat de construction de maison individuelle, dans le cadre de la loi du 19/12/1990. Prix net, hors frais notariés, d'enregistrement et de publicité foncière
Terrain proposé au prix de : 56 500 €
Maison proposée au prix de : 176 650 €
Etiquette énergie : A. Assurances et garanties du constructeur (RC professionnelle, décennale, dommage ouvrage, Garantie de livraison à prix et délai convenu). https://www.maisonsdelavenir.com/mentions-legales/
Localisation
Une maison 100% personnalisable
-  Garage 
-  Agencement 
-  Revêtements extérieurs 
-  Toiture 
-  Ouvertures 
Nos garanties constructeur
UNE MAISON 100% PERSONNALISÉE
Définir un style architectural (contemporain, moderne, traditionnel) et un plan adapté à votre mode de vie pour mettre en lumière votre projet de construction, tel est notre quotidien !
SERVICE 3 EN 1
Nos conseillers habitat vous accompagnent tout au long de votre projet : Terrain – Maison - Financement, afin de garantir sa réussite et de satisfaire vos exigences !
DES ANNÉES D'EXPÉRIENCES
Depuis 1962, la marque Maisons de l’Avenir inspire confiance et sérénité, une si longue expérience dans la construction de maisons individuelles, c’est un vrai gage de qualité !






















 
  
 