Prix Maison + Terrain
- À partir de 233 200 €
Référence
- LA2289742_3
Maison personnalisable
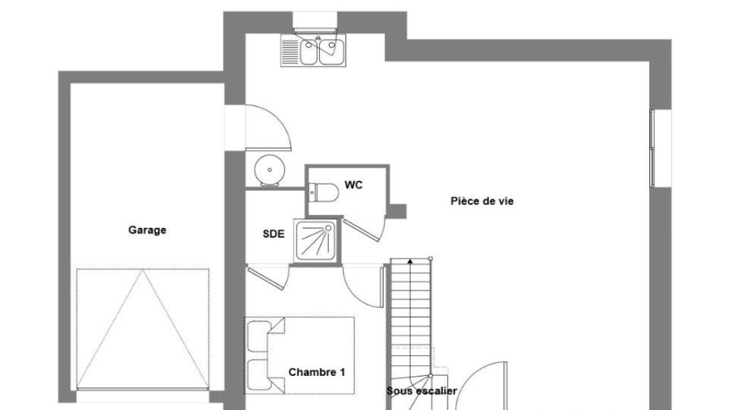
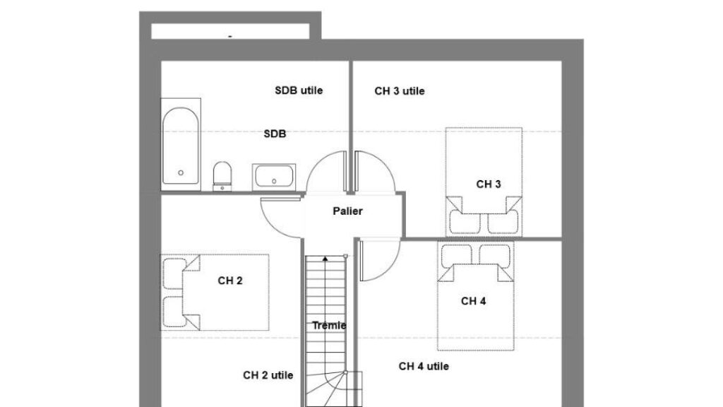
- Chambres : 4
- Nombre de pièces : 5
- Surface maison : 89 m²
- Surface terrain : 301 m²
- Garage/Carport
Performances énergétiques
- Classe énergétique : A
Description
La Fresnais : maison T5 (89 m²) en vente
IDÉALEMENT SITUÉE - MAISON 5 PIÈCES NEUVE
En vente : à proximité de la gare, votre agence Maisons de l'Avenir Saint-Carné est ravie de vous proposer cette maison de 5 pièces de 89 m² et de 301 m² de terrain idéalement située dans La Fresnais (35111).
C'est une maison en bord de mer de 2 niveaux. Son intérieur est composé de quatre chambres, d'une cuisine et de deux salles de bains. Cette maison est neuve.
La maison est située dans un quartier recherché. On trouve l'École Primaire Publique les Frênes et l'École Primaire Privée St Joseph à moins de 10 minutes à pied. Côté transports, il y a la gare La Fresnais à proximité. La nationale N176 est accessible à 6 km et Saint-Malo se trouve à 13 km. Il y a deux boulangeries, un commerce, une épicerie et un bureau de poste à quelques minutes du logement.
Elle est à vendre pour la somme de 233 200 €.
Prenez contact avec Laetitia AMIRI (tél : 02-99-83-07-20) pour tout renseignement sur la maison, sur les modalités de vente ou sur les démarches à suivre. Maisons de l'Avenir Saint-Carné est là pour vous accompagner dans tous vos projets immobiliers.
IDÉALEMENT SITUÉE - MAISON 5 PIÈCES NEUVE
En vente : à proximité de la gare, votre agence Maisons de l'Avenir Saint-Carné est ravie de vous proposer cette maison de 5 pièces de 89 m² et de 301 m² de terrain idéalement située dans La Fresnais (35111).
C'est une maison en bord de mer de 2 niveaux. Son intérieur est composé de quatre chambres, d'une cuisine et de deux salles de bains. Cette maison est neuve.
La maison est située dans un quartier recherché. On trouve l'École Primaire Publique les Frênes et l'École Primaire Privée St Joseph à… Lire la suite
La Fresnais : maison T5 (89 m²) en vente
IDÉALEMENT SITUÉE - MAISON 5 PIÈCES NEUVE
En vente : à proximité de la gare, votre agence Maisons de l'Avenir Saint-Carné est ravie de vous proposer cette maison de 5 pièces de 89 m² et de 301 m² de terrain idéalement située dans La Fresnais (35111).
C'est une maison en bord de mer de 2 niveaux. Son intérieur est composé de quatre chambres, d'une cuisine et de deux salles de bains. Cette maison est neuve.
La maison est située dans un quartier recherché. On trouve l'École Primaire Publique les Frênes et l'École Primaire Privée St Joseph à moins de 10 minutes à pied. Côté transports, il y a la gare La Fresnais à proximité. La nationale N176 est accessible à 6 km et Saint-Malo se trouve à 13 km. Il y a deux boulangeries, un commerce, une épicerie et un bureau de poste à quelques minutes du logement.
Elle est à vendre pour la somme de 233 200 €.
Prenez contact avec Laetitia AMIRI (tél : 02-99-83-07-20) pour tout renseignement sur la maison, sur les modalités de vente ou sur les démarches à suivre. Maisons de l'Avenir Saint-Carné est là pour vous accompagner dans tous vos projets immobiliers.
Maisons de l’Avenir, constructeur de maisons individuelles, propose en collaboration avec ses partenaires fonciers, une sélection de terrains constructibles, selon disponibilité, pour la construction de maisons neuves définies par le constructeur, avec un contrat de construction de maison individuelle, dans le cadre de la loi du 19/12/1990. Prix net, hors frais notariés, d'enregistrement et de publicité foncière
Terrain proposé au prix de : 56 500 €
Maison proposée au prix de : 176 700 €
Etiquette énergie : A. Assurances et garanties du constructeur (RC professionnelle, décennale, dommage ouvrage, Garantie de livraison à prix et délai convenu). https://www.maisonsdelavenir.com/mentions-legales/
Localisation
Une maison 100% personnalisable
-
Garage
-
Agencement
-
Revêtements extérieurs
-
Toiture
-
Ouvertures
Nos garanties constructeur
UNE MAISON 100% PERSONNALISÉE
Définir un style architectural (contemporain, moderne, traditionnel) et un plan adapté à votre mode de vie pour mettre en lumière votre projet de construction, tel est notre quotidien !
SERVICE 3 EN 1
Nos conseillers habitat vous accompagnent tout au long de votre projet : Terrain – Maison - Financement, afin de garantir sa réussite et de satisfaire vos exigences !
DES ANNÉES D'EXPÉRIENCES
Depuis 1962, la marque Maisons de l’Avenir inspire confiance et sérénité, une si longue expérience dans la construction de maisons individuelles, c’est un vrai gage de qualité !





















