Maison à construire de 117m² (3 chambres) sur un terrain de 352m² à La Chapelle-Thouarault (35590)

2366257-5377modele620210420g4sTm.jpeg
Nous contacter
  • Prix Maison + Terrain

    • À partir de 347 500 €
  • Référence

    • DM2366243_3
  • Maison personnalisable

    • Chambres : 3
    • Nombre de pièces : 4
    • Surface maison : 117 m²
    • Surface terrain : 352 m²
    • Garage/Carport
  • Performances énergétiques

    • Classe énergétique : A

Description

VENTE : maison de 4 pièces (117 m²) à La Chapelle-Thouarault
IDÉALEMENT SITUÉE - MAISON 4 PIÈCES NEUVE
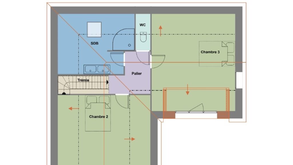
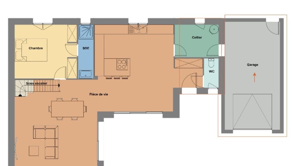
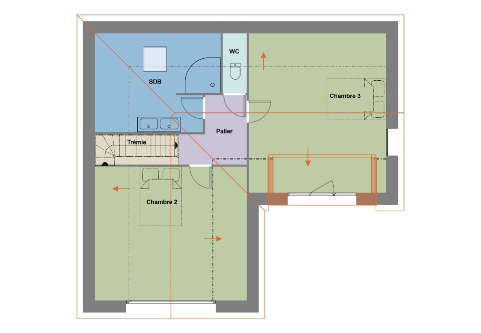
En vente : localisée à 45 km de la Manche et à 13 km de Rennes, notre agence Maisons de l'Avenir Cesson-Sévigné est heureuse de vous présenter cette maison de 4 pièces de 117 m² et de 352 m² de terrain idéalement située dans La Chapelle-Thouarault (35590). Elle se divise en trois chambres, une cuisine et deux salles de bains.
Cette maison compte 2 niveaux. Elle est neuve.
Cette maison se trouve dans un secteur attractif. L'École Primaire Publique Roger Beaulieu est implantée à moins de 10 minutes à pied. Niveau transports, on trouve trois gares (Breteil, L'Hermitage-Mordelles et Montfort-sur-Meu) à moins de 10 minutes en voiture. Les nationales N12 et N24 sont accessibles à moins de 7 km. Il y a un tennis, une bibliothèque et une boulangerie dans les environs.
Elle est à vendre pour la somme de 347 500 €.
Prenez contact avec Dimitri MESAS (tél : 02-99-83-07-20) pour tout renseignement sur la maison, sur les modalités de vente ou sur les démarches à suivre.

Masquer
VENTE : maison de 4 pièces (117 m²) à La Chapelle-Thouarault
IDÉALEMENT SITUÉE - MAISON 4 PIÈCES NEUVE
En vente : localisée à 45 km de la Manche et à 13 km de Rennes, notre agence Maisons de l'Avenir Cesson-Sévigné est heureuse de vous présenter cette maison de 4 pièces de 117 m² et de 352 m² de terrain idéalement située dans La Chapelle-Thouarault (35590). Elle se divise en trois chambres, une cuisine et deux salles de bains.
Cette maison compte 2 niveaux. Elle est neuve.
Cette maison se trouve dans un secteur attractif. L'École Primaire Publique Roger Beaulieu est implantée à moins de 10 minutes… Lire la suite

VENTE : maison de 4 pièces (117 m²) à La Chapelle-Thouarault
IDÉALEMENT SITUÉE - MAISON 4 PIÈCES NEUVE
En vente : localisée à 45 km de la Manche et à 13 km de Rennes, notre agence Maisons de l'Avenir Cesson-Sévigné est heureuse de vous présenter cette maison de 4 pièces de 117 m² et de 352 m² de terrain idéalement située dans La Chapelle-Thouarault (35590). Elle se divise en trois chambres, une cuisine et deux salles de bains.
Cette maison compte 2 niveaux. Elle est neuve.
Cette maison se trouve dans un secteur attractif. L'École Primaire Publique Roger Beaulieu est implantée à moins de 10 minutes à pied. Niveau transports, on trouve trois gares (Breteil, L'Hermitage-Mordelles et Montfort-sur-Meu) à moins de 10 minutes en voiture. Les nationales N12 et N24 sont accessibles à moins de 7 km. Il y a un tennis, une bibliothèque et une boulangerie dans les environs.
Elle est à vendre pour la somme de 347 500 €.
Prenez contact avec Dimitri MESAS (tél : 02-99-83-07-20) pour tout renseignement sur la maison, sur les modalités de vente ou sur les démarches à suivre.

Localisation

Une maison 100% personnalisable

  • Garage

  • Agencement

  • Revêtements extérieurs

  • Toiture

  • Ouvertures

Nos garanties constructeur

UNE MAISON 100% PERSONNALISÉE

Définir un style architectural (contemporain, moderne, traditionnel) et un plan adapté à votre mode de vie pour mettre en lumière votre projet de construction, tel est notre quotidien !

SERVICE 3 EN 1

Nos conseillers habitat vous accompagnent tout au long de votre projet : Terrain – Maison - Financement, afin de garantir sa réussite et de satisfaire vos exigences !

DES ANNÉES D'EXPÉRIENCES

Depuis 1962, la marque Maisons de l’Avenir inspire confiance et sérénité, une si longue expérience dans la construction de maisons individuelles, c’est un vrai gage de qualité !