Prix Maison + Terrain
- À partir de 272 000 €
Référence
- AC2329525_3
Maison personnalisable
- Chambres : 4
- Nombre de pièces : 5
- Surface maison : 90 m²
- Surface terrain : 588 m²
- Garage/Carport
Performances énergétiques
- Classe énergétique : A
Description
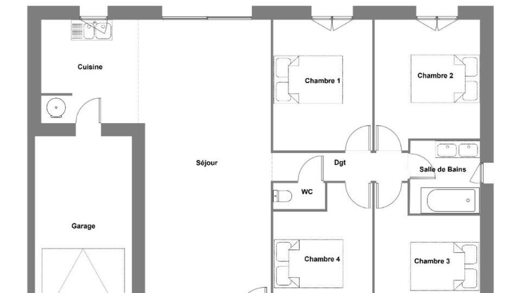
VENTE : maison F5 (90 m²) à Kerlouan
Ce très beau plain-pied aux lignes traditionnelles, de 90m² agencé astucieusement pour un maximum de luminosité, pièce de vie ouverte et volumineuse, 4 chambres, salle de bain, wc et son garage.
Aux normes RE2020, peu énergivore, elle vous ravira par son confort de vie
Elle est à vendre pour la somme de 272 000 €.
Contactez notre agence (Aurélie CAGNARD : 02-98-03-90-90) pour toute information sur cette maison. Donnez vie à vos projets immobiliers avec Maisons de l'Avenir Guipavas.
Ce très beau plain-pied aux lignes traditionnelles, de 90m² agencé astucieusement pour un maximum de luminosité, pièce de vie ouverte et volumineuse, 4 chambres, salle de bain, wc et son garage.
Aux normes RE2020, peu énergivore, elle vous ravira par son confort de vie
Elle est à vendre pour la somme de 272 000 €.
Contactez notre agence (Aurélie CAGNARD : 02-98-03-90-90) pour toute information sur cette maison. Donnez vie à vos projets immobiliers avec Maisons de l'Avenir Guipavas. Lire la suite
VENTE : maison F5 (90 m²) à Kerlouan
Ce très beau plain-pied aux lignes traditionnelles, de 90m² agencé astucieusement pour un maximum de luminosité, pièce de vie ouverte et volumineuse, 4 chambres, salle de bain, wc et son garage.
Aux normes RE2020, peu énergivore, elle vous ravira par son confort de vie
Elle est à vendre pour la somme de 272 000 €.
Contactez notre agence (Aurélie CAGNARD : 02-98-03-90-90) pour toute information sur cette maison. Donnez vie à vos projets immobiliers avec Maisons de l'Avenir Guipavas.
Maisons de l’Avenir, constructeur de maisons individuelles, propose en collaboration avec ses partenaires fonciers, une sélection de terrains constructibles, selon disponibilité, pour la construction de maisons neuves définies par le constructeur, avec un contrat de construction de maison individuelle, dans le cadre de la loi du 19/12/1990. Prix net, hors frais notariés, d'enregistrement et de publicité foncière
Terrain proposé au prix de : 50 000 €
Maison proposée au prix de : 222 000 €
Etiquette énergie : A. Assurances et garanties du constructeur (RC professionnelle, décennale, dommage ouvrage, Garantie de livraison à prix et délai convenu). https://www.maisonsdelavenir.com/mentions-legales/
Localisation
Une maison 100% personnalisable
-
Garage
-
Agencement
-
Revêtements extérieurs
-
Toiture
-
Ouvertures
Nos garanties constructeur
UNE MAISON 100% PERSONNALISÉE
Définir un style architectural (contemporain, moderne, traditionnel) et un plan adapté à votre mode de vie pour mettre en lumière votre projet de construction, tel est notre quotidien !
SERVICE 3 EN 1
Nos conseillers habitat vous accompagnent tout au long de votre projet : Terrain – Maison - Financement, afin de garantir sa réussite et de satisfaire vos exigences !
DES ANNÉES D'EXPÉRIENCES
Depuis 1962, la marque Maisons de l’Avenir inspire confiance et sérénité, une si longue expérience dans la construction de maisons individuelles, c’est un vrai gage de qualité !















