Maison à construire de 140m² (4 chambres) sur un terrain de 670m² à Hôpital-Camfrout (29460)

2340021-3594modele820230630Od9wR.jpeg
Nous contacter
  • Prix Maison + Terrain

    • À partir de 388 672 €
  • Référence

    • AC2339960_2
  • Maison personnalisable

    • Chambres : 4
    • Nombre de pièces : 5
    • Surface maison : 140 m²
    • Surface terrain : 670 m²
    • Garage/Carport
  • Performances énergétiques

    • Classe énergétique : A

Description

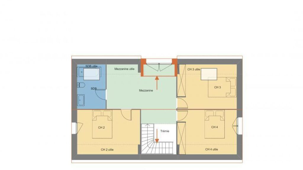
VENTE d'une maison T5 (140 m²) à Hôpital-Camfrout
Cette belle maison traditionnelle aux lignes contemporaines offre 140 m² habitable . Au rez-de-chaussée, elle dispose d'une belle pièce de vie offrant un maximum de lumière, d'une grande suite parentale avec sa salle d'eau, d'un wc et d'un très grand cellier. A l'étage on retrouve 3 chambres, une salle de bains, et un WC. L'orientation de cette maison vous permettra de bénéficier d'un maximum de lumière et de chaleur naturelle pour davantage d'économies et de douceur de vivre.

Son prix de vente est de 388 672 €.
N'hésitez pas à prendre contact avec Aurélie CAGNARD (tél : 02-98-03-90-90) pour toute question sur la maison ou sur les démarches à suivre.

Masquer
VENTE d'une maison T5 (140 m²) à Hôpital-Camfrout
Cette belle maison traditionnelle aux lignes contemporaines offre 140 m² habitable . Au rez-de-chaussée, elle dispose d'une belle pièce de vie offrant un maximum de lumière, d'une grande suite parentale avec sa salle d'eau, d'un wc et d'un très grand cellier. A l'étage on retrouve 3 chambres, une salle de bains, et un WC. L'orientation de cette maison vous permettra de bénéficier d'un maximum de lumière et de chaleur naturelle pour davantage d'économies et de douceur de vivre.

Son prix de vente est de 388 672 €.
N'hésitez pas à prendre contact avec Aurélie CAGNARD… Lire la suite

VENTE d'une maison T5 (140 m²) à Hôpital-Camfrout
Cette belle maison traditionnelle aux lignes contemporaines offre 140 m² habitable . Au rez-de-chaussée, elle dispose d'une belle pièce de vie offrant un maximum de lumière, d'une grande suite parentale avec sa salle d'eau, d'un wc et d'un très grand cellier. A l'étage on retrouve 3 chambres, une salle de bains, et un WC. L'orientation de cette maison vous permettra de bénéficier d'un maximum de lumière et de chaleur naturelle pour davantage d'économies et de douceur de vivre.

Son prix de vente est de 388 672 €.
N'hésitez pas à prendre contact avec Aurélie CAGNARD (tél : 02-98-03-90-90) pour toute question sur la maison ou sur les démarches à suivre.

Localisation

Une maison 100% personnalisable

  • Garage

  • Agencement

  • Revêtements extérieurs

  • Toiture

  • Ouvertures

Nos garanties constructeur

UNE MAISON 100% PERSONNALISÉE

Définir un style architectural (contemporain, moderne, traditionnel) et un plan adapté à votre mode de vie pour mettre en lumière votre projet de construction, tel est notre quotidien !

SERVICE 3 EN 1

Nos conseillers habitat vous accompagnent tout au long de votre projet : Terrain – Maison - Financement, afin de garantir sa réussite et de satisfaire vos exigences !

DES ANNÉES D'EXPÉRIENCES

Depuis 1962, la marque Maisons de l’Avenir inspire confiance et sérénité, une si longue expérience dans la construction de maisons individuelles, c’est un vrai gage de qualité !