Prix Maison + Terrain
- À partir de 432 800 €
Référence
- ET2323683_2
Maison personnalisable
- Chambres : 4
- Nombre de pièces : 5
- Surface maison : 140 m²
- Surface terrain : 570 m²
- Garage/Carport
Performances énergétiques
- Classe énergétique : A
Description
VENTE d'une maison de 5 pièces (140 m²) à Hôpital-Camfrout
IDÉALEMENT SITUÉE - MAISON 5 PIÈCES NEUVE
À vendre : située sur le littoral et à 22 km de Brest, nous vous proposons, idéalement située dans Hôpital-Camfrout (29460), cette maison de 5 pièces de 140 m².
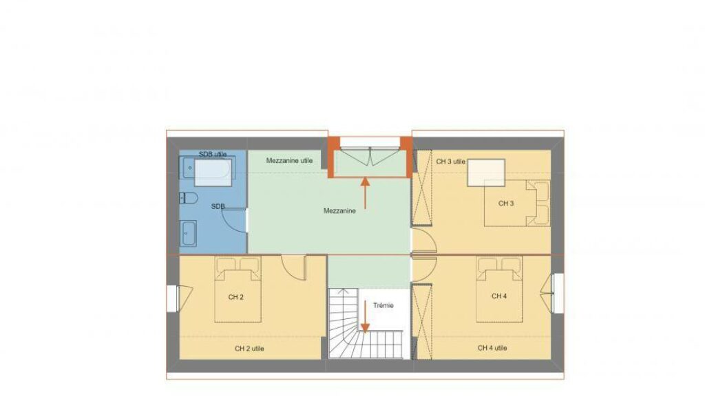
Cette maison comporte 2 niveaux. Son intérieur inclut quatre chambres, une cuisine et deux salles de bains. La maison est neuve.
Le terrain de la propriété s'étend sur 570 m².
Ce bien se situe dans un secteur prisé. L'École Élémentaire Publique Renée le Née est implantée à moins de 10 minutes à pied. Niveau transports en commun, on trouve la gare Dirinon à moins de 10 minutes en voiture. Il y a un accès à la nationale N165 à 4 km. Il y a une boulangerie et une épicerie à proximité.
Il est proposé à l'achat pour 432 800 €.
Contactez Erwan TILLY pour obtenir de plus amples informations sur la maison ou sur les modalités de vente.
IDÉALEMENT SITUÉE - MAISON 5 PIÈCES NEUVE
À vendre : située sur le littoral et à 22 km de Brest, nous vous proposons, idéalement située dans Hôpital-Camfrout (29460), cette maison de 5 pièces de 140 m².
Cette maison comporte 2 niveaux. Son intérieur inclut quatre chambres, une cuisine et deux salles de bains. La maison est neuve.
Le terrain de la propriété s'étend sur 570 m².
Ce bien se situe dans un secteur prisé. L'École Élémentaire Publique Renée le Née est implantée à moins de 10 minutes à pied. Niveau transports en commun, on trouve la gare… Lire la suite
VENTE d'une maison de 5 pièces (140 m²) à Hôpital-Camfrout
IDÉALEMENT SITUÉE - MAISON 5 PIÈCES NEUVE
À vendre : située sur le littoral et à 22 km de Brest, nous vous proposons, idéalement située dans Hôpital-Camfrout (29460), cette maison de 5 pièces de 140 m².
Cette maison comporte 2 niveaux. Son intérieur inclut quatre chambres, une cuisine et deux salles de bains. La maison est neuve.
Le terrain de la propriété s'étend sur 570 m².
Ce bien se situe dans un secteur prisé. L'École Élémentaire Publique Renée le Née est implantée à moins de 10 minutes à pied. Niveau transports en commun, on trouve la gare Dirinon à moins de 10 minutes en voiture. Il y a un accès à la nationale N165 à 4 km. Il y a une boulangerie et une épicerie à proximité.
Il est proposé à l'achat pour 432 800 €.
Contactez Erwan TILLY pour obtenir de plus amples informations sur la maison ou sur les modalités de vente.
Maisons de l’Avenir, constructeur de maisons individuelles, propose en collaboration avec ses partenaires fonciers, une sélection de terrains constructibles, selon disponibilité, pour la construction de maisons neuves définies par le constructeur, avec un contrat de construction de maison individuelle, dans le cadre de la loi du 19/12/1990. Prix net, hors frais notariés, d'enregistrement et de publicité foncière
Terrain proposé au prix de : 70 000 €
Maison proposée au prix de : 362 800 €
Etiquette énergie : A. Assurances et garanties du constructeur (RC professionnelle, décennale, dommage ouvrage, Garantie de livraison à prix et délai convenu). https://www.maisonsdelavenir.com/mentions-legales/
Localisation
Une maison 100% personnalisable
-
Garage
-
Agencement
-
Revêtements extérieurs
-
Toiture
-
Ouvertures
Nos garanties constructeur
UNE MAISON 100% PERSONNALISÉE
Définir un style architectural (contemporain, moderne, traditionnel) et un plan adapté à votre mode de vie pour mettre en lumière votre projet de construction, tel est notre quotidien !
SERVICE 3 EN 1
Nos conseillers habitat vous accompagnent tout au long de votre projet : Terrain – Maison - Financement, afin de garantir sa réussite et de satisfaire vos exigences !
DES ANNÉES D'EXPÉRIENCES
Depuis 1962, la marque Maisons de l’Avenir inspire confiance et sérénité, une si longue expérience dans la construction de maisons individuelles, c’est un vrai gage de qualité !















