Prix Maison + Terrain
- À partir de 375 000 €
Référence
- ET2365026_2
Maison personnalisable
- Chambres : 4
- Nombre de pièces : 5
- Surface maison : 121 m²
- Surface terrain : 588 m²
- Garage/Carport
Performances énergétiques
- Classe énergétique : A
Description
📍 Terrain à vendre - Guipvas
Découvrez ce beau terrain, idéalement situé, issu d'une division, sur la commune de Guipavas.
- une belle opportunité à saisir rapidement !
✅ Proximité immédiate des voies express, alliant accessibilité et coté urbain.
✅ Environnement agréable et verdoyant
💰 Prix : 86 900 €
Ce terrain n'attend plus que votre projet de construction 🏡.
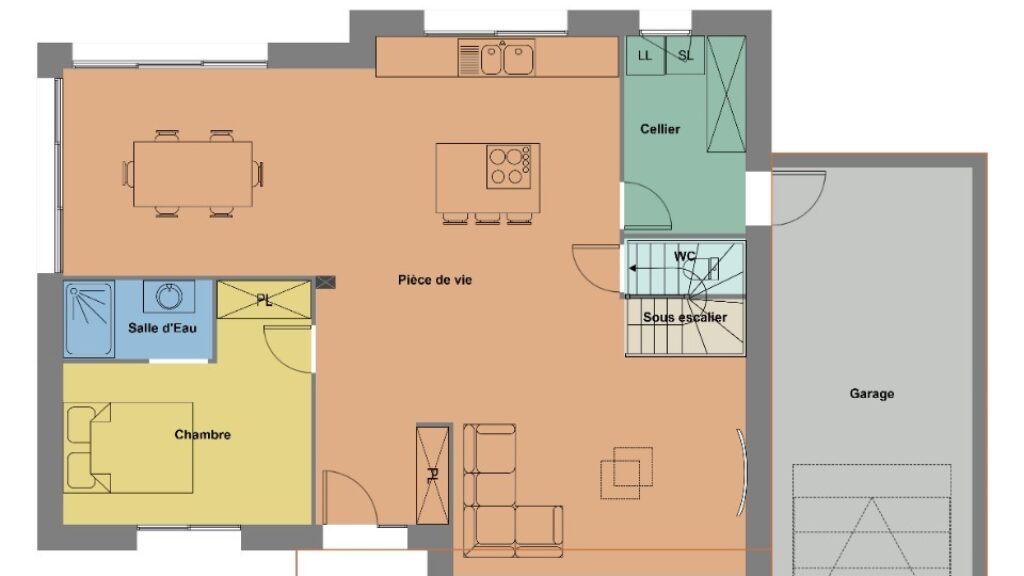
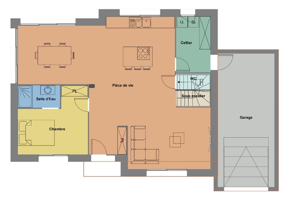
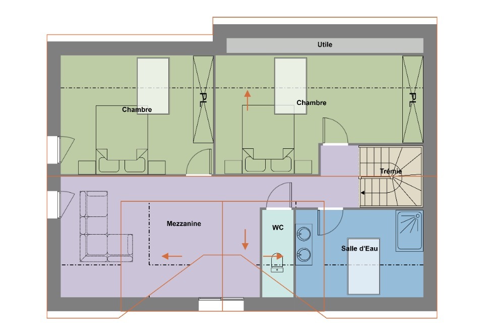
💡 Nous vous proposons sur ce terrain un projet de maison de 121 m², au style contemporain et traditionnel comprenant :
4 chambres dont une suite parentale 🛏️
2 salles de bains 🚿
Un vaste espace de vie de plus de 45 m² lumineux ☀️
Un grand garage 🚗
Une conception intégrée dans notre concept Maisons Bâti Activ, favorisant l'ensoleillement naturel et réduisant vos coûts énergétiques 🌿⚡
💰 Prix de l'opération Terrain + Maison : 375 000 €
Ce terrain et ce projet de maison n'attendent plus que vous pour devenir réalité 🏡.
Si ce bien vous intéresse, contactez dès aujourd'hui Erwan TILLY - Conseiller Maisons de l'Avenir, pour organiser une visite et commencer à concevoir vos futurs plans de maison.
Découvrez ce beau terrain, idéalement situé, issu d'une division, sur la commune de Guipavas.
- une belle opportunité à saisir rapidement !
✅ Proximité immédiate des voies express, alliant accessibilité et coté urbain.
✅ Environnement agréable et verdoyant
💰 Prix : 86 900 €
Ce terrain n'attend plus que votre projet de construction 🏡.
💡 Nous vous proposons sur ce terrain un projet de maison de 121 m², au style contemporain et traditionnel comprenant :
4 chambres dont une suite parentale 🛏️
2 salles de bains 🚿
Un vaste espace de vie de plus de 45 m² lumineux ☀️
Un grand garage 🚗
Une conception intégrée… Lire la suite
📍 Terrain à vendre - Guipvas
Découvrez ce beau terrain, idéalement situé, issu d'une division, sur la commune de Guipavas.
- une belle opportunité à saisir rapidement !
✅ Proximité immédiate des voies express, alliant accessibilité et coté urbain.
✅ Environnement agréable et verdoyant
💰 Prix : 86 900 €
Ce terrain n'attend plus que votre projet de construction 🏡.
💡 Nous vous proposons sur ce terrain un projet de maison de 121 m², au style contemporain et traditionnel comprenant :
4 chambres dont une suite parentale 🛏️
2 salles de bains 🚿
Un vaste espace de vie de plus de 45 m² lumineux ☀️
Un grand garage 🚗
Une conception intégrée dans notre concept Maisons Bâti Activ, favorisant l'ensoleillement naturel et réduisant vos coûts énergétiques 🌿⚡
💰 Prix de l'opération Terrain + Maison : 375 000 €
Ce terrain et ce projet de maison n'attendent plus que vous pour devenir réalité 🏡.
Si ce bien vous intéresse, contactez dès aujourd'hui Erwan TILLY - Conseiller Maisons de l'Avenir, pour organiser une visite et commencer à concevoir vos futurs plans de maison.
Maisons de l’Avenir, constructeur de maisons individuelles, propose en collaboration avec ses partenaires fonciers, une sélection de terrains constructibles, selon disponibilité, pour la construction de maisons neuves définies par le constructeur, avec un contrat de construction de maison individuelle, dans le cadre de la loi du 19/12/1990. Prix net, hors frais notariés, d'enregistrement et de publicité foncière
Terrain proposé au prix de : 86 900 €
Maison proposée au prix de : 288 100 €
Etiquette énergie : A. Assurances et garanties du constructeur (RC professionnelle, décennale, dommage ouvrage, Garantie de livraison à prix et délai convenu). https://www.maisonsdelavenir.com/mentions-legales/
Localisation
Une maison 100% personnalisable
-
Garage
-
Agencement
-
Revêtements extérieurs
-
Toiture
-
Ouvertures
Nos garanties constructeur
UNE MAISON 100% PERSONNALISÉE
Définir un style architectural (contemporain, moderne, traditionnel) et un plan adapté à votre mode de vie pour mettre en lumière votre projet de construction, tel est notre quotidien !
SERVICE 3 EN 1
Nos conseillers habitat vous accompagnent tout au long de votre projet : Terrain – Maison - Financement, afin de garantir sa réussite et de satisfaire vos exigences !
DES ANNÉES D'EXPÉRIENCES
Depuis 1962, la marque Maisons de l’Avenir inspire confiance et sérénité, une si longue expérience dans la construction de maisons individuelles, c’est un vrai gage de qualité !



















