Maison à construire de 130m² (4 chambres) sur un terrain de 850m² à Guilers (29820)

2404287-5377modele620210420g4sTm.jpeg
Nous contacter
  • Prix Maison + Terrain

    • À partir de 460 000 €
  • Référence

    • ET2404281_2
  • Maison personnalisable

    • Chambres : 4
    • Nombre de pièces : 5
    • Surface maison : 130 m²
    • Surface terrain : 850 m²
    • Garage/Carport
  • Performances énergétiques

    • Classe énergétique : A

Description

À vendre - Terrain rare de 850 m² à Guilers (29) avec projet de maison sur mesure

📍 Guilers - Proche bourg

Opportunité rare sur la commune de Guilers !
Découvrez ce terrain de 850 m², idéalement situé à proximité immédiate du bourg, avec l'ensemble des commodités accessibles rapidement : commerces, écoles, services et transports.

Ce terrain est parfaitement adapté à un projet de construction, dans un environnement recherché, alliant confort de vie et praticité au quotidien.

💰 Prix du terrain : 120 000 €

Proposition de projet de maison sur mesure

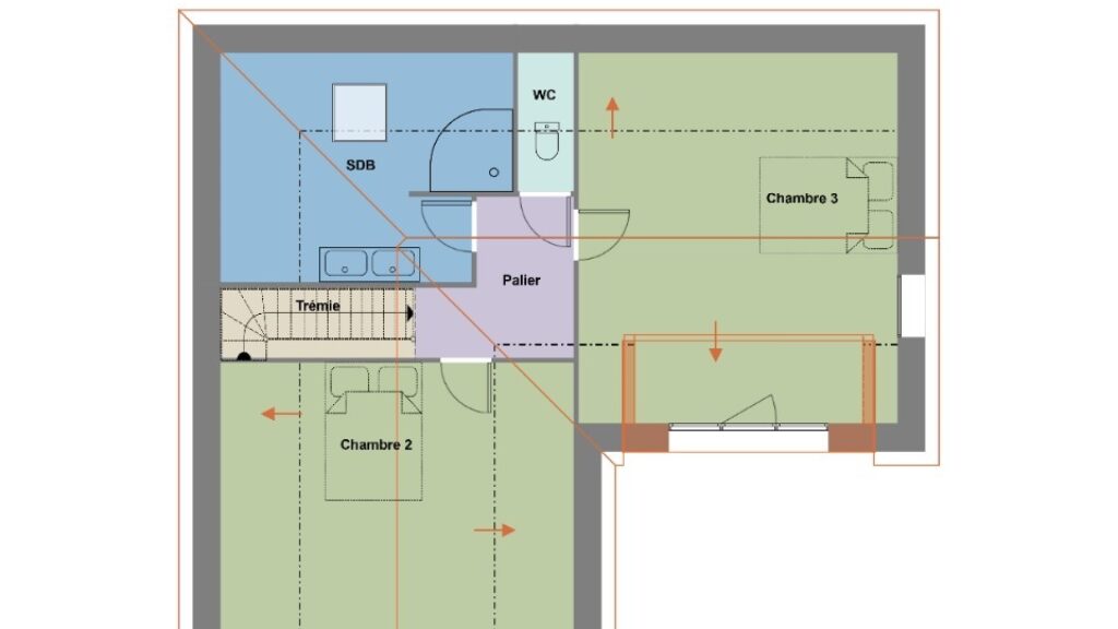
Nous vous proposons un projet de maison aux lignes architecturales contemporaines, entièrement conçu sur mesure, d'une surface d'environ 150 m², comprenant :

4 chambres,

un vaste espace de vie de plus de 50 m², lumineux et ouvert,

2 salles de bains,

de nombreux espaces de rangement,

un grand garage.

Cette proposition a été pensée dans le cadre de nos maisons Bâti Activ, afin de favoriser l'apport naturel d'ensoleillement, d'optimiser le confort de vie et de réduire l'impact budgétaire et énergétique à long terme.

PRIX TERRAIN + MAISON : 460000€

👉 Vous souhaitez en savoir plus ou concevoir un projet entièrement personnalisé ?
Contactez dès maintenant Erwan TILLY - Maisons de l'Avenir, pour l'étude de votre projet et la conception de vos plans sur mesure.

📞 Faites vite, les opportunités de ce type sont très rares sur Guilers !

Masquer
À vendre - Terrain rare de 850 m² à Guilers (29) avec projet de maison sur mesure

📍 Guilers - Proche bourg

Opportunité rare sur la commune de Guilers !
Découvrez ce terrain de 850 m², idéalement situé à proximité immédiate du bourg, avec l'ensemble des commodités accessibles rapidement : commerces, écoles, services et transports.

Ce terrain est parfaitement adapté à un projet de construction, dans un environnement recherché, alliant confort de vie et praticité au quotidien.

💰 Prix du terrain : 120 000 €

Proposition de projet de maison sur mesure

Nous vous proposons un projet de maison aux lignes architecturales contemporaines, entièrement conçu sur mesure,… Lire la suite

À vendre - Terrain rare de 850 m² à Guilers (29) avec projet de maison sur mesure

📍 Guilers - Proche bourg

Opportunité rare sur la commune de Guilers !
Découvrez ce terrain de 850 m², idéalement situé à proximité immédiate du bourg, avec l'ensemble des commodités accessibles rapidement : commerces, écoles, services et transports.

Ce terrain est parfaitement adapté à un projet de construction, dans un environnement recherché, alliant confort de vie et praticité au quotidien.

💰 Prix du terrain : 120 000 €

Proposition de projet de maison sur mesure

Nous vous proposons un projet de maison aux lignes architecturales contemporaines, entièrement conçu sur mesure, d'une surface d'environ 150 m², comprenant :

4 chambres,

un vaste espace de vie de plus de 50 m², lumineux et ouvert,

2 salles de bains,

de nombreux espaces de rangement,

un grand garage.

Cette proposition a été pensée dans le cadre de nos maisons Bâti Activ, afin de favoriser l'apport naturel d'ensoleillement, d'optimiser le confort de vie et de réduire l'impact budgétaire et énergétique à long terme.

PRIX TERRAIN + MAISON : 460000€

👉 Vous souhaitez en savoir plus ou concevoir un projet entièrement personnalisé ?
Contactez dès maintenant Erwan TILLY - Maisons de l'Avenir, pour l'étude de votre projet et la conception de vos plans sur mesure.

📞 Faites vite, les opportunités de ce type sont très rares sur Guilers !

Localisation

Une maison 100% personnalisable

  • Garage

  • Agencement

  • Revêtements extérieurs

  • Toiture

  • Ouvertures

Nos garanties constructeur

UNE MAISON 100% PERSONNALISÉE

Définir un style architectural (contemporain, moderne, traditionnel) et un plan adapté à votre mode de vie pour mettre en lumière votre projet de construction, tel est notre quotidien !

SERVICE 3 EN 1

Nos conseillers habitat vous accompagnent tout au long de votre projet : Terrain – Maison - Financement, afin de garantir sa réussite et de satisfaire vos exigences !

DES ANNÉES D'EXPÉRIENCES

Depuis 1962, la marque Maisons de l’Avenir inspire confiance et sérénité, une si longue expérience dans la construction de maisons individuelles, c’est un vrai gage de qualité !