Prix Maison + Terrain
- À partir de 429 000 €
Référence
- CC2364497_8
Maison personnalisable
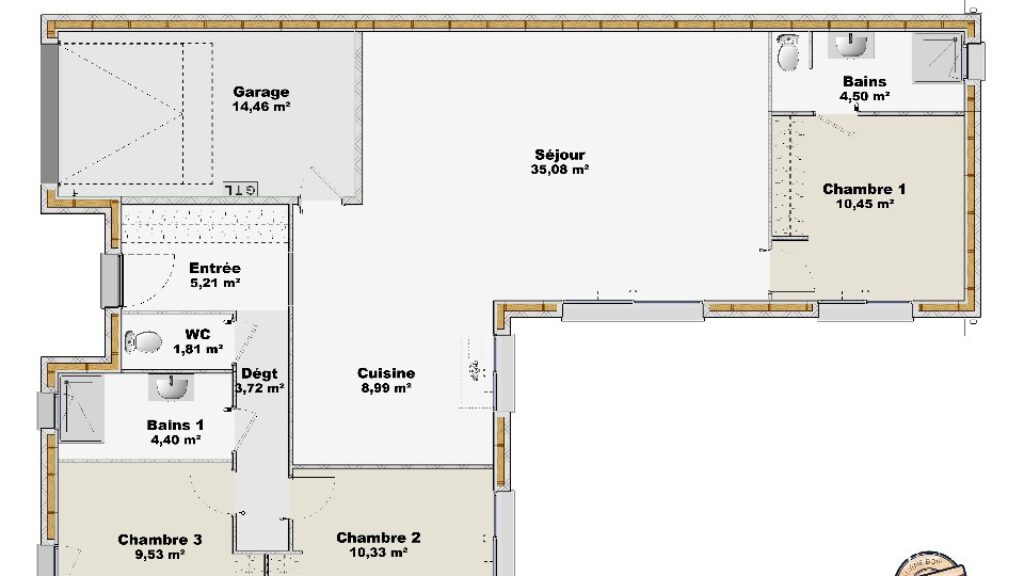
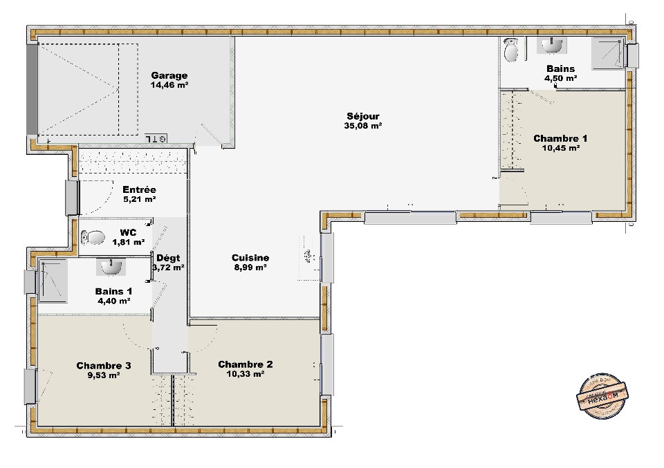
- Chambres : 3
- Nombre de pièces : 4
- Surface maison : 94 m²
- Surface terrain : 300 m²
- Garage/Carport
Performances énergétiques
- Classe énergétique : A
Description
Maison de 4 pièces (94 m²) à vendre à Guidel
EMPLACEMENT PRIVILÉGIÉ - MAISON 4 PIÈCES NEUVE
En vente : à 5 km de l'océan Atlantique et à deux pas de Lorient, nous sommes ravis de vous présenter, bénéficiant d'un emplacement d'exception dans Guidel (56520), cette maison de 4 pièces de plain-pied de 94 m² et de 300 m² de terrain. Conçue de plain-pied, elle compte trois chambres, une cuisine et deux salles de bains.
La maison est neuve.
La maison est située dans un secteur convoité. Le Collège Privé Saint Jean Lasalle, l'École Primaire Privée Notre-Dame des Victoires et l'École Maternelle Publique Prat-Foën se trouvent à moins de 10 minutes à pied. Côté transports en commun, il y a deux gares (Gestel et Quimperlé) à moins de 10 minutes en voiture. La nationale N165 est accessible à 3 km. On trouve un tennis, une bibliothèque, un bassin de natation, des commerces, des boulangeries, deux supermarchés, une boucherie-charcuterie et un bureau de poste à proximité du logement. Enfin, le marché Place Le Montagnière anime le quartier chaque mercredi matin.
Elle est proposée à l'achat pour 429 000 €.
Contactez Christophe COLLOCH (tél : 02-97-21-63-96) pour toute information sur la maison, sur les démarches à suivre ou sur les modalités de vente. Maisons de l'Avenir Lorient est là pour vous accompagner dans tous vos projets immobiliers.
EMPLACEMENT PRIVILÉGIÉ - MAISON 4 PIÈCES NEUVE
En vente : à 5 km de l'océan Atlantique et à deux pas de Lorient, nous sommes ravis de vous présenter, bénéficiant d'un emplacement d'exception dans Guidel (56520), cette maison de 4 pièces de plain-pied de 94 m² et de 300 m² de terrain. Conçue de plain-pied, elle compte trois chambres, une cuisine et deux salles de bains.
La maison est neuve.
La maison est située dans un secteur convoité. Le Collège Privé Saint Jean Lasalle, l'École Primaire Privée Notre-Dame des Victoires et l'École Maternelle Publique Prat-Foën se trouvent… Lire la suite
Maison de 4 pièces (94 m²) à vendre à Guidel
EMPLACEMENT PRIVILÉGIÉ - MAISON 4 PIÈCES NEUVE
En vente : à 5 km de l'océan Atlantique et à deux pas de Lorient, nous sommes ravis de vous présenter, bénéficiant d'un emplacement d'exception dans Guidel (56520), cette maison de 4 pièces de plain-pied de 94 m² et de 300 m² de terrain. Conçue de plain-pied, elle compte trois chambres, une cuisine et deux salles de bains.
La maison est neuve.
La maison est située dans un secteur convoité. Le Collège Privé Saint Jean Lasalle, l'École Primaire Privée Notre-Dame des Victoires et l'École Maternelle Publique Prat-Foën se trouvent à moins de 10 minutes à pied. Côté transports en commun, il y a deux gares (Gestel et Quimperlé) à moins de 10 minutes en voiture. La nationale N165 est accessible à 3 km. On trouve un tennis, une bibliothèque, un bassin de natation, des commerces, des boulangeries, deux supermarchés, une boucherie-charcuterie et un bureau de poste à proximité du logement. Enfin, le marché Place Le Montagnière anime le quartier chaque mercredi matin.
Elle est proposée à l'achat pour 429 000 €.
Contactez Christophe COLLOCH (tél : 02-97-21-63-96) pour toute information sur la maison, sur les démarches à suivre ou sur les modalités de vente. Maisons de l'Avenir Lorient est là pour vous accompagner dans tous vos projets immobiliers.
Maisons de l’Avenir, constructeur de maisons individuelles, propose en collaboration avec ses partenaires fonciers, une sélection de terrains constructibles, selon disponibilité, pour la construction de maisons neuves définies par le constructeur, avec un contrat de construction de maison individuelle, dans le cadre de la loi du 19/12/1990. Prix net, hors frais notariés, d'enregistrement et de publicité foncière
Terrain proposé au prix de : 161 000 €
Maison proposée au prix de : 268 000 €
Etiquette énergie : A. Assurances et garanties du constructeur (RC professionnelle, décennale, dommage ouvrage, Garantie de livraison à prix et délai convenu). https://www.maisonsdelavenir.com/mentions-legales/
Localisation
Une maison 100% personnalisable
-
Garage
-
Agencement
-
Revêtements extérieurs
-
Toiture
-
Ouvertures
Nos garanties constructeur
UNE MAISON 100% PERSONNALISÉE
Définir un style architectural (contemporain, moderne, traditionnel) et un plan adapté à votre mode de vie pour mettre en lumière votre projet de construction, tel est notre quotidien !
SERVICE 3 EN 1
Nos conseillers habitat vous accompagnent tout au long de votre projet : Terrain – Maison - Financement, afin de garantir sa réussite et de satisfaire vos exigences !
DES ANNÉES D'EXPÉRIENCES
Depuis 1962, la marque Maisons de l’Avenir inspire confiance et sérénité, une si longue expérience dans la construction de maisons individuelles, c’est un vrai gage de qualité !







