Prix Maison + Terrain
- À partir de 370 000 €
Référence
- CC2322748_9
Maison personnalisable
- Chambres : 2
- Nombre de pièces : 3
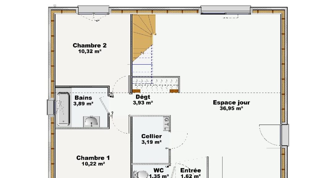
- Surface maison : 71 m²
- Surface terrain : 301 m²
- Garage/Carport
Performances énergétiques
- Classe énergétique : A
Description
VENTE d'une maison T3 (71 m²) à Guidel
IDÉALEMENT SITUÉE - MAISON 3 PIÈCES NEUVE
À vendre : située à 5 km de l'océan Atlantique et à quelques kilomètres de Lorient, nous vous présentons, idéalement située dans Guidel (56520), cette maison de 3 pièces de 71 m². Son intérieur compte deux chambres, une cuisine et une salle de bains.
Le terrain de cette maison est de 301 m².
C'est une maison de 2 niveaux. Elle est neuve.
La maison est située dans un secteur recherché. Le Collège Privé Saint Jean Lasalle, l'École Primaire Privée Notre-Dame des Victoires et l'École Maternelle Publique Prat-Foën se trouvent à moins de 10 minutes à pied. Côté transports en commun, il y a les gares Gestel et Quimperlé à moins de 10 minutes en voiture. On trouve un accès à la nationale N165 à 3 km. On trouve un tennis, une bibliothèque, un bassin de natation, des commerces, des boulangeries, deux supermarchés, une poissonnerie et une boucherie-charcuterie à quelques minutes de la maison. Enfin, le marché Place Le Montagnière a lieu tous les mercredis matin.
Son prix de vente est de 370 000 €.
Contactez notre agence (COLLOCH Christophe : 02-97-21-63-96) pour plus de renseignements sur la maison.
IDÉALEMENT SITUÉE - MAISON 3 PIÈCES NEUVE
À vendre : située à 5 km de l'océan Atlantique et à quelques kilomètres de Lorient, nous vous présentons, idéalement située dans Guidel (56520), cette maison de 3 pièces de 71 m². Son intérieur compte deux chambres, une cuisine et une salle de bains.
Le terrain de cette maison est de 301 m².
C'est une maison de 2 niveaux. Elle est neuve.
La maison est située dans un secteur recherché. Le Collège Privé Saint Jean Lasalle, l'École Primaire Privée Notre-Dame des Victoires et l'École Maternelle Publique Prat-Foën se trouvent à moins de… Lire la suite
VENTE d'une maison T3 (71 m²) à Guidel
IDÉALEMENT SITUÉE - MAISON 3 PIÈCES NEUVE
À vendre : située à 5 km de l'océan Atlantique et à quelques kilomètres de Lorient, nous vous présentons, idéalement située dans Guidel (56520), cette maison de 3 pièces de 71 m². Son intérieur compte deux chambres, une cuisine et une salle de bains.
Le terrain de cette maison est de 301 m².
C'est une maison de 2 niveaux. Elle est neuve.
La maison est située dans un secteur recherché. Le Collège Privé Saint Jean Lasalle, l'École Primaire Privée Notre-Dame des Victoires et l'École Maternelle Publique Prat-Foën se trouvent à moins de 10 minutes à pied. Côté transports en commun, il y a les gares Gestel et Quimperlé à moins de 10 minutes en voiture. On trouve un accès à la nationale N165 à 3 km. On trouve un tennis, une bibliothèque, un bassin de natation, des commerces, des boulangeries, deux supermarchés, une poissonnerie et une boucherie-charcuterie à quelques minutes de la maison. Enfin, le marché Place Le Montagnière a lieu tous les mercredis matin.
Son prix de vente est de 370 000 €.
Contactez notre agence (COLLOCH Christophe : 02-97-21-63-96) pour plus de renseignements sur la maison.
Maisons de l’Avenir, constructeur de maisons individuelles, propose en collaboration avec ses partenaires fonciers, une sélection de terrains constructibles, selon disponibilité, pour la construction de maisons neuves définies par le constructeur, avec un contrat de construction de maison individuelle, dans le cadre de la loi du 19/12/1990. Prix net, hors frais notariés, d'enregistrement et de publicité foncière
Terrain proposé au prix de : 161 000 €
Maison proposée au prix de : 209 000 €
Etiquette énergie : A. Assurances et garanties du constructeur (RC professionnelle, décennale, dommage ouvrage, Garantie de livraison à prix et délai convenu). https://www.maisonsdelavenir.com/mentions-legales/
Localisation
Une maison 100% personnalisable
-
Garage
-
Agencement
-
Revêtements extérieurs
-
Toiture
-
Ouvertures
Nos garanties constructeur
UNE MAISON 100% PERSONNALISÉE
Définir un style architectural (contemporain, moderne, traditionnel) et un plan adapté à votre mode de vie pour mettre en lumière votre projet de construction, tel est notre quotidien !
SERVICE 3 EN 1
Nos conseillers habitat vous accompagnent tout au long de votre projet : Terrain – Maison - Financement, afin de garantir sa réussite et de satisfaire vos exigences !
DES ANNÉES D'EXPÉRIENCES
Depuis 1962, la marque Maisons de l’Avenir inspire confiance et sérénité, une si longue expérience dans la construction de maisons individuelles, c’est un vrai gage de qualité !









