Maison à construire de 80m² (3 chambres) sur un terrain de 261m² à Domloup (35410)

2356320-4586modele620250326dbyx4.jpeg
Nous contacter
  • Prix Maison + Terrain

    • À partir de 272 700 €
  • Référence

    • CR2356313_5
  • Maison personnalisable

    • Chambres : 3
    • Nombre de pièces : 4
    • Surface maison : 80 m²
    • Surface terrain : 261 m²
    • Garage/Carport
  • Performances énergétiques

    • Classe énergétique : A

Description

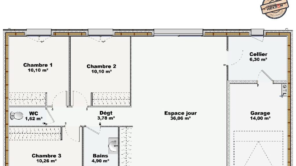
Maison de 4 pièces (80 m²) en vente à Domloup
MAISON 4 PIÈCES OSSATURE BOIS - PROCHE DE RENNES
À deux pas de Rennes, Maisons de l'Avenir Cesson-Sévigné vous présente cette maison de 4 pièces de plain-pied de 80 m² en vente à Domloup (35410).
Son intérieur se divise en trois chambres, une cuisine et une salle de bains.

Elle est proposée à l'achat pour 272 700 €.
Prenez contact avec Cyril RENVAZE (tél : 06-64-27-67-91) pour toute question sur cette maison.

Masquer
Maison de 4 pièces (80 m²) en vente à Domloup
MAISON 4 PIÈCES OSSATURE BOIS - PROCHE DE RENNES
À deux pas de Rennes, Maisons de l'Avenir Cesson-Sévigné vous présente cette maison de 4 pièces de plain-pied de 80 m² en vente à Domloup (35410).
Son intérieur se divise en trois chambres, une cuisine et une salle de bains.

Elle est proposée à l'achat pour 272 700 €.
Prenez contact avec Cyril RENVAZE (tél : 06-64-27-67-91) pour toute question sur cette maison. Lire la suite

Maison de 4 pièces (80 m²) en vente à Domloup
MAISON 4 PIÈCES OSSATURE BOIS - PROCHE DE RENNES
À deux pas de Rennes, Maisons de l'Avenir Cesson-Sévigné vous présente cette maison de 4 pièces de plain-pied de 80 m² en vente à Domloup (35410).
Son intérieur se divise en trois chambres, une cuisine et une salle de bains.

Elle est proposée à l'achat pour 272 700 €.
Prenez contact avec Cyril RENVAZE (tél : 06-64-27-67-91) pour toute question sur cette maison.

Localisation

Une maison 100% personnalisable

  • Garage

  • Agencement

  • Revêtements extérieurs

  • Toiture

  • Ouvertures

Nos garanties constructeur

UNE MAISON 100% PERSONNALISÉE

Définir un style architectural (contemporain, moderne, traditionnel) et un plan adapté à votre mode de vie pour mettre en lumière votre projet de construction, tel est notre quotidien !

SERVICE 3 EN 1

Nos conseillers habitat vous accompagnent tout au long de votre projet : Terrain – Maison - Financement, afin de garantir sa réussite et de satisfaire vos exigences !

DES ANNÉES D'EXPÉRIENCES

Depuis 1962, la marque Maisons de l’Avenir inspire confiance et sérénité, une si longue expérience dans la construction de maisons individuelles, c’est un vrai gage de qualité !