Prix Maison + Terrain
- À partir de 375 452 €
Référence
- CR2264030_4
Maison personnalisable
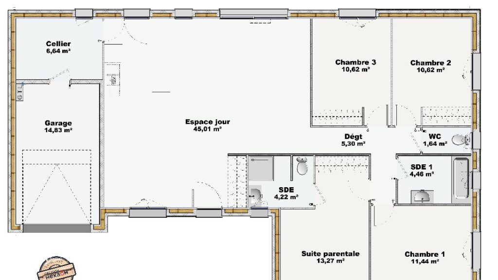
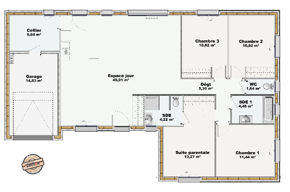
- Chambres : 4
- Nombre de pièces : 5
- Surface maison : 121 m²
- Surface terrain : 451 m²
- Garage/Carport
Performances énergétiques
- Classe énergétique : A
Description
VENTE : Maison T5 (121 m²) à Domagné - Ossature bois & bardage naturel
À seulement quelques minutes de Rennes, découvrez cette maison neuve de plain-pied de 121 m², construite en ossature bois écologique, sur un terrain de 451 m² à Domagné (35113).
Elle propose quatre chambres, une cuisine et deux salles de bains. Son bardage bois confère chaleur et modernité, parfaitement intégré à son quartier résidentiel.
L'ossature bois garantit performance énergétique, durabilité et confort thermique, pour un habitat respectueux de l'environnement et agréable à vivre.
À proximité : écoles primaires (St Vincent de Paul et La Glycine), gares (Châteaubourg, Les Lacs, Servon-sur-Vilaine), commerces, supermarché, boulangerie, bibliothèque et tennis. L'accès à la nationale N157 est à 4 km.
👉 Prix de vente : 375 452 €
📞 Contact : Cyril RENVAZE - 06 64 27 67 91
🏡 Réalisation : Maisons de l'Avenir - Cesson-Sévigné
À seulement quelques minutes de Rennes, découvrez cette maison neuve de plain-pied de 121 m², construite en ossature bois écologique, sur un terrain de 451 m² à Domagné (35113).
Elle propose quatre chambres, une cuisine et deux salles de bains. Son bardage bois confère chaleur et modernité, parfaitement intégré à son quartier résidentiel.
L'ossature bois garantit performance énergétique, durabilité et confort thermique, pour un habitat respectueux de l'environnement et agréable à vivre.
À proximité : écoles primaires (St Vincent de Paul et La Glycine), gares (Châteaubourg, Les Lacs, Servon-sur-Vilaine), commerces,… Lire la suite
VENTE : Maison T5 (121 m²) à Domagné - Ossature bois & bardage naturel
À seulement quelques minutes de Rennes, découvrez cette maison neuve de plain-pied de 121 m², construite en ossature bois écologique, sur un terrain de 451 m² à Domagné (35113).
Elle propose quatre chambres, une cuisine et deux salles de bains. Son bardage bois confère chaleur et modernité, parfaitement intégré à son quartier résidentiel.
L'ossature bois garantit performance énergétique, durabilité et confort thermique, pour un habitat respectueux de l'environnement et agréable à vivre.
À proximité : écoles primaires (St Vincent de Paul et La Glycine), gares (Châteaubourg, Les Lacs, Servon-sur-Vilaine), commerces, supermarché, boulangerie, bibliothèque et tennis. L'accès à la nationale N157 est à 4 km.
👉 Prix de vente : 375 452 €
📞 Contact : Cyril RENVAZE - 06 64 27 67 91
🏡 Réalisation : Maisons de l'Avenir - Cesson-Sévigné
Maisons de l’Avenir, constructeur de maisons individuelles, propose en collaboration avec ses partenaires fonciers, une sélection de terrains constructibles, selon disponibilité, pour la construction de maisons neuves définies par le constructeur, avec un contrat de construction de maison individuelle, dans le cadre de la loi du 19/12/1990. Prix net, hors frais notariés, d'enregistrement et de publicité foncière
Terrain proposé au prix de : 73 000 €
Maison proposée au prix de : 302 452 €
Etiquette énergie : A. Assurances et garanties du constructeur (RC professionnelle, décennale, dommage ouvrage, Garantie de livraison à prix et délai convenu). https://www.maisonsdelavenir.com/mentions-legales/
Localisation
Une maison 100% personnalisable
-
Garage
-
Agencement
-
Revêtements extérieurs
-
Toiture
-
Ouvertures
Nos garanties constructeur
UNE MAISON 100% PERSONNALISÉE
Définir un style architectural (contemporain, moderne, traditionnel) et un plan adapté à votre mode de vie pour mettre en lumière votre projet de construction, tel est notre quotidien !
SERVICE 3 EN 1
Nos conseillers habitat vous accompagnent tout au long de votre projet : Terrain – Maison - Financement, afin de garantir sa réussite et de satisfaire vos exigences !
DES ANNÉES D'EXPÉRIENCES
Depuis 1962, la marque Maisons de l’Avenir inspire confiance et sérénité, une si longue expérience dans la construction de maisons individuelles, c’est un vrai gage de qualité !















































