Prix Maison + Terrain
- À partir de 586 685 €
Référence
- LA2365184_2
Maison personnalisable
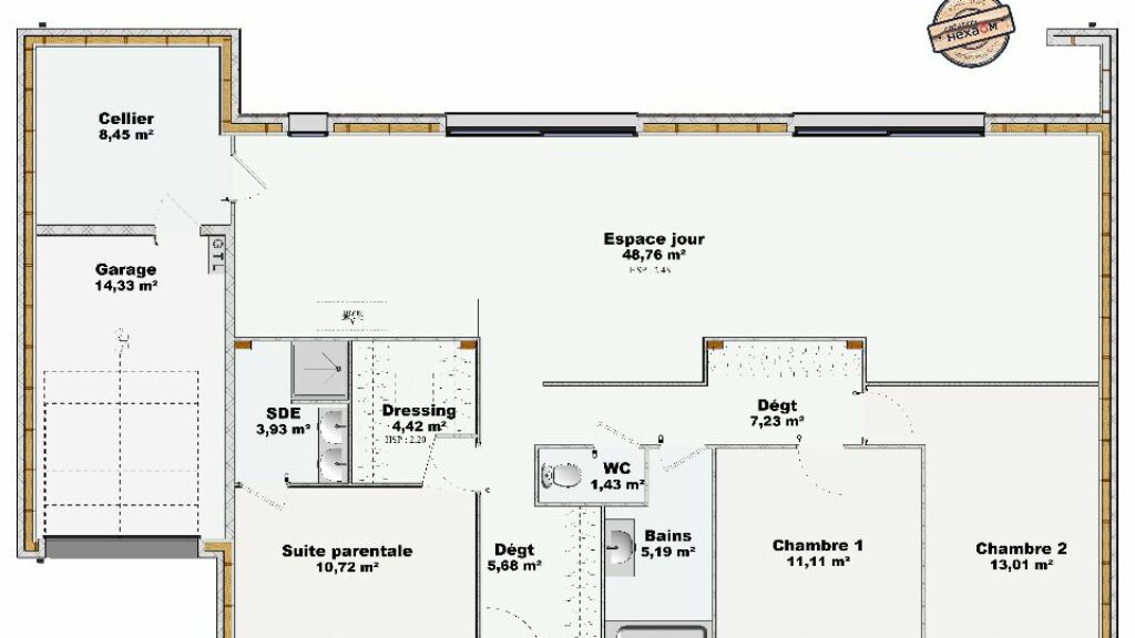
- Chambres : 3
- Nombre de pièces : 4
- Surface maison : 120 m²
- Surface terrain : 578 m²
- Garage/Carport
Performances énergétiques
- Classe énergétique : A
Description
VENTE : maison T4 (120 m²) à Dinard
EMPLACEMENT PRIVILÉGIÉ - A moins de 2km de la plage du Port Blanc, de la Plage du Prieuré ou encore de la zone commerciale Cap Emeraude', vous profiterez pleinement du cadre de vie dynamique de ce quartier.
MAISON BOIS QUALITATIVE, ECONOMIQUE ET DURABLE 4 PIÈCES NEUVE
À vendre : à 4 km de la Manche et à 6 km de Saint-Malo, notre agence Maisons de l'Avenir Saint-Carné est heureuse de vous présenter, bénéficiant d'un emplacement privilégié dans Dinard (35800), cette maison de 4 pièces de plain-pied de 120 m² et de 578 m² de terrain. Conçue de plain-pied, elle se divise en trois chambres, une cuisine et deux salles de bains.
Cette maison est neuve.
Ce bien est situé dans un quartier prisé. L'École Maternelle Publique Jules Verne, l'École Élémentaire Publique Claude Debussy et l'École Primaire Privée Notre Dame de la Mer se trouvent à moins de 10 minutes à pied. Côté transports, il y a la gare Saint-Malo à moins de 10 minutes en voiture. La nationale N176 est accessible à 12 km. On trouve un bassin de natation, des commerces, des boulangeries, un supermarché, des épiceries et trois poissonneries à proximité. Enfin, le marché Place Crolard anime le quartier.
Son prix de vente est de 586 685 €.
Prenez contact avec Laetitia AMIRI (02-99-83-07-20) pour plus de renseignements sur la maison ou sur les démarches à suivre. Maisons de l'Avenir Saint-Carné vous accompagne à toutes les étapes de l'achat et dans tous vos projets immobiliers.
EMPLACEMENT PRIVILÉGIÉ - A moins de 2km de la plage du Port Blanc, de la Plage du Prieuré ou encore de la zone commerciale Cap Emeraude', vous profiterez pleinement du cadre de vie dynamique de ce quartier.
MAISON BOIS QUALITATIVE, ECONOMIQUE ET DURABLE 4 PIÈCES NEUVE
À vendre : à 4 km de la Manche et à 6 km de Saint-Malo, notre agence Maisons de l'Avenir Saint-Carné est heureuse de vous présenter, bénéficiant d'un emplacement privilégié dans Dinard (35800), cette maison de 4 pièces de plain-pied de 120 m² et de 578 m² de terrain. Conçue de… Lire la suite
VENTE : maison T4 (120 m²) à Dinard
EMPLACEMENT PRIVILÉGIÉ - A moins de 2km de la plage du Port Blanc, de la Plage du Prieuré ou encore de la zone commerciale Cap Emeraude', vous profiterez pleinement du cadre de vie dynamique de ce quartier.
MAISON BOIS QUALITATIVE, ECONOMIQUE ET DURABLE 4 PIÈCES NEUVE
À vendre : à 4 km de la Manche et à 6 km de Saint-Malo, notre agence Maisons de l'Avenir Saint-Carné est heureuse de vous présenter, bénéficiant d'un emplacement privilégié dans Dinard (35800), cette maison de 4 pièces de plain-pied de 120 m² et de 578 m² de terrain. Conçue de plain-pied, elle se divise en trois chambres, une cuisine et deux salles de bains.
Cette maison est neuve.
Ce bien est situé dans un quartier prisé. L'École Maternelle Publique Jules Verne, l'École Élémentaire Publique Claude Debussy et l'École Primaire Privée Notre Dame de la Mer se trouvent à moins de 10 minutes à pied. Côté transports, il y a la gare Saint-Malo à moins de 10 minutes en voiture. La nationale N176 est accessible à 12 km. On trouve un bassin de natation, des commerces, des boulangeries, un supermarché, des épiceries et trois poissonneries à proximité. Enfin, le marché Place Crolard anime le quartier.
Son prix de vente est de 586 685 €.
Prenez contact avec Laetitia AMIRI (02-99-83-07-20) pour plus de renseignements sur la maison ou sur les démarches à suivre. Maisons de l'Avenir Saint-Carné vous accompagne à toutes les étapes de l'achat et dans tous vos projets immobiliers.
Maisons de l’Avenir, constructeur de maisons individuelles, propose en collaboration avec ses partenaires fonciers, une sélection de terrains constructibles, selon disponibilité, pour la construction de maisons neuves définies par le constructeur, avec un contrat de construction de maison individuelle, dans le cadre de la loi du 19/12/1990. Prix net, hors frais notariés, d'enregistrement et de publicité foncière
Terrain proposé au prix de : 298 680 €
Maison proposée au prix de : 288 005 €
Etiquette énergie : A. Assurances et garanties du constructeur (RC professionnelle, décennale, dommage ouvrage, Garantie de livraison à prix et délai convenu). https://www.maisonsdelavenir.com/mentions-legales/
Localisation
Une maison 100% personnalisable
-
Garage
-
Agencement
-
Revêtements extérieurs
-
Toiture
-
Ouvertures
Nos garanties constructeur
UNE MAISON 100% PERSONNALISÉE
Définir un style architectural (contemporain, moderne, traditionnel) et un plan adapté à votre mode de vie pour mettre en lumière votre projet de construction, tel est notre quotidien !
SERVICE 3 EN 1
Nos conseillers habitat vous accompagnent tout au long de votre projet : Terrain – Maison - Financement, afin de garantir sa réussite et de satisfaire vos exigences !
DES ANNÉES D'EXPÉRIENCES
Depuis 1962, la marque Maisons de l’Avenir inspire confiance et sérénité, une si longue expérience dans la construction de maisons individuelles, c’est un vrai gage de qualité !



































