Prix Maison + Terrain
- À partir de 385 659 €
Référence
- CR2251422_4
Maison personnalisable
- Chambres : 3
- Nombre de pièces : 4
- Surface maison : 75 m²
- Surface terrain : 350 m²
- Garage/Carport
Performances énergétiques
- Classe énergétique : A
Description
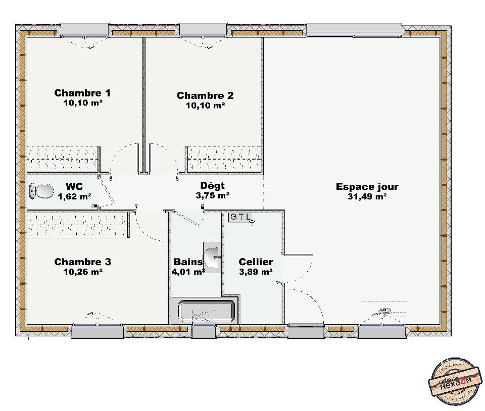
Maison neuve 4 pièces - Ossature bois avec bardage bois - 75 m² à Dinan
À seulement 10 km de la Manche et à deux pas de Saint-Malo, Maisons de l'Avenir vous propose cette maison de plain-pied de 75 m², conçue en ossature bois, alliant performance énergétique, confort et durabilité.
Elle se compose de :
3 chambres lumineuses,
1 cuisine ouverte sur le salon,
1 salle de bains fonctionnelle,
offrant un espace de vie convivial et agréable pour toute la famille.
Le terrain de 350 m² complète ce bien, idéal pour profiter de l'extérieur.
Le bardage bois extérieur apporte une esthétique chaleureuse et naturelle, tout en étant écologique et durable, contribuant à un habitat sain et respectueux de l'environnement.
Quartier pratique et attractif : écoles, gare, commerces, marché Place Duguesclin et installations sportives à proximité.
💰 Prix : 385 659 €
Contact : Cyril RENVAZE - 02 96 78 52 58
À seulement 10 km de la Manche et à deux pas de Saint-Malo, Maisons de l'Avenir vous propose cette maison de plain-pied de 75 m², conçue en ossature bois, alliant performance énergétique, confort et durabilité.
Elle se compose de :
3 chambres lumineuses,
1 cuisine ouverte sur le salon,
1 salle de bains fonctionnelle,
offrant un espace de vie convivial et agréable pour toute la famille.
Le terrain de 350 m² complète ce bien, idéal pour profiter de l'extérieur.
Le bardage bois extérieur apporte une esthétique chaleureuse et naturelle, tout en étant écologique… Lire la suite
Maison neuve 4 pièces - Ossature bois avec bardage bois - 75 m² à Dinan
À seulement 10 km de la Manche et à deux pas de Saint-Malo, Maisons de l'Avenir vous propose cette maison de plain-pied de 75 m², conçue en ossature bois, alliant performance énergétique, confort et durabilité.
Elle se compose de :
3 chambres lumineuses,
1 cuisine ouverte sur le salon,
1 salle de bains fonctionnelle,
offrant un espace de vie convivial et agréable pour toute la famille.
Le terrain de 350 m² complète ce bien, idéal pour profiter de l'extérieur.
Le bardage bois extérieur apporte une esthétique chaleureuse et naturelle, tout en étant écologique et durable, contribuant à un habitat sain et respectueux de l'environnement.
Quartier pratique et attractif : écoles, gare, commerces, marché Place Duguesclin et installations sportives à proximité.
💰 Prix : 385 659 €
Contact : Cyril RENVAZE - 02 96 78 52 58
Maisons de l’Avenir, constructeur de maisons individuelles, propose en collaboration avec ses partenaires fonciers, une sélection de terrains constructibles, selon disponibilité, pour la construction de maisons neuves définies par le constructeur, avec un contrat de construction de maison individuelle, dans le cadre de la loi du 19/12/1990. Prix net, hors frais notariés, d'enregistrement et de publicité foncière
Terrain proposé au prix de : 198 830 €
Maison proposée au prix de : 186 829 €
Etiquette énergie : A. Assurances et garanties du constructeur (RC professionnelle, décennale, dommage ouvrage, Garantie de livraison à prix et délai convenu). https://www.maisonsdelavenir.com/mentions-legales/
Localisation
Une maison 100% personnalisable
-
Garage
-
Agencement
-
Revêtements extérieurs
-
Toiture
-
Ouvertures
Nos garanties constructeur
UNE MAISON 100% PERSONNALISÉE
Définir un style architectural (contemporain, moderne, traditionnel) et un plan adapté à votre mode de vie pour mettre en lumière votre projet de construction, tel est notre quotidien !
SERVICE 3 EN 1
Nos conseillers habitat vous accompagnent tout au long de votre projet : Terrain – Maison - Financement, afin de garantir sa réussite et de satisfaire vos exigences !
DES ANNÉES D'EXPÉRIENCES
Depuis 1962, la marque Maisons de l’Avenir inspire confiance et sérénité, une si longue expérience dans la construction de maisons individuelles, c’est un vrai gage de qualité !























