Prix Maison + Terrain
- À partir de 257 500 €
Référence
- BLM2315858_4
Maison personnalisable
- Chambres : 3
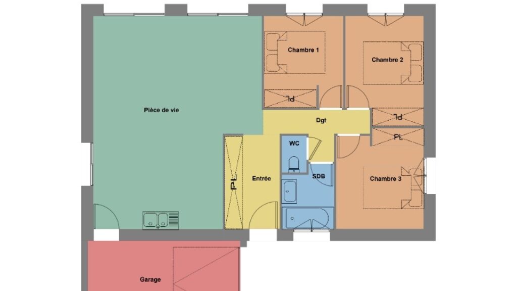
- Nombre de pièces : 4
- Surface maison : 75 m²
- Surface terrain : 271 m²
- Garage/Carport
Performances énergétiques
- Classe énergétique : A
Description
Couëron : maison T4 (75 m²) à vendre
IDÉALEMENT SITUÉE - MAISON 4 PIÈCES NEUVE
En vente : Maisons de l'Avenir Orvault vous présente cette maison de 4 pièces de plain-pied de 75 m² et de 271 m² de terrain idéalement située dans Couëron (44220).
Son intérieur dispose de trois chambres, d'une cuisine et d'une salle de bains. Cette maison est neuve.
La maison se trouve dans un quartier convoité. Tous les types d'établissements scolaires (maternelle, élémentaire et secondaire) y sont implantés. Côté transports, il y a trois gares (Couëron, La Basse Indre-Saint-Herblain et Saint-Étienne-de-Montluc) à moins de 10 minutes en voiture. L'autoroute A82 et les nationales N444, N165 et N844 sont accessibles à moins de 7 km. On trouve une bibliothèque à proximité du bien.
Elle est proposée à l'achat pour 257 500 €.
Prenez contact avec Badri LADIYE MOUSSA (06 12 68 31 39) pour toute information sur la maison, sur les modalités de vente ou sur les démarches à suivre. Maisons de l'Avenir Orvault vous accompagne à toutes les étapes de l'achat et dans tous vos projets immobiliers.
IDÉALEMENT SITUÉE - MAISON 4 PIÈCES NEUVE
En vente : Maisons de l'Avenir Orvault vous présente cette maison de 4 pièces de plain-pied de 75 m² et de 271 m² de terrain idéalement située dans Couëron (44220).
Son intérieur dispose de trois chambres, d'une cuisine et d'une salle de bains. Cette maison est neuve.
La maison se trouve dans un quartier convoité. Tous les types d'établissements scolaires (maternelle, élémentaire et secondaire) y sont implantés. Côté transports, il y a trois gares (Couëron, La Basse Indre-Saint-Herblain et Saint-Étienne-de-Montluc) à moins de 10 minutes en voiture. L'autoroute A82 et les… Lire la suite
Couëron : maison T4 (75 m²) à vendre
IDÉALEMENT SITUÉE - MAISON 4 PIÈCES NEUVE
En vente : Maisons de l'Avenir Orvault vous présente cette maison de 4 pièces de plain-pied de 75 m² et de 271 m² de terrain idéalement située dans Couëron (44220).
Son intérieur dispose de trois chambres, d'une cuisine et d'une salle de bains. Cette maison est neuve.
La maison se trouve dans un quartier convoité. Tous les types d'établissements scolaires (maternelle, élémentaire et secondaire) y sont implantés. Côté transports, il y a trois gares (Couëron, La Basse Indre-Saint-Herblain et Saint-Étienne-de-Montluc) à moins de 10 minutes en voiture. L'autoroute A82 et les nationales N444, N165 et N844 sont accessibles à moins de 7 km. On trouve une bibliothèque à proximité du bien.
Elle est proposée à l'achat pour 257 500 €.
Prenez contact avec Badri LADIYE MOUSSA (06 12 68 31 39) pour toute information sur la maison, sur les modalités de vente ou sur les démarches à suivre. Maisons de l'Avenir Orvault vous accompagne à toutes les étapes de l'achat et dans tous vos projets immobiliers.
Maisons de l’Avenir, constructeur de maisons individuelles, propose en collaboration avec ses partenaires fonciers, une sélection de terrains constructibles, selon disponibilité, pour la construction de maisons neuves définies par le constructeur, avec un contrat de construction de maison individuelle, dans le cadre de la loi du 19/12/1990. Prix net, hors frais notariés, d'enregistrement et de publicité foncière
Terrain proposé au prix de : 85 000 €
Maison proposée au prix de : 172 500 €
Etiquette énergie : A. Assurances et garanties du constructeur (RC professionnelle, décennale, dommage ouvrage, Garantie de livraison à prix et délai convenu). https://www.maisonsdelavenir.com/mentions-legales/
Localisation
Une maison 100% personnalisable
-
Garage
-
Agencement
-
Revêtements extérieurs
-
Toiture
-
Ouvertures
Nos garanties constructeur
UNE MAISON 100% PERSONNALISÉE
Définir un style architectural (contemporain, moderne, traditionnel) et un plan adapté à votre mode de vie pour mettre en lumière votre projet de construction, tel est notre quotidien !
SERVICE 3 EN 1
Nos conseillers habitat vous accompagnent tout au long de votre projet : Terrain – Maison - Financement, afin de garantir sa réussite et de satisfaire vos exigences !
DES ANNÉES D'EXPÉRIENCES
Depuis 1962, la marque Maisons de l’Avenir inspire confiance et sérénité, une si longue expérience dans la construction de maisons individuelles, c’est un vrai gage de qualité !















