Prix Maison + Terrain
- À partir de 415 000 €
Référence
- DM2363410_4
Maison personnalisable
- Chambres : 4
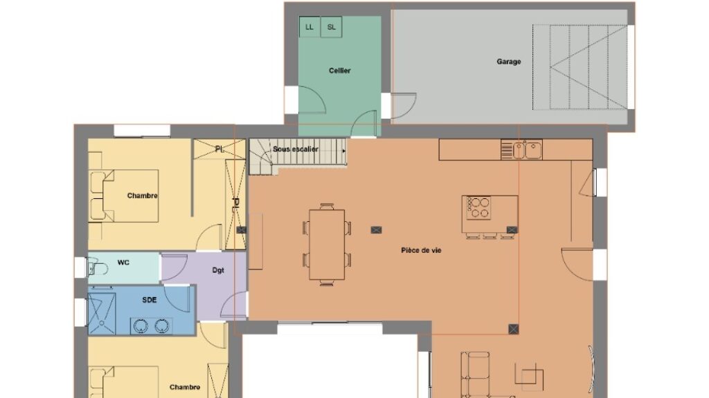
- Nombre de pièces : 5
- Surface maison : 145 m²
- Surface terrain : 444 m²
- Garage/Carport
Performances énergétiques
- Classe énergétique : A
Description
Cintré : maison T5 (145 m²) à vendre
IDÉALEMENT SITUÉE - MAISON 5 PIÈCES NEUVE
À vendre à 47 km de la Manche et à deux pas de Rennes, découvrez cette maison de 5 pièces de 145 m² et de 444 m² de terrain idéalement située dans Cintré (35310).
Il s'agit d'une maison de 2 niveaux. Son intérieur comporte quatre chambres, une cuisine et deux salles de bains. La maison est neuve.
Cette maison se trouve dans un secteur recherché. Il y a l'École Primaire Privée St Joseph et l'École Primaire Publique Arc-En-En à moins de 10 minutes à pied et trois crèches. Côté transports, on trouve les gares Breteil, L'Hermitage-Mordelles et Montfort-sur-Meu à moins de 10 minutes en voiture. Les nationales N24 et N12 sont accessibles à moins de 7 km. Il y a un tennis, une boulangerie et une épicerie à proximité du logement.
Elle est proposée à l'achat pour 415 000 €.
N'hésitez pas à prendre contact avec Dimitri MESAS (tél : 02-99-83-07-20) pour toute information sur la maison, sur les démarches à suivre ou sur les modalités de vente.
IDÉALEMENT SITUÉE - MAISON 5 PIÈCES NEUVE
À vendre à 47 km de la Manche et à deux pas de Rennes, découvrez cette maison de 5 pièces de 145 m² et de 444 m² de terrain idéalement située dans Cintré (35310).
Il s'agit d'une maison de 2 niveaux. Son intérieur comporte quatre chambres, une cuisine et deux salles de bains. La maison est neuve.
Cette maison se trouve dans un secteur recherché. Il y a l'École Primaire Privée St Joseph et l'École Primaire Publique Arc-En-En à moins de 10 minutes à pied et trois crèches. Côté transports, on… Lire la suite
Cintré : maison T5 (145 m²) à vendre
IDÉALEMENT SITUÉE - MAISON 5 PIÈCES NEUVE
À vendre à 47 km de la Manche et à deux pas de Rennes, découvrez cette maison de 5 pièces de 145 m² et de 444 m² de terrain idéalement située dans Cintré (35310).
Il s'agit d'une maison de 2 niveaux. Son intérieur comporte quatre chambres, une cuisine et deux salles de bains. La maison est neuve.
Cette maison se trouve dans un secteur recherché. Il y a l'École Primaire Privée St Joseph et l'École Primaire Publique Arc-En-En à moins de 10 minutes à pied et trois crèches. Côté transports, on trouve les gares Breteil, L'Hermitage-Mordelles et Montfort-sur-Meu à moins de 10 minutes en voiture. Les nationales N24 et N12 sont accessibles à moins de 7 km. Il y a un tennis, une boulangerie et une épicerie à proximité du logement.
Elle est proposée à l'achat pour 415 000 €.
N'hésitez pas à prendre contact avec Dimitri MESAS (tél : 02-99-83-07-20) pour toute information sur la maison, sur les démarches à suivre ou sur les modalités de vente.
Maisons de l’Avenir, constructeur de maisons individuelles, propose en collaboration avec ses partenaires fonciers, une sélection de terrains constructibles, selon disponibilité, pour la construction de maisons neuves définies par le constructeur, avec un contrat de construction de maison individuelle, dans le cadre de la loi du 19/12/1990. Prix net, hors frais notariés, d'enregistrement et de publicité foncière
Terrain proposé au prix de : 103 000 €
Maison proposée au prix de : 312 000 €
Etiquette énergie : A. Assurances et garanties du constructeur (RC professionnelle, décennale, dommage ouvrage, Garantie de livraison à prix et délai convenu). https://www.maisonsdelavenir.com/mentions-legales/
Localisation
Une maison 100% personnalisable
-
Garage
-
Agencement
-
Revêtements extérieurs
-
Toiture
-
Ouvertures
Nos garanties constructeur
UNE MAISON 100% PERSONNALISÉE
Définir un style architectural (contemporain, moderne, traditionnel) et un plan adapté à votre mode de vie pour mettre en lumière votre projet de construction, tel est notre quotidien !
SERVICE 3 EN 1
Nos conseillers habitat vous accompagnent tout au long de votre projet : Terrain – Maison - Financement, afin de garantir sa réussite et de satisfaire vos exigences !
DES ANNÉES D'EXPÉRIENCES
Depuis 1962, la marque Maisons de l’Avenir inspire confiance et sérénité, une si longue expérience dans la construction de maisons individuelles, c’est un vrai gage de qualité !

















