Maison à construire de 111m² (4 chambres) sur un terrain de 444m² à Cintré (35310)

2363415-5377modele720220204IBD28.jpeg
Nous contacter
  • Prix Maison + Terrain

    • À partir de 343 000 €
  • Référence

    • DM2363410_3
  • Maison personnalisable

    • Chambres : 4
    • Nombre de pièces : 5
    • Surface maison : 111 m²
    • Surface terrain : 444 m²
    • Garage/Carport
  • Performances énergétiques

    • Classe énergétique : A

Description

Maison T5 (111 m²) à vendre à Cintré
IDÉALEMENT SITUÉE - MAISON 5 PIÈCES NEUVE
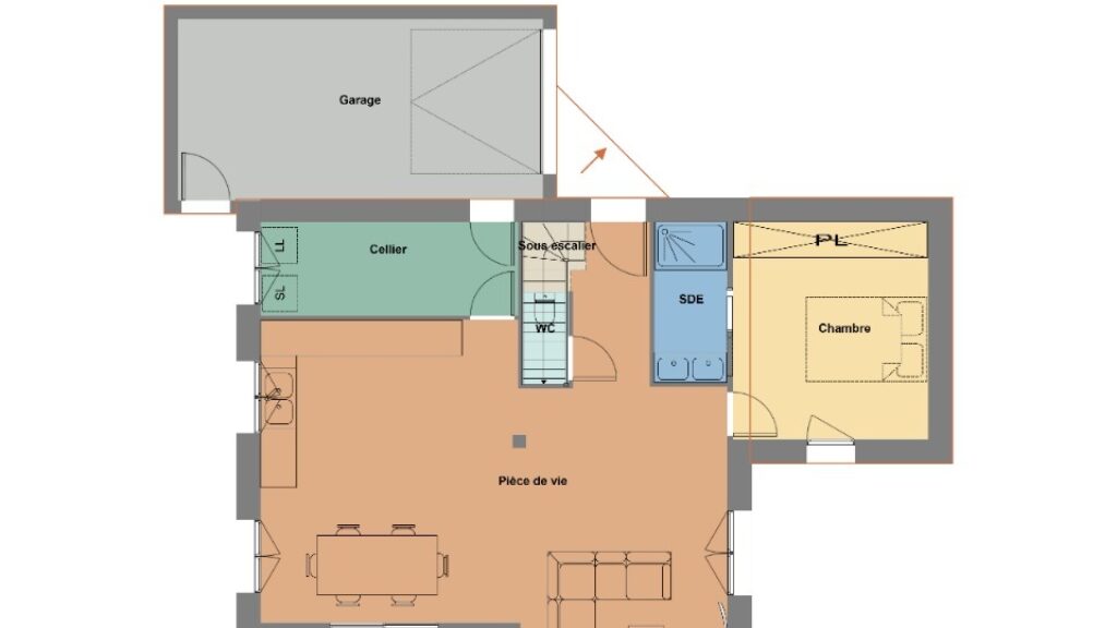
En vente à 47 km de la Manche et à 15 km de Rennes, nous sommes heureux de vous présenter, idéalement située dans Cintré (35310), cette maison de 5 pièces de 111 m² et de 444 m² de terrain.
Cette maison compte 2 niveaux. Elle est composée de quatre chambres, d'une cuisine et de deux salles de bains. La maison est neuve.
La maison est située dans un secteur convoité. L'École Primaire Privée St Joseph et l'École Primaire Publique Arc-En-En se trouvent à moins de 10 minutes à pied, tout comme trois structures d'accueil pour les tout-petits. Niveau transports en commun, il y a les gares Breteil, L'Hermitage-Mordelles et Montfort-sur-Meu à moins de 10 minutes en voiture. Les nationales N24 et N12 sont accessibles à moins de 7 km. On trouve un tennis, une boulangerie et une épicerie dans les environs.
Son prix de vente est de 343 000 €.
Contactez Dimitri MESAS (02-99-83-07-20) pour toute question sur la maison, sur les démarches à suivre ou sur les modalités de vente.

Masquer
Maison T5 (111 m²) à vendre à Cintré
IDÉALEMENT SITUÉE - MAISON 5 PIÈCES NEUVE
En vente à 47 km de la Manche et à 15 km de Rennes, nous sommes heureux de vous présenter, idéalement située dans Cintré (35310), cette maison de 5 pièces de 111 m² et de 444 m² de terrain.
Cette maison compte 2 niveaux. Elle est composée de quatre chambres, d'une cuisine et de deux salles de bains. La maison est neuve.
La maison est située dans un secteur convoité. L'École Primaire Privée St Joseph et l'École Primaire Publique Arc-En-En se trouvent à moins de 10 minutes à pied, tout comme… Lire la suite

Maison T5 (111 m²) à vendre à Cintré
IDÉALEMENT SITUÉE - MAISON 5 PIÈCES NEUVE
En vente à 47 km de la Manche et à 15 km de Rennes, nous sommes heureux de vous présenter, idéalement située dans Cintré (35310), cette maison de 5 pièces de 111 m² et de 444 m² de terrain.
Cette maison compte 2 niveaux. Elle est composée de quatre chambres, d'une cuisine et de deux salles de bains. La maison est neuve.
La maison est située dans un secteur convoité. L'École Primaire Privée St Joseph et l'École Primaire Publique Arc-En-En se trouvent à moins de 10 minutes à pied, tout comme trois structures d'accueil pour les tout-petits. Niveau transports en commun, il y a les gares Breteil, L'Hermitage-Mordelles et Montfort-sur-Meu à moins de 10 minutes en voiture. Les nationales N24 et N12 sont accessibles à moins de 7 km. On trouve un tennis, une boulangerie et une épicerie dans les environs.
Son prix de vente est de 343 000 €.
Contactez Dimitri MESAS (02-99-83-07-20) pour toute question sur la maison, sur les démarches à suivre ou sur les modalités de vente.

Localisation

Une maison 100% personnalisable

  • Garage

  • Agencement

  • Revêtements extérieurs

  • Toiture

  • Ouvertures

Nos garanties constructeur

UNE MAISON 100% PERSONNALISÉE

Définir un style architectural (contemporain, moderne, traditionnel) et un plan adapté à votre mode de vie pour mettre en lumière votre projet de construction, tel est notre quotidien !

SERVICE 3 EN 1

Nos conseillers habitat vous accompagnent tout au long de votre projet : Terrain – Maison - Financement, afin de garantir sa réussite et de satisfaire vos exigences !

DES ANNÉES D'EXPÉRIENCES

Depuis 1962, la marque Maisons de l’Avenir inspire confiance et sérénité, une si longue expérience dans la construction de maisons individuelles, c’est un vrai gage de qualité !