Prix Maison + Terrain
- À partir de 287 000 €
Référence
- PAB2345074_3
Maison personnalisable
- Chambres : 3
- Nombre de pièces : 4
- Surface maison : 94 m²
- Surface terrain : 379 m²
- Garage/Carport
Performances énergétiques
- Classe énergétique : A
Description
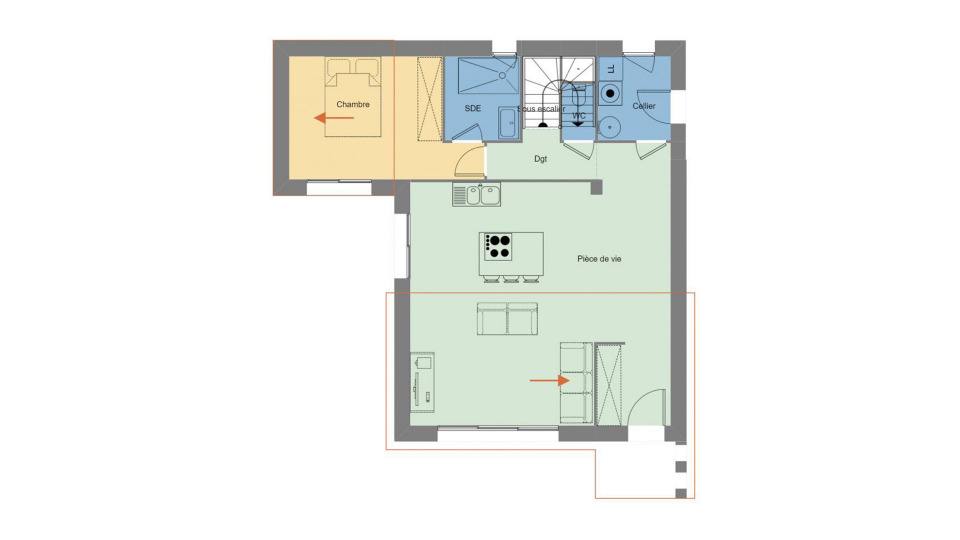
VENTE d'une maison de 4 pièces (94 m²) à Chaumes-en-Retz
EMPLACEMENT PRIVILÉGIÉ - MAISON 4 PIÈCES NEUVE
À 12 km de la côte atlantique et à deux pas de Nantes, venez découvrir cette maison de 4 pièces de 94 m² et de 379 m² de terrain à vendre bénéficiant d'un emplacement privilégié dans Chaumes-en-Retz (44320). Elle offre trois chambres, une cuisine et deux salles de bains.
Il s'agit d'une maison de 2 niveaux. Elle est neuve.
Cette maison se situe dans un quartier convoité. Il y a l'École Primaire Publique Armelle Chevalier et l'École Primaire Privée Notre-Dame à moins de 10 minutes à pied et deux structures d'accueil pour la petite enfance. Côté transports en commun, on trouve quatre gares à moins de 10 minutes en voiture. Il y a une boulangerie et une épicerie dans les environs.
Son prix de vente est de 287 000 €.
N'hésitez pas à prendre contact avec notre agence (BURILLE Pierre Antoine : 02-40-26-28-28) pour obtenir de plus amples informations sur la maison. Maisons de l'Avenir Rezé vous accompagne à toutes les étapes de votre projet et dans toutes vos démarches.
EMPLACEMENT PRIVILÉGIÉ - MAISON 4 PIÈCES NEUVE
À 12 km de la côte atlantique et à deux pas de Nantes, venez découvrir cette maison de 4 pièces de 94 m² et de 379 m² de terrain à vendre bénéficiant d'un emplacement privilégié dans Chaumes-en-Retz (44320). Elle offre trois chambres, une cuisine et deux salles de bains.
Il s'agit d'une maison de 2 niveaux. Elle est neuve.
Cette maison se situe dans un quartier convoité. Il y a l'École Primaire Publique Armelle Chevalier et l'École Primaire Privée Notre-Dame à moins de 10 minutes à pied et deux… Lire la suite
VENTE d'une maison de 4 pièces (94 m²) à Chaumes-en-Retz
EMPLACEMENT PRIVILÉGIÉ - MAISON 4 PIÈCES NEUVE
À 12 km de la côte atlantique et à deux pas de Nantes, venez découvrir cette maison de 4 pièces de 94 m² et de 379 m² de terrain à vendre bénéficiant d'un emplacement privilégié dans Chaumes-en-Retz (44320). Elle offre trois chambres, une cuisine et deux salles de bains.
Il s'agit d'une maison de 2 niveaux. Elle est neuve.
Cette maison se situe dans un quartier convoité. Il y a l'École Primaire Publique Armelle Chevalier et l'École Primaire Privée Notre-Dame à moins de 10 minutes à pied et deux structures d'accueil pour la petite enfance. Côté transports en commun, on trouve quatre gares à moins de 10 minutes en voiture. Il y a une boulangerie et une épicerie dans les environs.
Son prix de vente est de 287 000 €.
N'hésitez pas à prendre contact avec notre agence (BURILLE Pierre Antoine : 02-40-26-28-28) pour obtenir de plus amples informations sur la maison. Maisons de l'Avenir Rezé vous accompagne à toutes les étapes de votre projet et dans toutes vos démarches.
Maisons de l’Avenir, constructeur de maisons individuelles, propose en collaboration avec ses partenaires fonciers, une sélection de terrains constructibles, selon disponibilité, pour la construction de maisons neuves définies par le constructeur, avec un contrat de construction de maison individuelle, dans le cadre de la loi du 19/12/1990. Prix net, hors frais notariés, d'enregistrement et de publicité foncière
Terrain proposé au prix de : 99 000 €
Maison proposée au prix de : 188 000 €
Etiquette énergie : A. Assurances et garanties du constructeur (RC professionnelle, décennale, dommage ouvrage, Garantie de livraison à prix et délai convenu). https://www.maisonsdelavenir.com/mentions-legales/
Localisation
Une maison 100% personnalisable
-
Garage
-
Agencement
-
Revêtements extérieurs
-
Toiture
-
Ouvertures
Nos garanties constructeur
UNE MAISON 100% PERSONNALISÉE
Définir un style architectural (contemporain, moderne, traditionnel) et un plan adapté à votre mode de vie pour mettre en lumière votre projet de construction, tel est notre quotidien !
SERVICE 3 EN 1
Nos conseillers habitat vous accompagnent tout au long de votre projet : Terrain – Maison - Financement, afin de garantir sa réussite et de satisfaire vos exigences !
DES ANNÉES D'EXPÉRIENCES
Depuis 1962, la marque Maisons de l’Avenir inspire confiance et sérénité, une si longue expérience dans la construction de maisons individuelles, c’est un vrai gage de qualité !











