Prix Maison + Terrain
- À partir de 244 500 €
Référence
- DM2363427_4
Maison personnalisable
- Chambres : 4
- Nombre de pièces : 5
- Surface maison : 111 m²
- Surface terrain : 261 m²
- Garage/Carport
Performances énergétiques
- Classe énergétique : A
Description
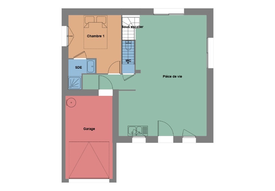
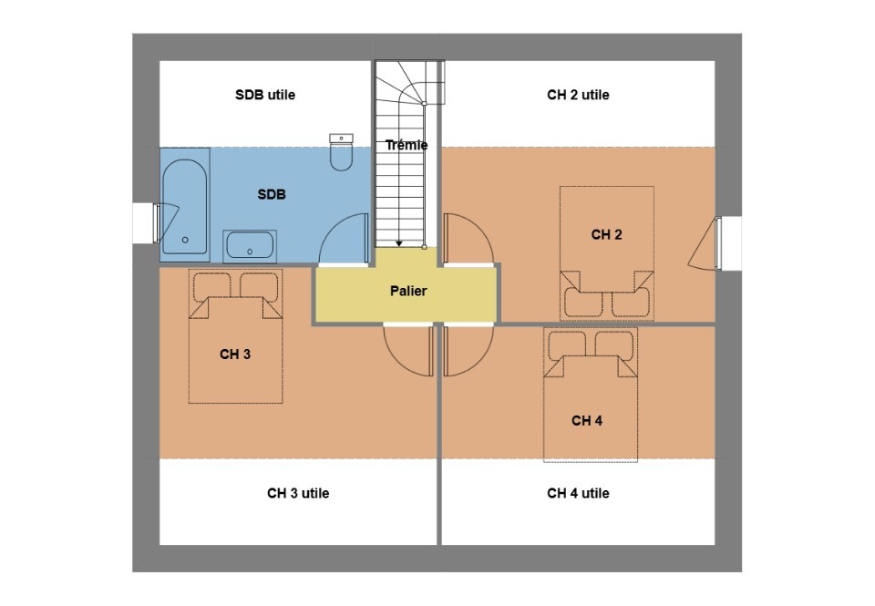
VENTE : maison de 5 pièces (111 m²) à Chanteloup
IDÉALEMENT SITUÉE - MAISON 5 PIÈCES NEUVE
À vendre : à quelques kilomètres de Rennes, nous vous proposons cette maison de 5 pièces de 111 m² idéalement située dans Chanteloup (35150). Elle comporte quatre chambres, une cuisine et deux salles de bains.
Le terrain de la propriété est de 261 m².
Cette maison possède 2 niveaux. Elle est neuve.
La maison se situe dans un secteur recherché. L'École Primaire Publique Lucie Aubrac est implantée à moins de 10 minutes à pied, tout comme une structure d'accueil pour les enfants en bas âge. Côté transports, il y a quatre gares à moins de 10 minutes en voiture. La nationale N137 est accessible à 6 km. On trouve une boulangerie dans les environs.
Elle est à vendre pour la somme de 244 500 €.
Contactez Dimitri MESAS (02-99-83-07-20) pour plus d'informations sur la maison.
IDÉALEMENT SITUÉE - MAISON 5 PIÈCES NEUVE
À vendre : à quelques kilomètres de Rennes, nous vous proposons cette maison de 5 pièces de 111 m² idéalement située dans Chanteloup (35150). Elle comporte quatre chambres, une cuisine et deux salles de bains.
Le terrain de la propriété est de 261 m².
Cette maison possède 2 niveaux. Elle est neuve.
La maison se situe dans un secteur recherché. L'École Primaire Publique Lucie Aubrac est implantée à moins de 10 minutes à pied, tout comme une structure d'accueil pour les enfants en bas âge. Côté transports, il y a… Lire la suite
VENTE : maison de 5 pièces (111 m²) à Chanteloup
IDÉALEMENT SITUÉE - MAISON 5 PIÈCES NEUVE
À vendre : à quelques kilomètres de Rennes, nous vous proposons cette maison de 5 pièces de 111 m² idéalement située dans Chanteloup (35150). Elle comporte quatre chambres, une cuisine et deux salles de bains.
Le terrain de la propriété est de 261 m².
Cette maison possède 2 niveaux. Elle est neuve.
La maison se situe dans un secteur recherché. L'École Primaire Publique Lucie Aubrac est implantée à moins de 10 minutes à pied, tout comme une structure d'accueil pour les enfants en bas âge. Côté transports, il y a quatre gares à moins de 10 minutes en voiture. La nationale N137 est accessible à 6 km. On trouve une boulangerie dans les environs.
Elle est à vendre pour la somme de 244 500 €.
Contactez Dimitri MESAS (02-99-83-07-20) pour plus d'informations sur la maison.
Maisons de l’Avenir, constructeur de maisons individuelles, propose en collaboration avec ses partenaires fonciers, une sélection de terrains constructibles, selon disponibilité, pour la construction de maisons neuves définies par le constructeur, avec un contrat de construction de maison individuelle, dans le cadre de la loi du 19/12/1990. Prix net, hors frais notariés, d'enregistrement et de publicité foncière
Terrain proposé au prix de : 54 500 €
Maison proposée au prix de : 190 000 €
Etiquette énergie : A. Assurances et garanties du constructeur (RC professionnelle, décennale, dommage ouvrage, Garantie de livraison à prix et délai convenu). https://www.maisonsdelavenir.com/mentions-legales/
Localisation
Une maison 100% personnalisable
-
Garage
-
Agencement
-
Revêtements extérieurs
-
Toiture
-
Ouvertures
Nos garanties constructeur
UNE MAISON 100% PERSONNALISÉE
Définir un style architectural (contemporain, moderne, traditionnel) et un plan adapté à votre mode de vie pour mettre en lumière votre projet de construction, tel est notre quotidien !
SERVICE 3 EN 1
Nos conseillers habitat vous accompagnent tout au long de votre projet : Terrain – Maison - Financement, afin de garantir sa réussite et de satisfaire vos exigences !
DES ANNÉES D'EXPÉRIENCES
Depuis 1962, la marque Maisons de l’Avenir inspire confiance et sérénité, une si longue expérience dans la construction de maisons individuelles, c’est un vrai gage de qualité !





















