Prix Maison + Terrain
- À partir de 153 321 €
Référence
- SA2364555_3
Maison personnalisable
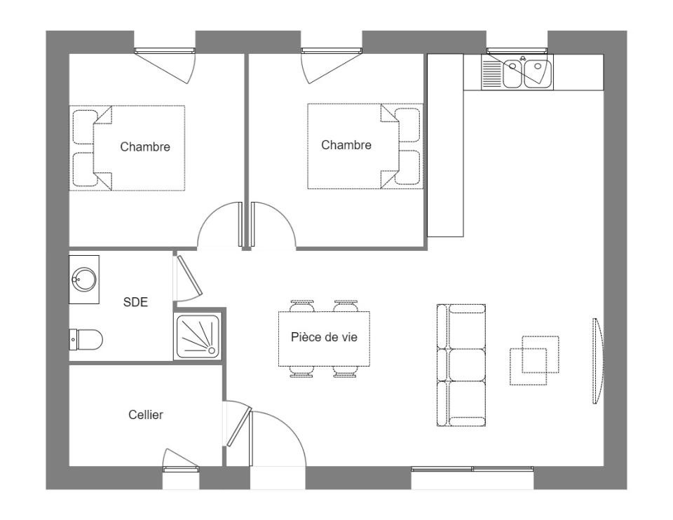
- Chambres : 2
- Nombre de pièces : 3
- Surface maison : 57 m²
- Surface terrain : 371 m²
- Garage/Carport
Performances énergétiques
- Classe énergétique : A
Description
VENTE : maison de 3 pièces (57 m²) à Cast
PROCHE CENTRE-VILLE - MAISON 3 PIÈCES NEUVE
À vendre à 15 km de la côte atlantique et à quelques kilomètres de Quimper, nous vous proposons cette maison de 3 pièces de plain-pied de 57 m² et de 371 m² de terrain, proche du centre-ville de Cast (29150).
Son intérieur propose deux chambres, une cuisine et une salle de bains. La maison est neuve.
L'École Primaire Publique de Cast et l'École Primaire Privée Notre-Dame sont implantées à moins de 10 minutes à pied. Niveau transports, on trouve la gare Châteaulin à moins de 10 minutes en voiture. On trouve un accès à la nationale N165 à 8 km. Il y a un tennis et une boucherie-charcuterie dans les environs.
Son prix de vente est de 153 321 €.
Contactez Sami ALKIS pour plus d'informations sur le bien, sur les démarches à suivre ou sur les modalités de vente.
PROCHE CENTRE-VILLE - MAISON 3 PIÈCES NEUVE
À vendre à 15 km de la côte atlantique et à quelques kilomètres de Quimper, nous vous proposons cette maison de 3 pièces de plain-pied de 57 m² et de 371 m² de terrain, proche du centre-ville de Cast (29150).
Son intérieur propose deux chambres, une cuisine et une salle de bains. La maison est neuve.
L'École Primaire Publique de Cast et l'École Primaire Privée Notre-Dame sont implantées à moins de 10 minutes à pied. Niveau transports, on trouve la gare Châteaulin à moins de 10 minutes en voiture.… Lire la suite
VENTE : maison de 3 pièces (57 m²) à Cast
PROCHE CENTRE-VILLE - MAISON 3 PIÈCES NEUVE
À vendre à 15 km de la côte atlantique et à quelques kilomètres de Quimper, nous vous proposons cette maison de 3 pièces de plain-pied de 57 m² et de 371 m² de terrain, proche du centre-ville de Cast (29150).
Son intérieur propose deux chambres, une cuisine et une salle de bains. La maison est neuve.
L'École Primaire Publique de Cast et l'École Primaire Privée Notre-Dame sont implantées à moins de 10 minutes à pied. Niveau transports, on trouve la gare Châteaulin à moins de 10 minutes en voiture. On trouve un accès à la nationale N165 à 8 km. Il y a un tennis et une boucherie-charcuterie dans les environs.
Son prix de vente est de 153 321 €.
Contactez Sami ALKIS pour plus d'informations sur le bien, sur les démarches à suivre ou sur les modalités de vente.
Maisons de l’Avenir, constructeur de maisons individuelles, propose en collaboration avec ses partenaires fonciers, une sélection de terrains constructibles, selon disponibilité, pour la construction de maisons neuves définies par le constructeur, avec un contrat de construction de maison individuelle, dans le cadre de la loi du 19/12/1990. Prix net, hors frais notariés, d'enregistrement et de publicité foncière
Terrain proposé au prix de : 14 469 €
Maison proposée au prix de : 138 852 €
Etiquette énergie : A. Assurances et garanties du constructeur (RC professionnelle, décennale, dommage ouvrage, Garantie de livraison à prix et délai convenu). https://www.maisonsdelavenir.com/mentions-legales/
Localisation
Une maison 100% personnalisable
-
Garage
-
Agencement
-
Revêtements extérieurs
-
Toiture
-
Ouvertures
Nos garanties constructeur
UNE MAISON 100% PERSONNALISÉE
Définir un style architectural (contemporain, moderne, traditionnel) et un plan adapté à votre mode de vie pour mettre en lumière votre projet de construction, tel est notre quotidien !
SERVICE 3 EN 1
Nos conseillers habitat vous accompagnent tout au long de votre projet : Terrain – Maison - Financement, afin de garantir sa réussite et de satisfaire vos exigences !
DES ANNÉES D'EXPÉRIENCES
Depuis 1962, la marque Maisons de l’Avenir inspire confiance et sérénité, une si longue expérience dans la construction de maisons individuelles, c’est un vrai gage de qualité !









