Maison à construire de 115m² (4 chambres) sur un terrain de 598m² à Camors (56330)

2407791-5377modele720220204IBD28.jpeg
Nous contacter
  • Prix Maison + Terrain

    • À partir de 364 400 €
  • Référence

    • RLBC2407758_3
  • Maison personnalisable

    • Chambres : 4
    • Nombre de pièces : 5
    • Surface maison : 115 m²
    • Surface terrain : 598 m²
    • Garage/Carport
  • Performances énergétiques

    • Classe énergétique : A

Description

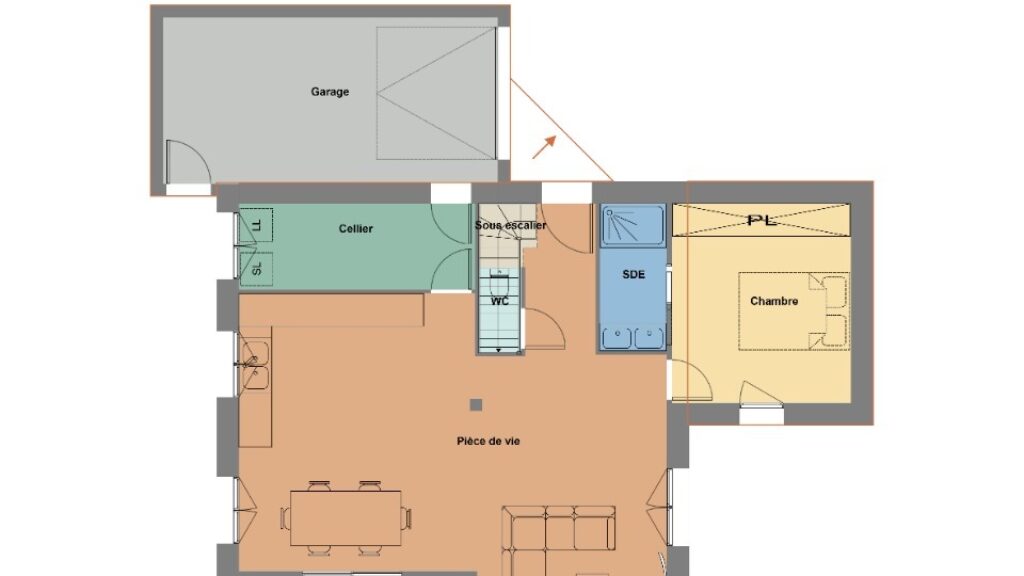
VENTE : maison T5 (115 m²) à Camors
CENTRE-VILLE - MAISON 5 PIÈCES NEUVE
À vendre : à 30 km de l'océan Atlantique et à deux pas de Lorient, notre agence Maisons de l'Avenir Lorient est ravie de vous présenter cette maison de 5 pièces de 115 m² et de 598 m² de terrain en centre-ville de Camors (56330).
Il s'agit d'une maison de 2 niveaux. Son intérieur inclut quatre chambres, une cuisine et deux salles de bains. Cette maison est neuve.
On trouve l'École Primaire Publique les Lutins et l'École Primaire Privée Saint Joseph à moins de 10 minutes à pied et une structure d'accueil pour les enfants en bas âge. La nationale N24 est accessible à 6 km. Il y a une boulangerie, un commerce, une boucherie-charcuterie et un bureau de poste à quelques minutes.
Elle est à vendre pour la somme de 364 400 €.
Contactez notre agence (LE BARON COURTET Riwal : 02-97-21-63-96) pour tout renseignement sur le bien, sur les démarches à suivre ou sur les modalités de vente.

Masquer
VENTE : maison T5 (115 m²) à Camors
CENTRE-VILLE - MAISON 5 PIÈCES NEUVE
À vendre : à 30 km de l'océan Atlantique et à deux pas de Lorient, notre agence Maisons de l'Avenir Lorient est ravie de vous présenter cette maison de 5 pièces de 115 m² et de 598 m² de terrain en centre-ville de Camors (56330).
Il s'agit d'une maison de 2 niveaux. Son intérieur inclut quatre chambres, une cuisine et deux salles de bains. Cette maison est neuve.
On trouve l'École Primaire Publique les Lutins et l'École Primaire Privée Saint Joseph à moins de 10 minutes à pied et une structure d'accueil… Lire la suite

VENTE : maison T5 (115 m²) à Camors
CENTRE-VILLE - MAISON 5 PIÈCES NEUVE
À vendre : à 30 km de l'océan Atlantique et à deux pas de Lorient, notre agence Maisons de l'Avenir Lorient est ravie de vous présenter cette maison de 5 pièces de 115 m² et de 598 m² de terrain en centre-ville de Camors (56330).
Il s'agit d'une maison de 2 niveaux. Son intérieur inclut quatre chambres, une cuisine et deux salles de bains. Cette maison est neuve.
On trouve l'École Primaire Publique les Lutins et l'École Primaire Privée Saint Joseph à moins de 10 minutes à pied et une structure d'accueil pour les enfants en bas âge. La nationale N24 est accessible à 6 km. Il y a une boulangerie, un commerce, une boucherie-charcuterie et un bureau de poste à quelques minutes.
Elle est à vendre pour la somme de 364 400 €.
Contactez notre agence (LE BARON COURTET Riwal : 02-97-21-63-96) pour tout renseignement sur le bien, sur les démarches à suivre ou sur les modalités de vente.

Localisation

Une maison 100% personnalisable

  • Garage

  • Agencement

  • Revêtements extérieurs

  • Toiture

  • Ouvertures

Nos garanties constructeur

UNE MAISON 100% PERSONNALISÉE

Définir un style architectural (contemporain, moderne, traditionnel) et un plan adapté à votre mode de vie pour mettre en lumière votre projet de construction, tel est notre quotidien !

SERVICE 3 EN 1

Nos conseillers habitat vous accompagnent tout au long de votre projet : Terrain – Maison - Financement, afin de garantir sa réussite et de satisfaire vos exigences !

DES ANNÉES D'EXPÉRIENCES

Depuis 1962, la marque Maisons de l’Avenir inspire confiance et sérénité, une si longue expérience dans la construction de maisons individuelles, c’est un vrai gage de qualité !