Prix Maison + Terrain
- À partir de 304 812 €
Référence
- SA2326301_1
Maison personnalisable
- Chambres : 4
- Nombre de pièces : 5
- Surface maison : 95 m²
- Surface terrain : 447 m²
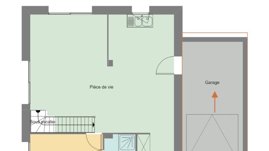
- Garage/Carport
Performances énergétiques
- Classe énergétique : A
Description
VENTE : maison F5 (95 m²) à Briec
PROCHE CENTRE-VILLE - MAISON 5 PIÈCES NEUVE
En vente à 24 km de la côte atlantique et à quelques kilomètres de Quimper, Maisons de l'Avenir Guipavas vous présente, proche du centre-ville de Briec (29510), cette maison de 5 pièces de 95 m².
Cette maison comporte 2 niveaux. Son intérieur comporte quatre chambres, une cuisine et deux salles de bains. Cette maison est neuve.
Le terrain du bien est de 447 m².
Cinq établissements scolaires se trouvent à moins de 10 minutes à pied, tout comme une crèche. La nationale N165 est accessible à 3 km. Il y a deux bassins de natation, deux tennis, des commerces, deux boulangeries, une poissonnerie, un bureau de poste et deux boucheries-charcuteries à quelques minutes.
Elle est proposée à l'achat pour 304 812 €.
Contactez notre agence (Sami ALKIS) pour toute question sur la maison ou sur les démarches à suivre. Maisons de l'Avenir Guipavas est là pour vous accompagner dans tous vos projets immobiliers.
PROCHE CENTRE-VILLE - MAISON 5 PIÈCES NEUVE
En vente à 24 km de la côte atlantique et à quelques kilomètres de Quimper, Maisons de l'Avenir Guipavas vous présente, proche du centre-ville de Briec (29510), cette maison de 5 pièces de 95 m².
Cette maison comporte 2 niveaux. Son intérieur comporte quatre chambres, une cuisine et deux salles de bains. Cette maison est neuve.
Le terrain du bien est de 447 m².
Cinq établissements scolaires se trouvent à moins de 10 minutes à pied, tout comme une crèche. La nationale N165 est accessible à 3 km. Il y a deux… Lire la suite
VENTE : maison F5 (95 m²) à Briec
PROCHE CENTRE-VILLE - MAISON 5 PIÈCES NEUVE
En vente à 24 km de la côte atlantique et à quelques kilomètres de Quimper, Maisons de l'Avenir Guipavas vous présente, proche du centre-ville de Briec (29510), cette maison de 5 pièces de 95 m².
Cette maison comporte 2 niveaux. Son intérieur comporte quatre chambres, une cuisine et deux salles de bains. Cette maison est neuve.
Le terrain du bien est de 447 m².
Cinq établissements scolaires se trouvent à moins de 10 minutes à pied, tout comme une crèche. La nationale N165 est accessible à 3 km. Il y a deux bassins de natation, deux tennis, des commerces, deux boulangeries, une poissonnerie, un bureau de poste et deux boucheries-charcuteries à quelques minutes.
Elle est proposée à l'achat pour 304 812 €.
Contactez notre agence (Sami ALKIS) pour toute question sur la maison ou sur les démarches à suivre. Maisons de l'Avenir Guipavas est là pour vous accompagner dans tous vos projets immobiliers.
Maisons de l’Avenir, constructeur de maisons individuelles, propose en collaboration avec ses partenaires fonciers, une sélection de terrains constructibles, selon disponibilité, pour la construction de maisons neuves définies par le constructeur, avec un contrat de construction de maison individuelle, dans le cadre de la loi du 19/12/1990. Prix net, hors frais notariés, d'enregistrement et de publicité foncière
Terrain proposé au prix de : 67 500 €
Maison proposée au prix de : 237 312 €
Etiquette énergie : A. Assurances et garanties du constructeur (RC professionnelle, décennale, dommage ouvrage, Garantie de livraison à prix et délai convenu). https://www.maisonsdelavenir.com/mentions-legales/
Localisation
Une maison 100% personnalisable
-
Garage
-
Agencement
-
Revêtements extérieurs
-
Toiture
-
Ouvertures
Nos garanties constructeur
UNE MAISON 100% PERSONNALISÉE
Définir un style architectural (contemporain, moderne, traditionnel) et un plan adapté à votre mode de vie pour mettre en lumière votre projet de construction, tel est notre quotidien !
SERVICE 3 EN 1
Nos conseillers habitat vous accompagnent tout au long de votre projet : Terrain – Maison - Financement, afin de garantir sa réussite et de satisfaire vos exigences !
DES ANNÉES D'EXPÉRIENCES
Depuis 1962, la marque Maisons de l’Avenir inspire confiance et sérénité, une si longue expérience dans la construction de maisons individuelles, c’est un vrai gage de qualité !















