Prix Maison + Terrain
- À partir de 305 000 €
Référence
- MD2320778_2
Maison personnalisable
- Chambres : 3
- Nombre de pièces : 4
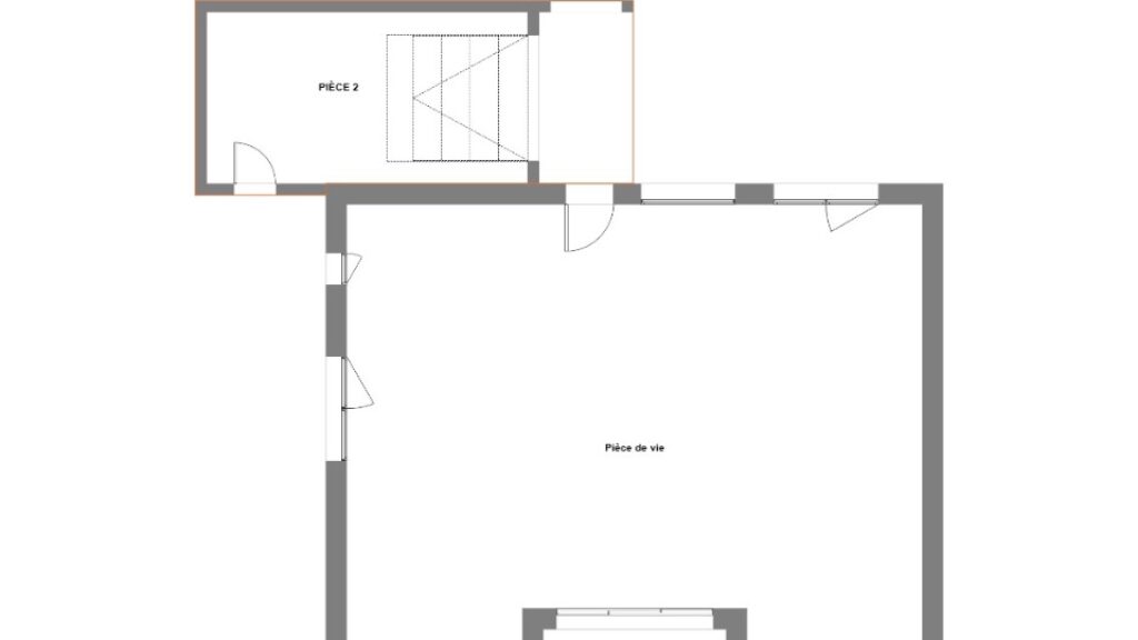
- Surface maison : 100 m²
- Surface terrain : 450 m²
- Garage/Carport
Performances énergétiques
- Classe énergétique : A
Description
Briec : maison de 4 pièces (100 m²) à vendre
CENTRE-VILLE - MAISON 4 PIÈCES NEUVE
À vendre : à 24 km de la côte atlantique et à deux pas de Quimper, nous vous présentons cette maison de 4 pièces de plain-pied de 100 m² et de 450 m² de terrain, en centre-ville de Briec (29510).
Conçue de plain-pied, elle est composée de trois chambres, d'une cuisine et d'une salle de bains.
Elle est proposée à l'achat pour 305 000 €.
Contactez Mathieu DEROUET (tél : 02-98-54-75-20) pour toute question sur la maison, sur les modalités de vente ou sur les démarches à suivre.
CENTRE-VILLE - MAISON 4 PIÈCES NEUVE
À vendre : à 24 km de la côte atlantique et à deux pas de Quimper, nous vous présentons cette maison de 4 pièces de plain-pied de 100 m² et de 450 m² de terrain, en centre-ville de Briec (29510).
Conçue de plain-pied, elle est composée de trois chambres, d'une cuisine et d'une salle de bains.
Elle est proposée à l'achat pour 305 000 €.
Contactez Mathieu DEROUET (tél : 02-98-54-75-20) pour toute question sur la maison, sur les modalités de vente ou sur les démarches à suivre. Lire la suite
Briec : maison de 4 pièces (100 m²) à vendre
CENTRE-VILLE - MAISON 4 PIÈCES NEUVE
À vendre : à 24 km de la côte atlantique et à deux pas de Quimper, nous vous présentons cette maison de 4 pièces de plain-pied de 100 m² et de 450 m² de terrain, en centre-ville de Briec (29510).
Conçue de plain-pied, elle est composée de trois chambres, d'une cuisine et d'une salle de bains.
Elle est proposée à l'achat pour 305 000 €.
Contactez Mathieu DEROUET (tél : 02-98-54-75-20) pour toute question sur la maison, sur les modalités de vente ou sur les démarches à suivre.
Maisons de l’Avenir, constructeur de maisons individuelles, propose en collaboration avec ses partenaires fonciers, une sélection de terrains constructibles, selon disponibilité, pour la construction de maisons neuves définies par le constructeur, avec un contrat de construction de maison individuelle, dans le cadre de la loi du 19/12/1990. Prix net, hors frais notariés, d'enregistrement et de publicité foncière
Terrain proposé au prix de : 60 000 €
Maison proposée au prix de : 245 000 €
Etiquette énergie : A. Assurances et garanties du constructeur (RC professionnelle, décennale, dommage ouvrage, Garantie de livraison à prix et délai convenu). https://www.maisonsdelavenir.com/mentions-legales/
Localisation
Une maison 100% personnalisable
-
Garage
-
Agencement
-
Revêtements extérieurs
-
Toiture
-
Ouvertures
Nos garanties constructeur
UNE MAISON 100% PERSONNALISÉE
Définir un style architectural (contemporain, moderne, traditionnel) et un plan adapté à votre mode de vie pour mettre en lumière votre projet de construction, tel est notre quotidien !
SERVICE 3 EN 1
Nos conseillers habitat vous accompagnent tout au long de votre projet : Terrain – Maison - Financement, afin de garantir sa réussite et de satisfaire vos exigences !
DES ANNÉES D'EXPÉRIENCES
Depuis 1962, la marque Maisons de l’Avenir inspire confiance et sérénité, une si longue expérience dans la construction de maisons individuelles, c’est un vrai gage de qualité !













