Prix Maison + Terrain
- À partir de 256 450 €
Référence
- LA2365328_6
Maison personnalisable
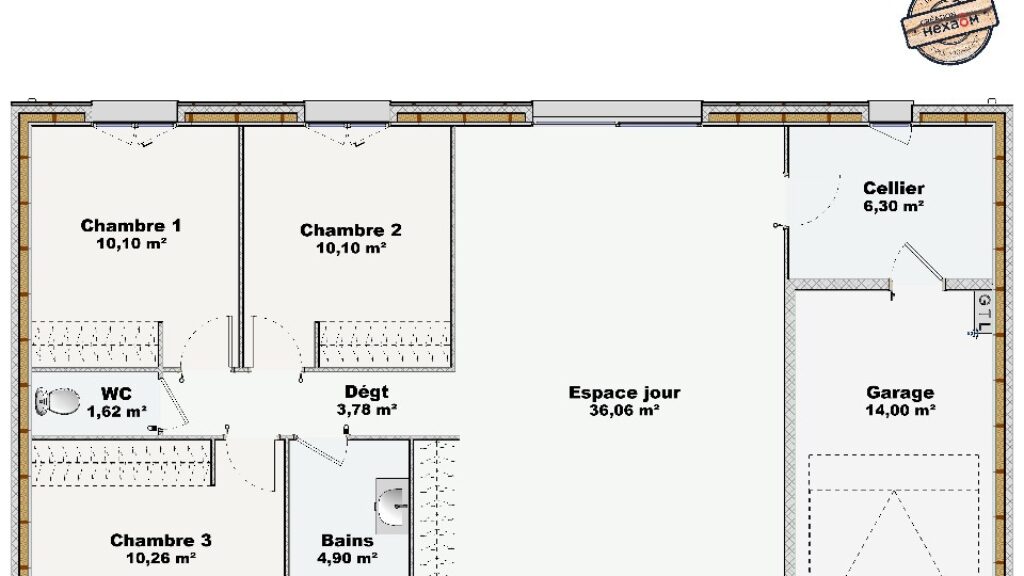
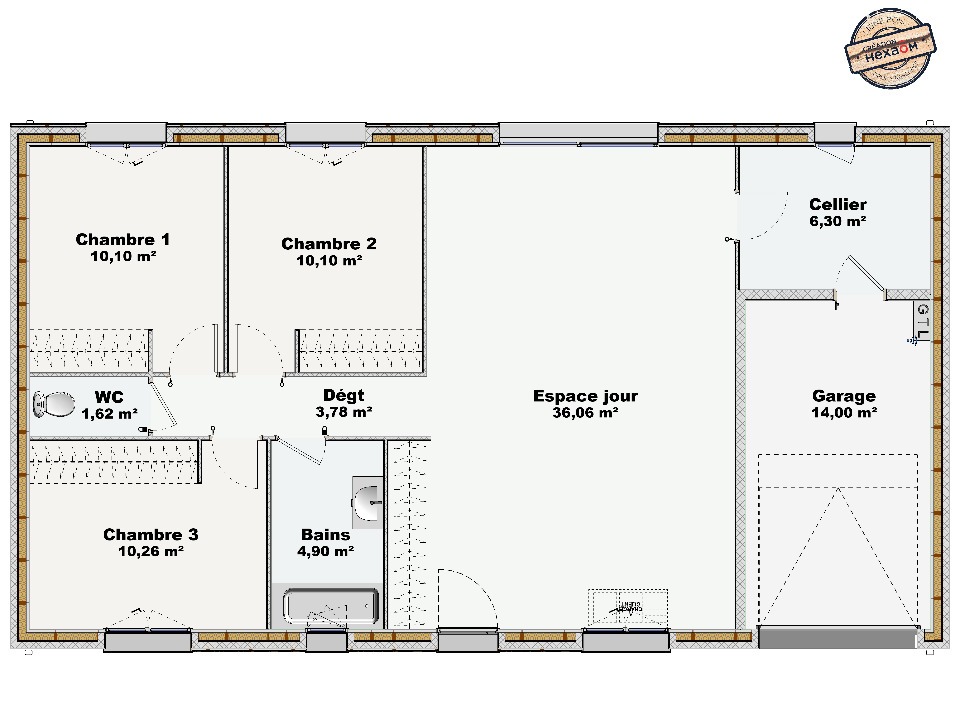
- Chambres : 3
- Nombre de pièces : 4
- Surface maison : 83 m²
- Surface terrain : 365 m²
- Garage/Carport
Performances énergétiques
- Classe énergétique : A
Description
VENTE : maison F4 (83 m²) à Bobital
IDÉALEMENT SITUÉE - PROCHE DE DINAN
MAISON BOIS QUALITATIVE, ECONOMIQUE ET DURABLE 4 PIÈCES NEUVE
À 18 km de la Manche et à deux pas de Saint-Malo, ayez le coup de coeur pour en vente, idéalement située dans Bobital (22100), cette maison de 4 pièces de plain-pied de 83 m² et de 365 m² de terrain.
Elle inclut trois chambres, une cuisine et une salle de bains. La maison est neuve.
La maison est située dans un secteur attractif. On trouve l'École Primaire Publique les Acacias à moins de 10 minutes à pied. Côté transports, il y a les gares Dinan et Corseul-Languenan à moins de 10 minutes en voiture. La nationale N176 est accessible à 4 km. On trouve une bibliothèque et une boulangerie à proximité.
Elle est à vendre pour la somme de 256 450 €.
Contactez Laetitia AMIRI (02-99-83-07-20) pour obtenir de plus amples informations sur la maison ou sur les modalités de vente.
IDÉALEMENT SITUÉE - PROCHE DE DINAN
MAISON BOIS QUALITATIVE, ECONOMIQUE ET DURABLE 4 PIÈCES NEUVE
À 18 km de la Manche et à deux pas de Saint-Malo, ayez le coup de coeur pour en vente, idéalement située dans Bobital (22100), cette maison de 4 pièces de plain-pied de 83 m² et de 365 m² de terrain.
Elle inclut trois chambres, une cuisine et une salle de bains. La maison est neuve.
La maison est située dans un secteur attractif. On trouve l'École Primaire Publique les Acacias à moins de 10 minutes à pied. Côté transports, il y a les… Lire la suite
VENTE : maison F4 (83 m²) à Bobital
IDÉALEMENT SITUÉE - PROCHE DE DINAN
MAISON BOIS QUALITATIVE, ECONOMIQUE ET DURABLE 4 PIÈCES NEUVE
À 18 km de la Manche et à deux pas de Saint-Malo, ayez le coup de coeur pour en vente, idéalement située dans Bobital (22100), cette maison de 4 pièces de plain-pied de 83 m² et de 365 m² de terrain.
Elle inclut trois chambres, une cuisine et une salle de bains. La maison est neuve.
La maison est située dans un secteur attractif. On trouve l'École Primaire Publique les Acacias à moins de 10 minutes à pied. Côté transports, il y a les gares Dinan et Corseul-Languenan à moins de 10 minutes en voiture. La nationale N176 est accessible à 4 km. On trouve une bibliothèque et une boulangerie à proximité.
Elle est à vendre pour la somme de 256 450 €.
Contactez Laetitia AMIRI (02-99-83-07-20) pour obtenir de plus amples informations sur la maison ou sur les modalités de vente.
Maisons de l’Avenir, constructeur de maisons individuelles, propose en collaboration avec ses partenaires fonciers, une sélection de terrains constructibles, selon disponibilité, pour la construction de maisons neuves définies par le constructeur, avec un contrat de construction de maison individuelle, dans le cadre de la loi du 19/12/1990. Prix net, hors frais notariés, d'enregistrement et de publicité foncière
Terrain proposé au prix de : 57 300 €
Maison proposée au prix de : 199 150 €
Etiquette énergie : A. Assurances et garanties du constructeur (RC professionnelle, décennale, dommage ouvrage, Garantie de livraison à prix et délai convenu). https://www.maisonsdelavenir.com/mentions-legales/
Localisation
Une maison 100% personnalisable
-
Garage
-
Agencement
-
Revêtements extérieurs
-
Toiture
-
Ouvertures
Nos garanties constructeur
UNE MAISON 100% PERSONNALISÉE
Définir un style architectural (contemporain, moderne, traditionnel) et un plan adapté à votre mode de vie pour mettre en lumière votre projet de construction, tel est notre quotidien !
SERVICE 3 EN 1
Nos conseillers habitat vous accompagnent tout au long de votre projet : Terrain – Maison - Financement, afin de garantir sa réussite et de satisfaire vos exigences !
DES ANNÉES D'EXPÉRIENCES
Depuis 1962, la marque Maisons de l’Avenir inspire confiance et sérénité, une si longue expérience dans la construction de maisons individuelles, c’est un vrai gage de qualité !





























