Prix Maison + Terrain
- À partir de 305 850 €
Référence
- LA2319167_4
Maison personnalisable
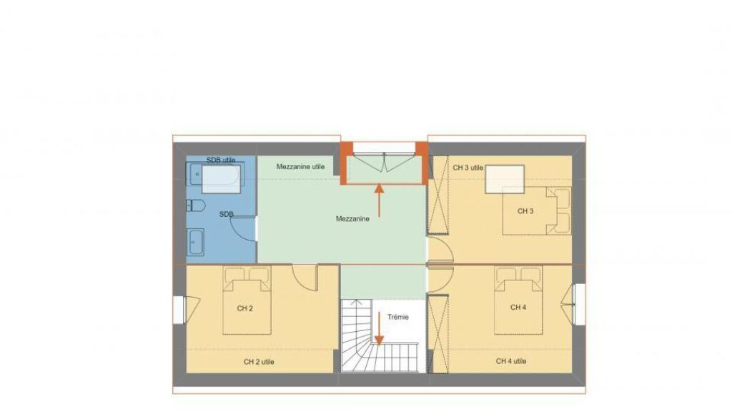
- Chambres : 4
- Nombre de pièces : 5
- Surface maison : 120 m²
- Surface terrain : 365 m²
- Garage/Carport
Performances énergétiques
- Classe énergétique : A
Description
Bobital : maison T5 (120 m²) à vendre
IDÉALEMENT SITUÉE - PROCHE DE DINAN
MAISON 5 PIÈCES NEUVE
À vendre : localisée à 18 km de la Manche et à deux pas de Saint-Malo, nous sommes ravis de vous présenter cette maison de 5 pièces de 120 m² idéalement située dans Bobital (22100). Elle compte quatre chambres, une cuisine et deux salles de bains.
Le terrain de la propriété s'étend sur 365 m².
Cette maison possède 2 niveaux. Elle est neuve.
Cette propriété se trouve dans un secteur prisé. L'École Primaire Publique les Acacias est implantée à moins de 10 minutes à pied. Côté transports, il y a deux gares (Dinan et Corseul-Languenan) à moins de 10 minutes en voiture. On trouve un accès à la nationale N176 à 4 km. On trouve une bibliothèque et une boulangerie dans les environs.
Son prix de vente est de 305 850 €.
Prenez contact avec Laetitia AMIRI (tél : 02-99-83-07-20) pour toute information sur la maison ou sur les démarches à suivre.
IDÉALEMENT SITUÉE - PROCHE DE DINAN
MAISON 5 PIÈCES NEUVE
À vendre : localisée à 18 km de la Manche et à deux pas de Saint-Malo, nous sommes ravis de vous présenter cette maison de 5 pièces de 120 m² idéalement située dans Bobital (22100). Elle compte quatre chambres, une cuisine et deux salles de bains.
Le terrain de la propriété s'étend sur 365 m².
Cette maison possède 2 niveaux. Elle est neuve.
Cette propriété se trouve dans un secteur prisé. L'École Primaire Publique les Acacias est implantée à moins de 10 minutes à pied. Côté transports, il y a… Lire la suite
Bobital : maison T5 (120 m²) à vendre
IDÉALEMENT SITUÉE - PROCHE DE DINAN
MAISON 5 PIÈCES NEUVE
À vendre : localisée à 18 km de la Manche et à deux pas de Saint-Malo, nous sommes ravis de vous présenter cette maison de 5 pièces de 120 m² idéalement située dans Bobital (22100). Elle compte quatre chambres, une cuisine et deux salles de bains.
Le terrain de la propriété s'étend sur 365 m².
Cette maison possède 2 niveaux. Elle est neuve.
Cette propriété se trouve dans un secteur prisé. L'École Primaire Publique les Acacias est implantée à moins de 10 minutes à pied. Côté transports, il y a deux gares (Dinan et Corseul-Languenan) à moins de 10 minutes en voiture. On trouve un accès à la nationale N176 à 4 km. On trouve une bibliothèque et une boulangerie dans les environs.
Son prix de vente est de 305 850 €.
Prenez contact avec Laetitia AMIRI (tél : 02-99-83-07-20) pour toute information sur la maison ou sur les démarches à suivre.
Maisons de l’Avenir, constructeur de maisons individuelles, propose en collaboration avec ses partenaires fonciers, une sélection de terrains constructibles, selon disponibilité, pour la construction de maisons neuves définies par le constructeur, avec un contrat de construction de maison individuelle, dans le cadre de la loi du 19/12/1990. Prix net, hors frais notariés, d'enregistrement et de publicité foncière
Terrain proposé au prix de : 57 300 €
Maison proposée au prix de : 248 550 €
Etiquette énergie : A. Assurances et garanties du constructeur (RC professionnelle, décennale, dommage ouvrage, Garantie de livraison à prix et délai convenu). https://www.maisonsdelavenir.com/mentions-legales/
Localisation
Une maison 100% personnalisable
-
Garage
-
Agencement
-
Revêtements extérieurs
-
Toiture
-
Ouvertures
Nos garanties constructeur
UNE MAISON 100% PERSONNALISÉE
Définir un style architectural (contemporain, moderne, traditionnel) et un plan adapté à votre mode de vie pour mettre en lumière votre projet de construction, tel est notre quotidien !
SERVICE 3 EN 1
Nos conseillers habitat vous accompagnent tout au long de votre projet : Terrain – Maison - Financement, afin de garantir sa réussite et de satisfaire vos exigences !
DES ANNÉES D'EXPÉRIENCES
Depuis 1962, la marque Maisons de l’Avenir inspire confiance et sérénité, une si longue expérience dans la construction de maisons individuelles, c’est un vrai gage de qualité !















