Prix Maison + Terrain
- À partir de 480 500 €
Référence
- ASL2319627_4
Maison personnalisable
- Chambres : 5
- Nombre de pièces : 6
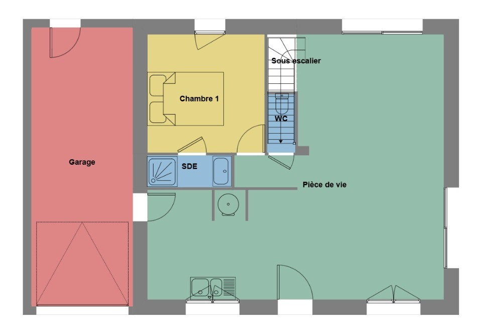
- Surface maison : 155 m²
- Surface terrain : 498 m²
- Garage/Carport
Performances énergétiques
- Classe énergétique : A
Description
Billiers : maison de 6 pièces (155 m²) en vente
MAISON 6 PIÈCES NEUVE - PROCHE DE VANNES
En vente : localisée à 2 km de la côte atlantique et à 25 km de Vannes, notre agence Maisons de l'Avenir Lorient est ravie de vous présenter cette maison de 6 pièces de 155 m² et de 498 m² de terrain à Billiers (56190). Elle se divise en cinq chambres, une cuisine et deux salles de bains.
C'est une maison de 2 niveaux.
Son prix de vente est de 480 500 €.
Contactez notre constructeur (Anne-Sophie LAPART : 02-97-21-63-96) pour toute information sur cette maison, sur les modalités de vente ou sur les démarches à suivre. Donnez vie à vos projets immobiliers avec Maisons de l'Avenir Lorient.
MAISON 6 PIÈCES NEUVE - PROCHE DE VANNES
En vente : localisée à 2 km de la côte atlantique et à 25 km de Vannes, notre agence Maisons de l'Avenir Lorient est ravie de vous présenter cette maison de 6 pièces de 155 m² et de 498 m² de terrain à Billiers (56190). Elle se divise en cinq chambres, une cuisine et deux salles de bains.
C'est une maison de 2 niveaux.
Son prix de vente est de 480 500 €.
Contactez notre constructeur (Anne-Sophie LAPART : 02-97-21-63-96) pour toute information sur cette maison, sur les… Lire la suite
Billiers : maison de 6 pièces (155 m²) en vente
MAISON 6 PIÈCES NEUVE - PROCHE DE VANNES
En vente : localisée à 2 km de la côte atlantique et à 25 km de Vannes, notre agence Maisons de l'Avenir Lorient est ravie de vous présenter cette maison de 6 pièces de 155 m² et de 498 m² de terrain à Billiers (56190). Elle se divise en cinq chambres, une cuisine et deux salles de bains.
C'est une maison de 2 niveaux.
Son prix de vente est de 480 500 €.
Contactez notre constructeur (Anne-Sophie LAPART : 02-97-21-63-96) pour toute information sur cette maison, sur les modalités de vente ou sur les démarches à suivre. Donnez vie à vos projets immobiliers avec Maisons de l'Avenir Lorient.
Maisons de l’Avenir, constructeur de maisons individuelles, propose en collaboration avec ses partenaires fonciers, une sélection de terrains constructibles, selon disponibilité, pour la construction de maisons neuves définies par le constructeur, avec un contrat de construction de maison individuelle, dans le cadre de la loi du 19/12/1990. Prix net, hors frais notariés, d'enregistrement et de publicité foncière
Terrain proposé au prix de : 124 500 €
Maison proposée au prix de : 356 000 €
Etiquette énergie : A. Assurances et garanties du constructeur (RC professionnelle, décennale, dommage ouvrage, Garantie de livraison à prix et délai convenu). https://www.maisonsdelavenir.com/mentions-legales/
Localisation
Une maison 100% personnalisable
-
Garage
-
Agencement
-
Revêtements extérieurs
-
Toiture
-
Ouvertures
Nos garanties constructeur
UNE MAISON 100% PERSONNALISÉE
Définir un style architectural (contemporain, moderne, traditionnel) et un plan adapté à votre mode de vie pour mettre en lumière votre projet de construction, tel est notre quotidien !
SERVICE 3 EN 1
Nos conseillers habitat vous accompagnent tout au long de votre projet : Terrain – Maison - Financement, afin de garantir sa réussite et de satisfaire vos exigences !
DES ANNÉES D'EXPÉRIENCES
Depuis 1962, la marque Maisons de l’Avenir inspire confiance et sérénité, une si longue expérience dans la construction de maisons individuelles, c’est un vrai gage de qualité !



















