Maison à construire de 75m² (3 chambres) sur un terrain de 360m² à Bénodet (29950)

2359469-6245modele620240822ZSH21.jpeg
Nous contacter
  • Prix Maison + Terrain

    • À partir de 350 000 €
  • Référence

    • MD2359443_3
  • Maison personnalisable

    • Chambres : 3
    • Nombre de pièces : 4
    • Surface maison : 75 m²
    • Surface terrain : 360 m²
    • Garage/Carport
  • Performances énergétiques

    • Classe énergétique : A

Description

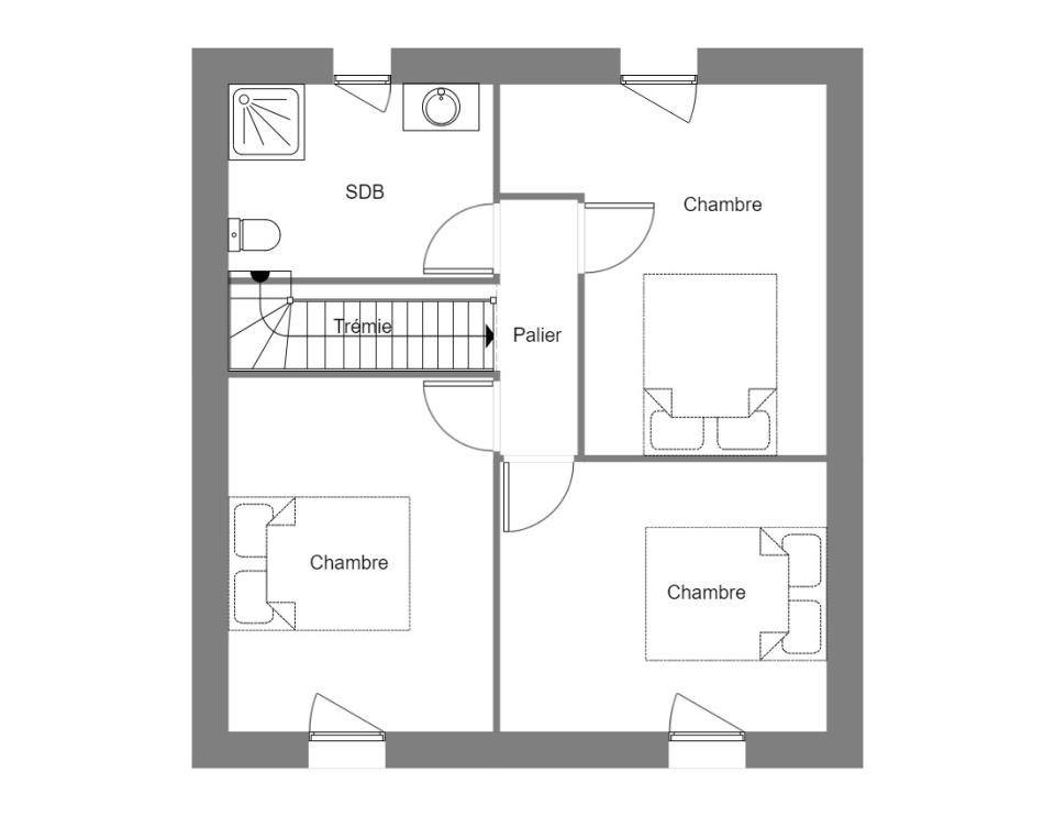
Bénodet : maison de 4 pièces (75 m²) en vente
MAISON 4 PIÈCES NEUVE - PROCHE DE QUIMPER
À vendre sur la côte atlantique et à deux pas de Quimper, Maisons de l'Avenir Pont-l'Abbé vous présente à Bénodet (29950), cette maison de 4 pièces de 75 m² et de 360 m² de terrain.
C'est une maison de 2 niveaux. Elle dispose de trois chambres, d'une cuisine et d'une salle de bains.
Elle est à vendre pour la somme de 350 000 €.
N'hésitez pas à prendre contact avec Mathieu DEROUET (tél : 02-98-87-34-21) pour toute question sur la propriété. Maisons de l'Avenir Pont-l'Abbé est là pour vous accompagner dans toutes vos démarches.

Masquer
Bénodet : maison de 4 pièces (75 m²) en vente
MAISON 4 PIÈCES NEUVE - PROCHE DE QUIMPER
À vendre sur la côte atlantique et à deux pas de Quimper, Maisons de l'Avenir Pont-l'Abbé vous présente à Bénodet (29950), cette maison de 4 pièces de 75 m² et de 360 m² de terrain.
C'est une maison de 2 niveaux. Elle dispose de trois chambres, d'une cuisine et d'une salle de bains.
Elle est à vendre pour la somme de 350 000 €.
N'hésitez pas à prendre contact avec Mathieu DEROUET (tél : 02-98-87-34-21) pour toute question sur la propriété. Maisons de l'Avenir Pont-l'Abbé est là pour… Lire la suite

Bénodet : maison de 4 pièces (75 m²) en vente
MAISON 4 PIÈCES NEUVE - PROCHE DE QUIMPER
À vendre sur la côte atlantique et à deux pas de Quimper, Maisons de l'Avenir Pont-l'Abbé vous présente à Bénodet (29950), cette maison de 4 pièces de 75 m² et de 360 m² de terrain.
C'est une maison de 2 niveaux. Elle dispose de trois chambres, d'une cuisine et d'une salle de bains.
Elle est à vendre pour la somme de 350 000 €.
N'hésitez pas à prendre contact avec Mathieu DEROUET (tél : 02-98-87-34-21) pour toute question sur la propriété. Maisons de l'Avenir Pont-l'Abbé est là pour vous accompagner dans toutes vos démarches.

Localisation

Une maison 100% personnalisable

  • Garage

  • Agencement

  • Revêtements extérieurs

  • Toiture

  • Ouvertures

Nos garanties constructeur

UNE MAISON 100% PERSONNALISÉE

Définir un style architectural (contemporain, moderne, traditionnel) et un plan adapté à votre mode de vie pour mettre en lumière votre projet de construction, tel est notre quotidien !

SERVICE 3 EN 1

Nos conseillers habitat vous accompagnent tout au long de votre projet : Terrain – Maison - Financement, afin de garantir sa réussite et de satisfaire vos exigences !

DES ANNÉES D'EXPÉRIENCES

Depuis 1962, la marque Maisons de l’Avenir inspire confiance et sérénité, une si longue expérience dans la construction de maisons individuelles, c’est un vrai gage de qualité !