Prix Maison + Terrain
- À partir de 375 000 €
Référence
- CC2364030_2
Maison personnalisable
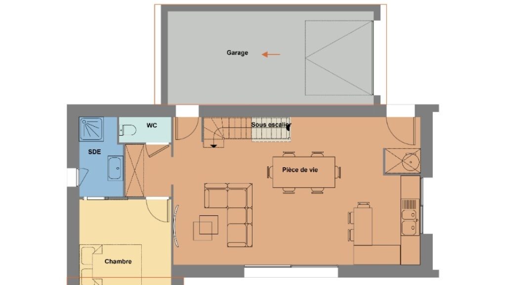
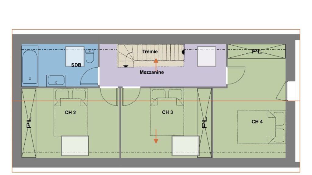
- Chambres : 4
- Nombre de pièces : 5
- Surface maison : 91 m²
- Surface terrain : 354 m²
- Garage/Carport
Performances énergétiques
- Classe énergétique : A
Description
VENTE d'une maison de 5 pièces (91 m²) à Belz
QUARTIER RECHERCHÉ - MAISON 5 PIÈCES NEUVE
À vendre : localisée sur le littoral atlantique et à 18 km de Lorient, nous vous proposons, située dans un secteur prisé de Belz (56550), cette maison de 5 pièces de 91 m².
Il s'agit d'une maison de 2 niveaux. Elle se divise en quatre chambres, une cuisine et deux salles de bains. La maison est neuve.
Le terrain de la propriété est de 354 m².
La maison est située dans un quartier convoité. L'École Primaire Privée Saint Jean et l'École Primaire Publique Per Jakez Hélias sont implantées à moins de 10 minutes à pied. Côté transports en commun, il y a quatre gares à moins de 10 minutes en voiture. La nationale N165 est accessible à 9 km. On trouve une bibliothèque, un tennis, des commerces, deux boulangeries, une épicerie, un bureau de poste et une boucherie-charcuterie à quelques minutes à peine.
Elle est proposée à l'achat pour 375 000 €.
Prenez contact avec notre agence (Christophe COLLOCH : 02-97-21-63-96) pour toute information sur la propriété.
QUARTIER RECHERCHÉ - MAISON 5 PIÈCES NEUVE
À vendre : localisée sur le littoral atlantique et à 18 km de Lorient, nous vous proposons, située dans un secteur prisé de Belz (56550), cette maison de 5 pièces de 91 m².
Il s'agit d'une maison de 2 niveaux. Elle se divise en quatre chambres, une cuisine et deux salles de bains. La maison est neuve.
Le terrain de la propriété est de 354 m².
La maison est située dans un quartier convoité. L'École Primaire Privée Saint Jean et l'École Primaire Publique Per Jakez Hélias sont implantées à moins… Lire la suite
VENTE d'une maison de 5 pièces (91 m²) à Belz
QUARTIER RECHERCHÉ - MAISON 5 PIÈCES NEUVE
À vendre : localisée sur le littoral atlantique et à 18 km de Lorient, nous vous proposons, située dans un secteur prisé de Belz (56550), cette maison de 5 pièces de 91 m².
Il s'agit d'une maison de 2 niveaux. Elle se divise en quatre chambres, une cuisine et deux salles de bains. La maison est neuve.
Le terrain de la propriété est de 354 m².
La maison est située dans un quartier convoité. L'École Primaire Privée Saint Jean et l'École Primaire Publique Per Jakez Hélias sont implantées à moins de 10 minutes à pied. Côté transports en commun, il y a quatre gares à moins de 10 minutes en voiture. La nationale N165 est accessible à 9 km. On trouve une bibliothèque, un tennis, des commerces, deux boulangeries, une épicerie, un bureau de poste et une boucherie-charcuterie à quelques minutes à peine.
Elle est proposée à l'achat pour 375 000 €.
Prenez contact avec notre agence (Christophe COLLOCH : 02-97-21-63-96) pour toute information sur la propriété.
Maisons de l’Avenir, constructeur de maisons individuelles, propose en collaboration avec ses partenaires fonciers, une sélection de terrains constructibles, selon disponibilité, pour la construction de maisons neuves définies par le constructeur, avec un contrat de construction de maison individuelle, dans le cadre de la loi du 19/12/1990. Prix net, hors frais notariés, d'enregistrement et de publicité foncière
Terrain proposé au prix de : 125 000 €
Maison proposée au prix de : 250 000 €
Etiquette énergie : A. Assurances et garanties du constructeur (RC professionnelle, décennale, dommage ouvrage, Garantie de livraison à prix et délai convenu). https://www.maisonsdelavenir.com/mentions-legales/
Localisation
Une maison 100% personnalisable
-
Garage
-
Agencement
-
Revêtements extérieurs
-
Toiture
-
Ouvertures
Nos garanties constructeur
UNE MAISON 100% PERSONNALISÉE
Définir un style architectural (contemporain, moderne, traditionnel) et un plan adapté à votre mode de vie pour mettre en lumière votre projet de construction, tel est notre quotidien !
SERVICE 3 EN 1
Nos conseillers habitat vous accompagnent tout au long de votre projet : Terrain – Maison - Financement, afin de garantir sa réussite et de satisfaire vos exigences !
DES ANNÉES D'EXPÉRIENCES
Depuis 1962, la marque Maisons de l’Avenir inspire confiance et sérénité, une si longue expérience dans la construction de maisons individuelles, c’est un vrai gage de qualité !



















