Prix Maison + Terrain
- À partir de 519 000 €
Référence
- CC2322697_1
Maison personnalisable
- Chambres : 4
- Nombre de pièces : 5
- Surface maison : 140 m²
- Surface terrain : 500 m²
- Garage/Carport
Performances énergétiques
- Classe énergétique : A
Description
VENTE d'une maison de 5 pièces (140 m²) à Belz
IDÉALEMENT SITUÉE - MAISON 5 PIÈCES NEUVE
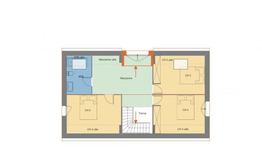
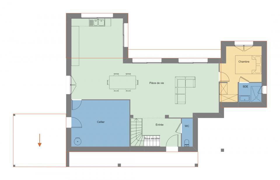
En vente à 6 km de l'océan Atlantique et à 18 km de Lorient, Maisons de l'Avenir Lorient vous propose cette maison de 5 pièces de 140 m² et de 500 m² de terrain idéalement située dans Belz (56550). Son intérieur se divise en quatre chambres, une cuisine et deux salles de bains.
Cette maison compte 2 niveaux. Elle est neuve.
La maison se situe dans un secteur convoité. On trouve l'École Primaire Privée Saint Jean et l'École Primaire Publique Per Jakez Hélias à moins de 10 minutes à pied. Niveau transports, il y a quatre gares à moins de 10 minutes en voiture. La nationale N165 est accessible à 9 km. On trouve une bibliothèque, un tennis, des commerces, deux boulangeries, une épicerie, une boucherie-charcuterie et un bureau de poste à quelques minutes de la maison.
Elle est proposée à l'achat pour 519 000 €.
Contactez notre agence (Christophe COLLOCH : 02-97-21-63-96) pour tout renseignement sur la maison, sur les démarches à suivre ou sur les modalités de vente. Maisons de l'Avenir Lorient est là pour vous accompagner dans tous vos projets immobiliers.
IDÉALEMENT SITUÉE - MAISON 5 PIÈCES NEUVE
En vente à 6 km de l'océan Atlantique et à 18 km de Lorient, Maisons de l'Avenir Lorient vous propose cette maison de 5 pièces de 140 m² et de 500 m² de terrain idéalement située dans Belz (56550). Son intérieur se divise en quatre chambres, une cuisine et deux salles de bains.
Cette maison compte 2 niveaux. Elle est neuve.
La maison se situe dans un secteur convoité. On trouve l'École Primaire Privée Saint Jean et l'École Primaire Publique Per Jakez Hélias à moins de 10 minutes à… Lire la suite
VENTE d'une maison de 5 pièces (140 m²) à Belz
IDÉALEMENT SITUÉE - MAISON 5 PIÈCES NEUVE
En vente à 6 km de l'océan Atlantique et à 18 km de Lorient, Maisons de l'Avenir Lorient vous propose cette maison de 5 pièces de 140 m² et de 500 m² de terrain idéalement située dans Belz (56550). Son intérieur se divise en quatre chambres, une cuisine et deux salles de bains.
Cette maison compte 2 niveaux. Elle est neuve.
La maison se situe dans un secteur convoité. On trouve l'École Primaire Privée Saint Jean et l'École Primaire Publique Per Jakez Hélias à moins de 10 minutes à pied. Niveau transports, il y a quatre gares à moins de 10 minutes en voiture. La nationale N165 est accessible à 9 km. On trouve une bibliothèque, un tennis, des commerces, deux boulangeries, une épicerie, une boucherie-charcuterie et un bureau de poste à quelques minutes de la maison.
Elle est proposée à l'achat pour 519 000 €.
Contactez notre agence (Christophe COLLOCH : 02-97-21-63-96) pour tout renseignement sur la maison, sur les démarches à suivre ou sur les modalités de vente. Maisons de l'Avenir Lorient est là pour vous accompagner dans tous vos projets immobiliers.
Maisons de l’Avenir, constructeur de maisons individuelles, propose en collaboration avec ses partenaires fonciers, une sélection de terrains constructibles, selon disponibilité, pour la construction de maisons neuves définies par le constructeur, avec un contrat de construction de maison individuelle, dans le cadre de la loi du 19/12/1990. Prix net, hors frais notariés, d'enregistrement et de publicité foncière
Terrain proposé au prix de : 176 500 €
Maison proposée au prix de : 342 500 €
Etiquette énergie : A. Assurances et garanties du constructeur (RC professionnelle, décennale, dommage ouvrage, Garantie de livraison à prix et délai convenu). https://www.maisonsdelavenir.com/mentions-legales/
Localisation
Une maison 100% personnalisable
-
Garage
-
Agencement
-
Revêtements extérieurs
-
Toiture
-
Ouvertures
Nos garanties constructeur
UNE MAISON 100% PERSONNALISÉE
Définir un style architectural (contemporain, moderne, traditionnel) et un plan adapté à votre mode de vie pour mettre en lumière votre projet de construction, tel est notre quotidien !
SERVICE 3 EN 1
Nos conseillers habitat vous accompagnent tout au long de votre projet : Terrain – Maison - Financement, afin de garantir sa réussite et de satisfaire vos exigences !
DES ANNÉES D'EXPÉRIENCES
Depuis 1962, la marque Maisons de l’Avenir inspire confiance et sérénité, une si longue expérience dans la construction de maisons individuelles, c’est un vrai gage de qualité !















