Prix Maison + Terrain
- À partir de 326 000 €
Référence
- CC2363914_5
Maison personnalisable
- Chambres : 3
- Nombre de pièces : 4
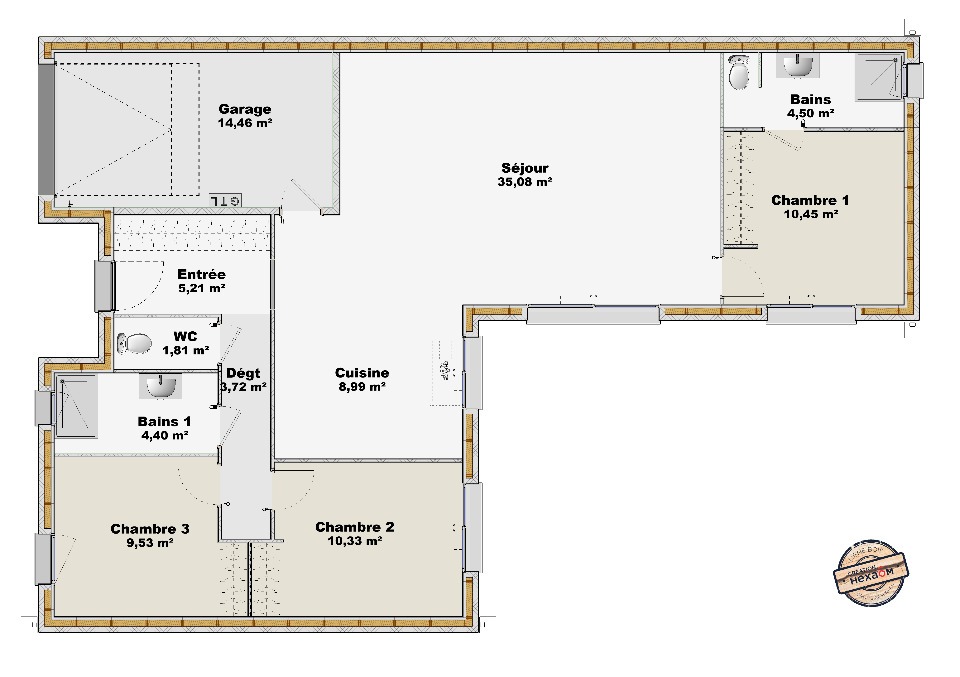
- Surface maison : 94 m²
- Surface terrain : 390 m²
- Garage/Carport
Performances énergétiques
- Classe énergétique : A
Description
VENTE d'une maison T4 (94 m²) à Baye
QUARTIER RECHERCHÉ - MAISON 4 PIÈCES NEUVE
À vendre : à 9 km de l'océan Atlantique et à quelques kilomètres de Lorient, nous vous présentons, située dans un quartier recherché de Baye (29300), cette maison de 4 pièces de plain-pied de 94 m².
Conçue de plain-pied, elle offre trois chambres, une cuisine et deux salles de bains. La maison est neuve.
Le terrain de la propriété s'étend sur 390 m².
La maison se trouve dans un secteur prisé. Il y a l'École Primaire Publique de Baye à moins de 10 minutes à pied. Côté transports, on trouve la gare Quimperlé à moins de 10 minutes en voiture. La nationale N165 est accessible à 2 km. Il y a une bibliothèque, une boulangerie, un commerce et une boucherie-charcuterie dans les environs.
Son prix de vente est de 326 000 €.
Contactez Christophe COLLOCH (tél : 02-97-21-63-96) pour plus de renseignements sur la maison.
QUARTIER RECHERCHÉ - MAISON 4 PIÈCES NEUVE
À vendre : à 9 km de l'océan Atlantique et à quelques kilomètres de Lorient, nous vous présentons, située dans un quartier recherché de Baye (29300), cette maison de 4 pièces de plain-pied de 94 m².
Conçue de plain-pied, elle offre trois chambres, une cuisine et deux salles de bains. La maison est neuve.
Le terrain de la propriété s'étend sur 390 m².
La maison se trouve dans un secteur prisé. Il y a l'École Primaire Publique de Baye à moins de 10 minutes à pied. Côté transports, on trouve la gare… Lire la suite
VENTE d'une maison T4 (94 m²) à Baye
QUARTIER RECHERCHÉ - MAISON 4 PIÈCES NEUVE
À vendre : à 9 km de l'océan Atlantique et à quelques kilomètres de Lorient, nous vous présentons, située dans un quartier recherché de Baye (29300), cette maison de 4 pièces de plain-pied de 94 m².
Conçue de plain-pied, elle offre trois chambres, une cuisine et deux salles de bains. La maison est neuve.
Le terrain de la propriété s'étend sur 390 m².
La maison se trouve dans un secteur prisé. Il y a l'École Primaire Publique de Baye à moins de 10 minutes à pied. Côté transports, on trouve la gare Quimperlé à moins de 10 minutes en voiture. La nationale N165 est accessible à 2 km. Il y a une bibliothèque, une boulangerie, un commerce et une boucherie-charcuterie dans les environs.
Son prix de vente est de 326 000 €.
Contactez Christophe COLLOCH (tél : 02-97-21-63-96) pour plus de renseignements sur la maison.
Maisons de l’Avenir, constructeur de maisons individuelles, propose en collaboration avec ses partenaires fonciers, une sélection de terrains constructibles, selon disponibilité, pour la construction de maisons neuves définies par le constructeur, avec un contrat de construction de maison individuelle, dans le cadre de la loi du 19/12/1990. Prix net, hors frais notariés, d'enregistrement et de publicité foncière
Terrain proposé au prix de : 66 000 €
Maison proposée au prix de : 260 000 €
Etiquette énergie : A. Assurances et garanties du constructeur (RC professionnelle, décennale, dommage ouvrage, Garantie de livraison à prix et délai convenu). https://www.maisonsdelavenir.com/mentions-legales/
Localisation
Une maison 100% personnalisable
-
Garage
-
Agencement
-
Revêtements extérieurs
-
Toiture
-
Ouvertures
Nos garanties constructeur
UNE MAISON 100% PERSONNALISÉE
Définir un style architectural (contemporain, moderne, traditionnel) et un plan adapté à votre mode de vie pour mettre en lumière votre projet de construction, tel est notre quotidien !
SERVICE 3 EN 1
Nos conseillers habitat vous accompagnent tout au long de votre projet : Terrain – Maison - Financement, afin de garantir sa réussite et de satisfaire vos exigences !
DES ANNÉES D'EXPÉRIENCES
Depuis 1962, la marque Maisons de l’Avenir inspire confiance et sérénité, une si longue expérience dans la construction de maisons individuelles, c’est un vrai gage de qualité !







