Prix Maison + Terrain
- À partir de 383 000 €
Référence
- DM2363398_4
Maison personnalisable
- Chambres : 4
- Nombre de pièces : 5
- Surface maison : 145 m²
- Surface terrain : 479 m²
- Garage/Carport
Performances énergétiques
- Classe énergétique : A
Description
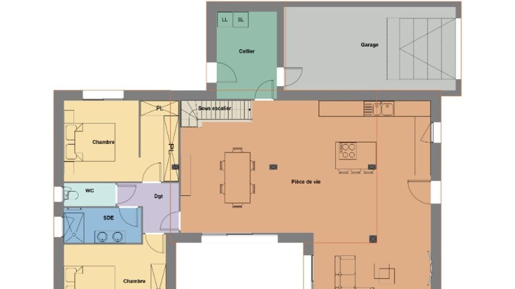
Maison F5 (145 m²) à vendre à Baulon
IDÉALEMENT SITUÉE - MAISON 5 PIÈCES NEUVE
À deux pas de Rennes, nous vous présentons cette maison de 5 pièces de 145 m² en vente idéalement située dans Baulon (35580). Elle est composée de quatre chambres, d'une cuisine et de deux salles de bains.
Le terrain du bien s'étend sur 479 m².
Cette maison compte 2 niveaux. Elle est neuve.
La maison est située dans un quartier prisé. Il y a l'École Primaire Privée Ste Marie et l'École Primaire Publique les Lucioles à moins de 10 minutes à pied. La nationale N24 est accessible à 7 km. On trouve un tennis, un commerce, une boulangerie et une épicerie dans les environs.
Elle est à vendre pour la somme de 383 000 €.
Prenez contact avec notre agence (Dimitri MESAS : 02-99-83-07-20) pour toute question sur la maison. Maisons de l'Avenir Cesson-Sévigné vous accompagne dans tous vos projets immobiliers et dans toutes vos démarches.
IDÉALEMENT SITUÉE - MAISON 5 PIÈCES NEUVE
À deux pas de Rennes, nous vous présentons cette maison de 5 pièces de 145 m² en vente idéalement située dans Baulon (35580). Elle est composée de quatre chambres, d'une cuisine et de deux salles de bains.
Le terrain du bien s'étend sur 479 m².
Cette maison compte 2 niveaux. Elle est neuve.
La maison est située dans un quartier prisé. Il y a l'École Primaire Privée Ste Marie et l'École Primaire Publique les Lucioles à moins de 10 minutes à pied. La nationale N24 est accessible à 7 km. On trouve… Lire la suite
Maison F5 (145 m²) à vendre à Baulon
IDÉALEMENT SITUÉE - MAISON 5 PIÈCES NEUVE
À deux pas de Rennes, nous vous présentons cette maison de 5 pièces de 145 m² en vente idéalement située dans Baulon (35580). Elle est composée de quatre chambres, d'une cuisine et de deux salles de bains.
Le terrain du bien s'étend sur 479 m².
Cette maison compte 2 niveaux. Elle est neuve.
La maison est située dans un quartier prisé. Il y a l'École Primaire Privée Ste Marie et l'École Primaire Publique les Lucioles à moins de 10 minutes à pied. La nationale N24 est accessible à 7 km. On trouve un tennis, un commerce, une boulangerie et une épicerie dans les environs.
Elle est à vendre pour la somme de 383 000 €.
Prenez contact avec notre agence (Dimitri MESAS : 02-99-83-07-20) pour toute question sur la maison. Maisons de l'Avenir Cesson-Sévigné vous accompagne dans tous vos projets immobiliers et dans toutes vos démarches.
Maisons de l’Avenir, constructeur de maisons individuelles, propose en collaboration avec ses partenaires fonciers, une sélection de terrains constructibles, selon disponibilité, pour la construction de maisons neuves définies par le constructeur, avec un contrat de construction de maison individuelle, dans le cadre de la loi du 19/12/1990. Prix net, hors frais notariés, d'enregistrement et de publicité foncière
Terrain proposé au prix de : 69 000 €
Maison proposée au prix de : 314 000 €
Etiquette énergie : A. Assurances et garanties du constructeur (RC professionnelle, décennale, dommage ouvrage, Garantie de livraison à prix et délai convenu). https://www.maisonsdelavenir.com/mentions-legales/
Localisation
Une maison 100% personnalisable
-
Garage
-
Agencement
-
Revêtements extérieurs
-
Toiture
-
Ouvertures
Nos garanties constructeur
UNE MAISON 100% PERSONNALISÉE
Définir un style architectural (contemporain, moderne, traditionnel) et un plan adapté à votre mode de vie pour mettre en lumière votre projet de construction, tel est notre quotidien !
SERVICE 3 EN 1
Nos conseillers habitat vous accompagnent tout au long de votre projet : Terrain – Maison - Financement, afin de garantir sa réussite et de satisfaire vos exigences !
DES ANNÉES D'EXPÉRIENCES
Depuis 1962, la marque Maisons de l’Avenir inspire confiance et sérénité, une si longue expérience dans la construction de maisons individuelles, c’est un vrai gage de qualité !

















