Les travaux d’agrandissement de cette maison à Orvault visaient à augmenter la surface habitable en créant une buanderie et un salon ouvert sur une terrasse exposée au Sud.
Les travaux d’agrandissement de cette maison ont été réalisés par l’équipe Maisons de l’Avenir Extension Rénovation de Loire-Atlantique. Cette maison se trouve sur la commune d’Orvault située au Nord de Nantes. Les propriétaires, un couple avec enfants, désiraient augmenter la surface habitable en créant une buanderie et un salon ouvert sur une terrasse exposée au Sud. Une extension de 28m² a été créée. Désirer agrandir sa maison est un projet important, qui peut être source d’inquiétudes. En choisissant l’offre Extension Rénovation de Maisons de l’avenir, vous vous épargnez toutes les tâches de conception, de chiffrage, de dépôt du permis de construire… A partir de vos demandes, nous prenons en charge l’ensemble de votre projet d’agrandissement de A à Z. Nous sélectionnons les entreprises et nous assurons la réalisation des travaux ainsi que le suivi de chantier jusqu’à la réception de travaux.
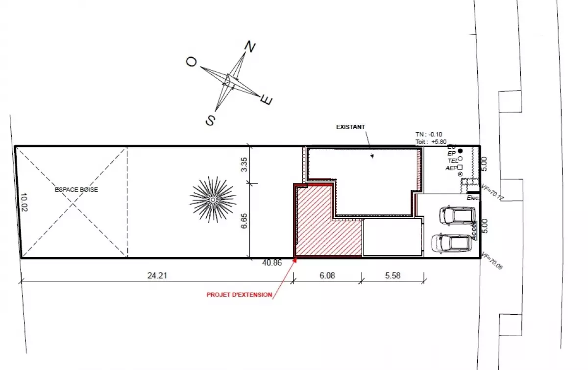
Travaux d’agrandissement d’une maison à étage de 81m²
Cette maison à étage de 81m² a été construite en 2014 par Maisons de l’avenir. Elle comprend à l’étage 3 chambres, une salle de bain, et au rez-de-chaussée une chambre avec salle d’eau et un séjour avec cuisine ouverte. Un garage accolé à la maison communique avec le hall d’entrée et donne accès au jardin situé derrière la maison. Les propriétaires de cette maison désiraient agrandir leur habitation en créant une pièce de vie donnant accès à la terrasse. Pour faciliter la vie de famille au quotidien ils souhaitaient également aménager une buanderie accessible depuis le garage. Du garage un couloir a été également prévu pour donner directement accès au jardin.
Extension maison avant après

Un chantier d’extension avec signature d’un contrat de marché de travaux
Ce chantier d’agrandissement a fait l’objet d’une signature d’un contrat de marché de travaux. Ce contrat d'entreprise (définit par l'article 1710 du Code civil) permet de définir la nature des travaux à réaliser. Ce projet d’extension de maison respecte les contraintes du Plan Local d’Urbanisme - PLU - de la commune. Il a fait l’objet d’un dépôt de permis de construire ; Maisons de l’avenir s’est chargé des démarches administratives. Particularité de ce projet, la maison et le garage occupant toute la largeur de la parcelle, il a fallu organiser l’accès à la partie arrière de la maison pour les travaux de terrassement et d’acheminement des matériaux. Nous avons organisé le chantier pour pouvoir accéder au jardin sans avoir à traverser les pièces habitées de la maison. L’équipe de Maisons de l’Avenir Extension Rénovation s’est chargée d’établir avec la mairie les conditions d’accès au site pour les engins de terrassement et la toupie. Une demande a été faite pour créer un accès provisoire, pour la durée des travaux d’extension. Toutes les mesures ont été prises afin de parfaitement respecter le site.
Chantier extension d’une maison individuelle - Détail des travaux
Pour réaliser ce chantier d’agrandissement, plusieurs corps de métiers du bâtiment sont intervenus: maçon, charpentier, peintre, plombier, chauffagiste, électricien, plâtrier, carreleur. En confiant votre projet d’agrandissement à Maison de l’avenir, nous vous assurons un projet d’extension clé en main, avec une prise en charge complète : conception, chiffrage, dépôt du permis de construire, sélection des entreprises, maîtrise d’œuvre, réalisation des travaux et suivi du chantier jusqu’à la réception de chantier.
Voici les différents travaux réalisés pour ce chantier :TRAVAUX DE TERRASSEMENT
- Décapage de la terre végétale et terrassement à l’emplacement de l’extension
- Évacuation des terres excédentaires
GROS ŒUVRE
- Mise en œuvre de fondations en béton armé
- Soubassement en parpaings creux étanchés
- Dalle en béton armé
- Reprise du réseau des eaux pluviales sur le réseau existant
- Mise en œuvre de seuils béton
- Pose d’un coffre et d’un volet roulant électrique
CHARPENTE - COUVERTURE
- Charpente traditionnelle en sapin
- Complexe de toiture composé d’une étanchéité monocouche PVC sur panneau CTBH avec isolant 80mm
- Couvertines boite à eaux et descentes en alu
- Reprise de la gouttière et de la toiture existants
- Modification des évacuations des eaux pluviales de l’existant, collectées à l’emplacement de l’extension
RAVALEMENT
- Mise en œuvre de joints de dilatation entre l’extension et la partie existante de la maison
MENUISERIES EXTÉRIEURES
- Mise en œuvre d’un enduit monocouche finition grattée
- Démontage des menuiseries existantes donnant sur l’extension
- Pose de menuiseries PVC et ALU
- Pose de volets roulant dans coffre tunnel
- Pose d’une baie coulissante 3 vantaux 3 rails, en alu
- Pose d’une porte fenêtre PVC avec serrure et vitrage Securit
ELECTRICITE
- Réalisation d’une installation conforme à la norme NFC 15100
- Raccordement du tableau électrique de l’extension sur le tableau de l’existant
PLAQUISTERIE – ISOLATION
- Réalisation plafond en panneaux plaque de plâtre type BA13, vissés sur ossature métallique, fixée sous la charpente avec pose de laine de verre 200mm
- Doublage en placo styl des murs extérieurs, constitués d’isolant de 120mm et plaque de plâtre 13mmMise en œuvre d’une cloison isolante entre le salon et la buanderie (BA 13 Hydro)
- Reprise du placo suite au démontage des menuiseries existantes
CHAUFFAGE
- Pose d’un chauffage électrique dans le nouveau salon
- Déplacement de l’unité extérieur de la pompe à chaleur
PLOMBERIE SANITAIRE
- Création d’une alimentation eau chaude/eau froide et d’une évacuation des eaux usées pour le lave-linge de la buanderie
- Déplacement de l’unité extérieur de la pompe à chaleur existante
