Cette
maison en porte à faux a été construite à Loctudy, dans le Finistère Sud par
Maisons de l’avenir pour un jeune couple de retraités. Mr et Mme N. précédemment installés à Rennes, ont décidé de venir s’installer dans le
Finistère, en
Pays Bigouden pour leur retraite. Leur demande portait sur la construction d’une maison 4 chambres. Ils ont choisi d’opter pour une
maison bioclimatique Bâti Activ. Le challenge de ce projet consistait à
construire une maison passive, malgré le risque de ponts thermiques, lié à la construction en porte à faux. Le résultat, est une maison en structure béton, bénéficiant d’un niveau de performance énergétique supérieur à celui de la
RE 2020, et présentant l’originalité d’une maison personnalisée, jouant avec des volumes en porte à faux.
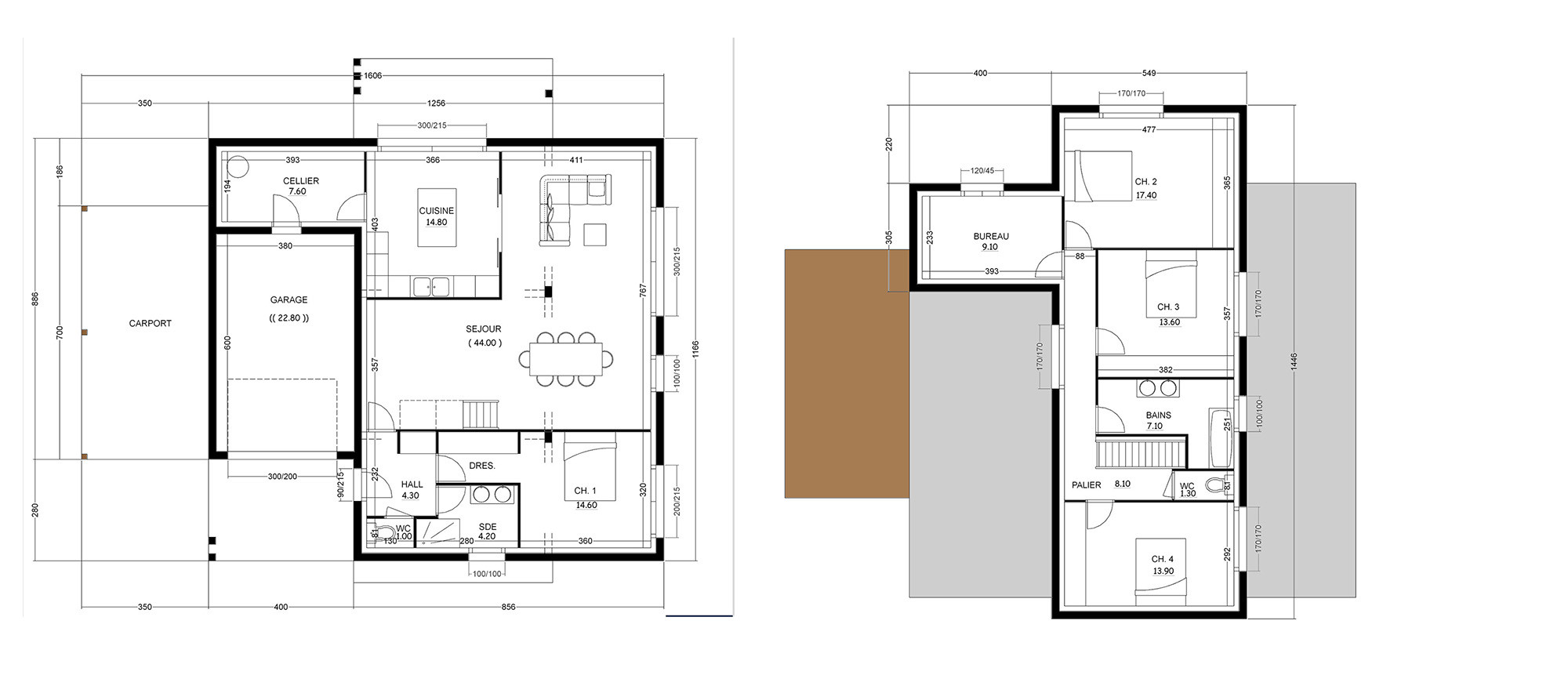
Un plan de maison 4 chambres avec suite parentale
La
maison en porte à faux de M et Mme N. a été construite sur un terrain situé dans le quartier du Cosquer à
Loctudy (entre Loctudy et Lesconil). La maison neuve se trouve à 200m de la mer et des plages, et bénéficie d’une vue mer à l’étage. Cette
maison 4 chambres avec suite parentale au rez-de-chaussée, possède une surface habitable de 161 m². Un garage accolé de 22.80 m² communique avec un grand cellier. Du cellier on accède à une cuisine semi-fermée. Une porte vitrée à double galandage donne un accès direct au salon – salle à manger, par une ouverture de 1.5 mètre de large. La double porte à galandage s’efface entièrement dans le mur. Sa discrétion est totale puisque les rails de manœuvre sont intégrés dans le mur de façon invisible. Il est ainsi possible de profiter des avantages d’une cuisine fermée ou ouverte. La cuisine possède un accès extérieur vers la terrasse protégée par une avancée en porte à faux, qui permet de profiter de repas en extérieur, à l’abri du soleil ou de la pluie. Le séjour, exposé au sud, possède également un accès direct à une large terrasse extérieure. La suite parentale exposée au sud profite d’un bel ensoleillement. Elle possède son propre dressing et sa salle d’eau. Trois chambres situées à l’étage permettent à M et Mme N. de recevoir enfants et petits-enfants.

Une maison sur mesure, construction traditionnelle par Maisons de l’avenir
Maisons de l’Avenir vous propose de construire une
maison traditionnelle personnalisée, conçue selon vos attentes. Construire une maison traditionnelle avec Maisons de l’avenir, c’est la garantie d’un projet répondant à vos attentes, le respect de modes de construction traditionnels éprouvés, le soin apporté au choix des matériaux de construction, une parfaite intégration de votre habitation dans son environnement et la qualité de réalisation et de finition digne de notre savoir-faire. Pour concevoir cette
maison en porte à faux, nous sommes partis d’une page blanche, pour créer l’ensemble du projet à partir de vos attentes. Nos conseillers habitat et notre bureau d’études prennent en compte vos goûts esthétiques, la localisation et les caractéristiques de votre terrain, vos souhaits en matière de fonctionnalité et votre budget de construction.
La construction en porte à faux d’une maison individuelle
On parle de
construction en porte à faux lorsque qu’une partie de la construction est en surplomb. Dans le cas de cette maison à Loctudy, la chambre 2 située à l’Est de la maison, dépasse pour venir couvrir la terrasse accessible depuis la cuisine. Cette architecture en porte à faux permet de créer des volumes originaux, apportant un design moderne à la maison. L’ombre apporté par ce porte-à -faux au-dessus du vide, protège la terrasse et permet de profiter de repas en extérieur en tout confort.

Maisons de l’avenir – Le savoir-faire d’un constructeur CCMI
Maisons de l’Avenir
constructeur de maisons individuelles en Bretagne et Loire Atlantique, vous conseille et vous accompagne dans la mise en forme de votre projet de construction, depuis la mise en relation avec les partenaires fonciers pour l’achat du terrain, jusqu’à l’exécution des travaux de construction, en passant par la conception des plans. Grâce au
contrat de construction CCMI, nous réalisons votre projet de construction d’une maison neuve en bénéficiant de multiples garanties : assurances liées à la qualité de réalisation du chantier, respect des tarifs et de la date de livraison… tout en bénéficiant d’un interlocuteur unique pour toute la durée du chantier de construction. L’ouverture du chantier de construction de cette maison individuelle en porte à faux à Loctudy a eu lieu fin Novembre 2020, pour une livraison de la maison en décembre 2021. Ce
délai de construction d’un an a été tenu, ce qui constitue une prouesse étant donné tous les aléas rencontrés pendant cette période: confinement lié au Covid, difficultés d'approvisionnement en matériaux de construction...