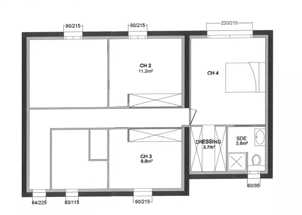
La demande des propriétaires portait sur la création d’une suite parentale dans l’extension, avec une chambre bénéficiant d’une exposition au Sud, d'un dressing et d'une salle d’eau.
Agrandir sa maison par le haut avec une surélévation au-dessus du garage
Pour agrandir sa maison les deux principales solutions sont l’extension horizontale et l’extension verticale. L’extension horizontale consiste à créer des mètres carrés de plain-pied supplémentaire dans le prolongement du bâti existant. L’extension verticale ou surélévation de maison, va permettre d’ajouter des mètres carrés à l’étage en rehaussant le toit. La surélévation peut être totale et concerner l’ensemble de la maison, ou partielle quand la création de surface habitable supplémentaire ne concerne qu’une partie de la maison, comme le garage dans le cas de cette maison de Préfailles.Projet surélévation maison avant après
Les avantage d’une extension ossature bois par le haut
Ce chantier de surélévation d’une maison mitoyenne grâce à une extension ossature bois, est révélateur de tous les avantages d’une extension bois : une solution d’agrandissement personnalisable, un matériau écologique doté d’une excellente performance énergétique et un chantier d’extension d’une durée réduite. Ceci est possible car la structure en bois et la charpente de ce projet ont été assemblées en atelier, avant d’être livrées sur le chantier prêtes à être montée. Cette durée limitée d’un chantier d’extension en ossature bois permet ainsi d’optimiser le coût des travaux. Pour ce chantier de surélévation ossature bois le coût des travaux au m² est d’environ 3300€. Pendant les travaux d’agrandissement, la gêne occasionnée pour les occupants a été minime puisque les travaux n’empiétaient pas sur l’espace de vie de la maison. D’autre part la gêne occasionnée par ce chantier d’extension est limitée dans le temps puisque l’ensemble des travaux sont prévus pour être réalisés en 6 mois. La surélévation d’une maison individuelle est une technique d’extension particulièrement intéressante dans le cas d’une habitation située en milieu urbain, où l’on ne dispose pas forcément d’un terrain suffisant pour une extension horizontale. Dans le cas de cette maison mitoyenne, le fait de rehausser un garage a permis de gagner de la surface habitable alors que la surface disponible au sol était limitée. Agrandir sa maison en créant de la surface habitable c’est également une solution intéressante pour valoriser son bien immobilier. Dans le cas de cette maison c’est également une façon de réaménager son intérieur. Cette maison disposait à l’origine de 3 chambres. Avec la création de cette suite parentale les propriétaires vont profiter d’un grand espace confortable, avec une chambre de plus de 15m² exposée au Sud. Une des trois de l’existant pouvant ainsi être réaménagée en chambre d’appoint ou en bureau.Détail des travaux d’extension réalisés par l’équipe Extension Rénovation de Maisons de l’avenir
Ce chantier d’extension a fait l’objet d’une signature d’un contrat de marché de travaux. Ce contrat d'entreprise, définit par l'article 1710 du Code civil, permet de définir la nature des travaux à réaliser. Voici les différents travaux réalisés pour ce chantier de surélévation d’un garage avec création d’une suite parentale :Travaux de gros œuvre charpente
- • Dépose de la toiture et de la charpente existante.
- • Création d’une charpente traditionnelle en sapin, pose des éléments d’extension (murs ossature bois) et création d’un plancher
Travaux de couverture
- • Travaux de couverture avec fourniture et pose d’ardoises naturelles
- • Mise en œuvre de gouttières et descentes en zinc quartz
- • Fourniture et pose d’un bardage zinc couleur Quartz en façade avant et façade arrière de la surélévation
Menuiseries extérieures et intérieures
- • Pose de menuiseries extérieures en aluminium : 1 porte fenêtre coulissante 2 vantaux dans la chambre + 1 fenêtre vitrage brouillé dans la SDB
- • Menuiseries intérieures : mise en œuvre d’une porte à recouvrement. Fourniture et pose d’une porte à galandage
Électricité
- • Installation suivant norme NFC 15100 dans chambre, dressing et salle de bain
- • Mise en place d’une alimentation pour le chauffage dans la SDB
Plaquisterie isolation
- • Réalisation de plafond en panneaux plaques de plâtre BA13 vissés sur ossature métallique, avec isolation en laine de verre
- • Cloison de distribution type Placostyl
- • Doublage en Placostyl des murs extérieurs
- • Reprise placo après ouverture entre l’extension et l’existant pour créer un couloir
Plomberie sanitaire
- • Création d’alimentation EC/EF et évacuation des eaux usées
- • Fourniture et pose d’un WC suspendu
Finitions
- • Fourniture et pose d’un carrelage et de faïence dans la salle d’eau
- • Gestion des déchets générés par le chantier d’extension
